查看完整案例


收藏

下载
浅色墙面+线条+装饰画,简简单单,也是一个让人心旷神怡的小景观。
沙发边上就是吧台和开门,对面的电视背景墙又有玄关和卧室过道的开门,如果墙面进行过多复杂的设计,很容易让人眼花缭乱,失去重点。
客厅和餐厅之间如何进行隔断一直是困扰众多网友的一个问题,在这里,通过地砖拼花以及吊顶区分空间是一个不错的选择。
户型中的过道狭长,如何充分利用空间是设计师首要考虑的问题。上下柜,中间是空的,放置了咖啡机、水壶、酒架等,贴合生活使用需求。
吧台连同边上的壁柜,形成一个用餐区,用餐、品酒、闲谈,都可以在这里找到属于自己的一席之地。
收纳不嫌多,在这儿摆放一个餐边柜,实用又美观。
餐厅和厨房通过移门隔断,白色移门和白色橱柜视觉上能提亮空间,配合米棕色系的墙地砖,带来大自然的清新感觉。
小编建议:如果空间充裕,不妨把这里设计成一个飘窗,或卡座,可以让整个餐厅看起来更整洁、雅致。
L型厨房。先来说说格局,L型格局的厨房最实用,做了满满的整墙橱柜,收纳功能也很强大。
客厅的电视背景墙,有两个开门,一个是玄关,一个是通往卧室的开门,设计师做了方形开门和圆拱形开门的区别设计,美观程度上大大加分!
次卧是孩子的房间,床、书桌、衣柜,简简单单,功能实用。
这里还有一个细节,儿童防掉床护栏,装上这个,妈妈再也不用担心宝宝会掉下床啦!
主卧的布置较简洁,延续整体美式风格,嵌入式大衣柜收纳功能不错。
主卧的飘窗非常赞,闲暇时可以坐在这儿休息,看看外面的景色。
此卫生间将原先两个卫生间打通连成一体,采用米色系,与整体色调一致。
这个家可以看到一些酒店式公寓的色彩,比如过道的壁柜、卫生间的吹风机等,都是一些非常人性化的设计。
这里是书房,也是储物间,这个入墙式收纳柜很赞。
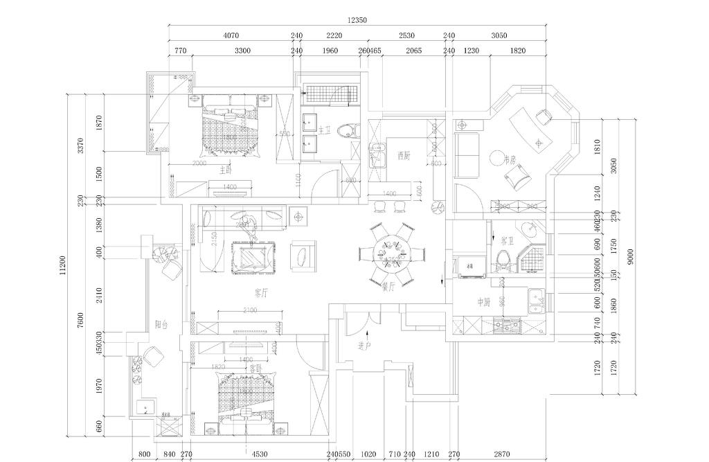
平面方案
客服
消息
收藏
下载
最近























