查看完整案例


收藏

下载
入户走廊利用木地板上顶的手法与地面黑色地板相得益彰,纹路清晰的木地板款式带来亲近自然的居住感受。值得注意的是,顶面地板与墙面之间看不到任何缝隙,也没有使用收口条,通过拼接的方式,达到简约的状态。
错层之上顶地面使用相同款式的木地板,让空间得到延续。金属黑框玻璃门带来精致的复古元素,同时也让卧室光线到达走廊区域。得益于金属门框,我们去掉了门套的使用,使得墙面干净整洁。
客厅宽敞、透亮,得益于良好的阳台采光,设计师使用大面积深色元素覆盖,局部使用不跳跃的亮色点缀,搭配具有年代感的复古家具,为业主营造出乡村民宿风格的家。
黑色皮具沙发、做旧单边柜与电视柜、实木茶几、墨绿色窗帘...客厅的家具软装以【北欧表情】为主,我们刻意挑选做旧的款式来匹配全屋“时光倒流”的复古格调。
通过木地板上墙的方式(需要在墙面先用木工板打底,木地板铺与木工板上,再用枪钉与地板胶固定),来覆盖整面的沙发背景墙,与过道顶面木地板想呼应,同时凝聚客厅的视觉中心,与电视墙面相区分。
黑色木地板延续至餐厅,通过生活阳台采光,明亮舒适。餐厅开间只有2580mm宽度,因此取消了餐边柜的设立。
餐厨之间使用黑框玻璃移门隔断,黑框玻璃门拥有超高的颜值和实用性收到大众的喜爱。简洁的黑色线条搭配上通透的玻璃门,极简的视觉元素个性又百搭。两扇移门费用下来一共3000元左右。
厨房整体橱柜是在【宜家】定制的,一般很少用到通体黑色的橱柜,只有在工业风或乡村民宿风格中得到使用。与之相对应的地面仿水泥瓷砖,墙面小面包砖等元素,使得年代感在不经意间体现。
主卧床头背景墙满刷水泥艺术漆,搭配深色木质家具,中世纪年代感的气息油然而生。酒红色窗帘与墨绿色床品点缀空间,让卧室显得不那么单调。
L型的轻质墙体是新砌的,利用砖面刷漆的方式形成了文化艺术砖的效果。既可以阻挡卧室进门的视线,同时也改变了卧室格局。
床头放置的单边柜是【北欧表情】的,收纳空间非常丰富,用作装饰也是不错的选择。
卫生间利用金属、玻璃、镜面等复古元素装饰,暗卫通过墙面开洞安装玻璃(尺寸:300*2400mm)方式与亮面的白色小面包砖结合,增加采光性。
卫生间马桶做了移位,借用地坪抬高和新砌半墙(高度:1100mm),划分出淋浴区,减少了挡水条的使用。
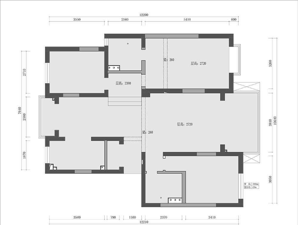
居住需求:三口之家,父母偶尔小住,保留三居室布局。原始房型有一个错层结构,比较正气,南北通透,采光充分。
整体格局不需要做大的改动,仅在局部地区做了调整,迎合夫妻二人的居住需要,表达自然随性的生活理念。
1、阳台视野非常好,窗外有一条江流。我们有意扩大生活阳台,加入桌椅,用作休闲区; 2、缩小错层的楼梯踏步,加入通透的展示隔断,使得上下空间紧密联系;
3、主卧室加入L型墙体隔断,避免进门一览无余;
客服
消息
收藏
下载
最近






























