查看完整案例


收藏

下载
△ 客厅
在天花与地面必须保留的设计限制条件下,尽量通过壁饰配色及踢脚线改动,使得空间的调性回暖。取消原始新中式背景墙复杂的外凸造型,更换为米灰色海吉布墙面壁饰,通过色彩区分,对空间的主次关系进行强调。
△ 餐厅
通过照片墙、布艺软装及浅金色餐桌及边柜线条元素,缓解原始空间“凝重感”,浅色系有助于提高视觉膨胀感,降低由于餐厅区域客观面积较小带来的压抑感。
△ 次卧
次卧/儿童房区域定义为一个多功能区域,即小朋友的活动区域。
△ 主卧
主卧床头背景使用深灰色海吉布壁饰,仅用于强调空间主次关系,并简化空间,使卧室整体性得以保证。
△ 改造前的客餐厅
△ 改造前客厅背景墙
△ 改造前的次卧
△ 改造前的主卧
△ 改造前的户型测量图
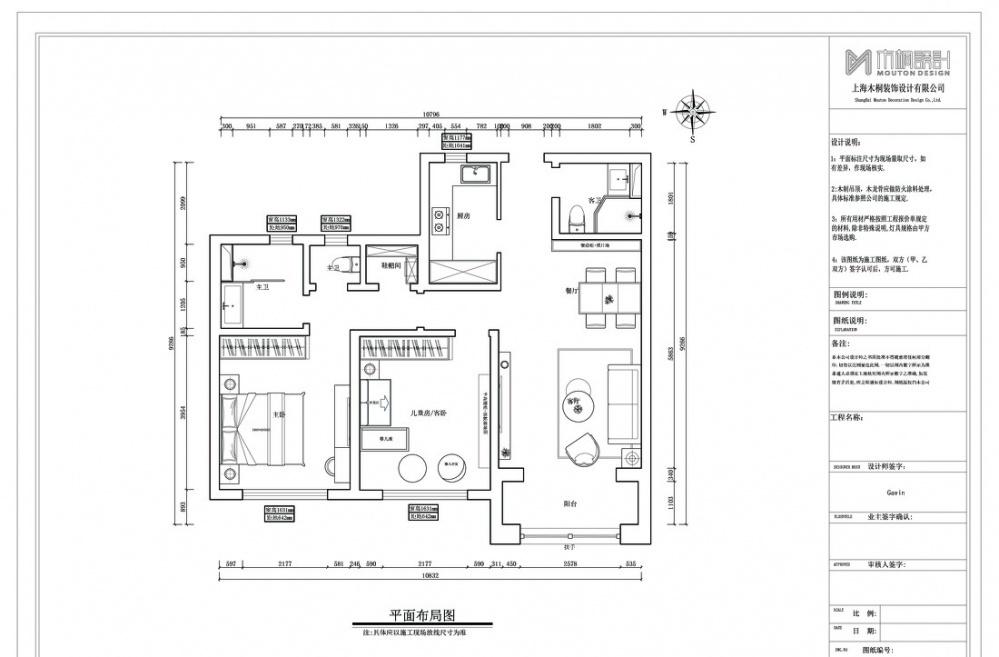
△ 改造后的平面布置图
客服
消息
收藏
下载
最近












