查看完整案例


收藏

下载
△入口立面
改造前的幼儿园使用空间和交通空间完全脱节,部分走道甚至没有采光,形式单调,尺度失衡,纵有窗外跑马场的景色加成,也抵不住内部混搭造就的莫名违和感。
△改造前室内场景
设计从改造2条消极的走道和1个空旷的大厅开始。
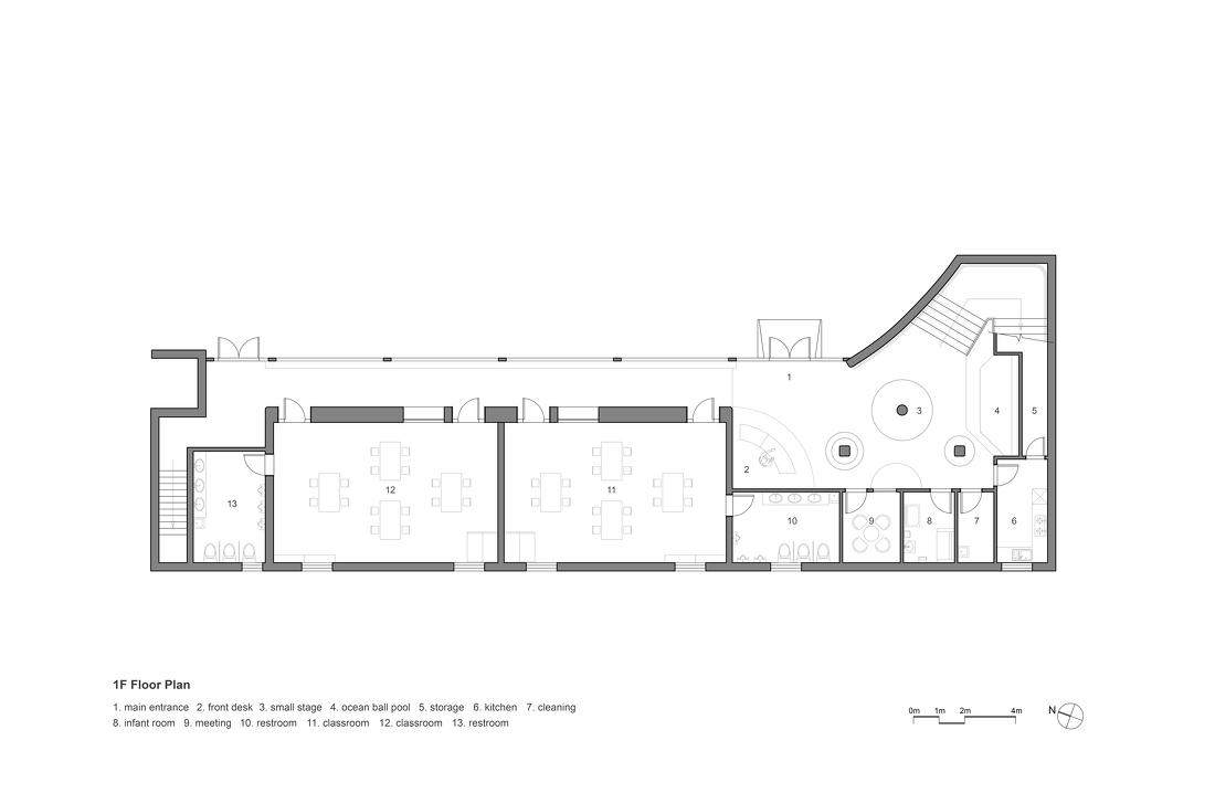
△改造后一层平面图
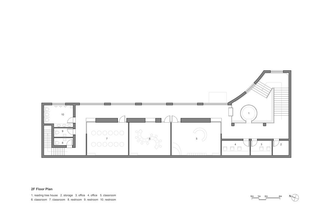
△改造后二层平面图
△轴侧图
01走道
相比于教室内的教学空间,教室外的走道因其良好视野和公共属性,更适合作为释放儿童探索天性的舞台。于是我们先对调了二楼的教室和走道,消灭了无采光的消极空间。
△一层走道
△二层走道
接着在深入研究儿童成长过程中蹲爬坐卧跳等行为特征的基础上,加厚了走道和教室之间的隔断,使其变成集合了采光、亲子活动、儿童游戏、教具储藏的多功能场所。
△探索墙内部作为储物空间
△探索墙外部作为游戏空间
△走道剖透视
在“翻转”和“加厚”两步操作后,走道一侧的落地玻璃窗既引入了室外的风景,又使得走道自身也成为了风景的舞台,孩子们的游戏路径也从单一变得多元且富有想象力。
△以探索墙为轴的动线分析
△游戏走道
考虑到早教中心学员的年龄,我们在走道墙体顶部和底部设置了圆弧形的窗口,保证室内外视线互不干扰的同时也让家长踮起脚、弯下腰就可以眼见心安。这种窗的变形操作是让家长们在无形中主动感受儿童尺度的积极尝试。
△内部看探索墙上下的窗口
△外部看探索墙上下的窗口
02 大厅
空旷的大厅是改造的重点区域,增强空间流动感和趣味性是整个改造的核心。
△流动的入口空间
我们先在大厅中央设置了一座环形树屋作为老师和孩子们的专属天地,而树屋下自然形成的小舞台则承担了公共活动的功能。
△树屋及小舞台
改造前棱角分明的柱子被打磨成树干形状,三根柱子限定出的环绕式动线彻底激活了原本空旷的大厅。
△森林状的大厅
以圆形为母题的软包垫、镜面不锈钢板在大厅内自由穿梭,与不远处的海洋球池和攀岩墙相映成趣。
△楼梯及攀岩墙
△游戏状态的海洋球池
单调枯燥的等候被融入了观演和游戏的体验,在这里,家长也变成了孩子们的一员,重回童年,备受关爱。
△洽谈室对景窗口
整个空间的高潮出现在大厅蔚蓝色波浪形状的天空。用计算机数字化技术模拟重力找形得到的天花由90根长短不一的绸带组成。这些荡漾着童年浪漫柔软的线条,将阳光切割出粼粼波光。
△数字化波浪吊顶
天空、海洋、阳光、大地、树林、城堡,这些洋溢着自然气息的意向,被以抽象的方式重新组合在大厅里,透过孩子们穿梭的身影,或许这就是无忧无虑的模样。
△大厅内抽象的几何图案
03 教室
除了公共空间,原先单调的教室也得到了彻底的改造。因为探索墙解决了储物需求,室内的剩余空间得以完整保留。设计以一条蓝色的弧线在墙面勾勒出波浪的影子,配上屋顶北斗七星形状的灯具,让每个教室里都集齐了星辰大海。放眼望向窗外,奔跑的马背上,那是孩子们未来成为自己的骑士的模样。
△星辰图案的灯具
△波浪状的墙裙
灵动而温馨的早教中心,给这些2-6岁的孩子无限的探索与想象空间,透过大大的落地玻璃,他们也能在追逐奔跑中看到那些更大的孩子们在马场上的矫健身姿。也许从这里开始,他们会逐渐成长为真正骑士。
业主:鲱鱼宝宝早教中心
设计:立木设计研究室
主持建筑师:刘津瑞,冯琼
项目经理:郭岚
设计团队:张速,张淏晟,张恩东,焦昕宇,郭乾
施工图负责人:赖舞艺
面积:560m2
设计周期:2018年1月
施工周期:2018年3月-4月
施工团队:上海靓超工程装饰有限公司
定制家具:上海志异实业有限公司
摄影:杨鹏程
客服
消息
收藏
下载
最近




























