查看完整案例


收藏

下载
一个好的空间定是富有生命气息流动的,这样的环境可以是温暖的,居家的,情感呵护的,也可以是待人接物不落入俗套的、这之间的关系是用软装色调和硬装材质来体现;
电视墙用了原木的柔和来协调石材的硬朗,走廊的顶端处设计了端景,背景用了祥云墙纸,多了几分高贵柔和气息
姜黄色的边椅,从视觉看过去,都会萌生出温暖感,喜欢在家宅着的黄小姐,我想这样的边椅肯定是少不了啦,边椅的两侧包裹性很好,这给身体的体验多了几分安全感;
原木和姜黄都是暖色系的优雅组合,搭配上顶面墨青色的轻奢灯和石膏花造型,优雅和温馨的混搭感觉立刻呈现
让空间有转折、动向变得活跃起来的一个最佳表现方式就是:隔断,真正设计师的小帮手,
链接岛台和餐座之间的隔断,从视觉上多了一个层次感和空间的分离感,但是玻璃隔断不会让空间产生压抑感,因为光线完全可以通过它来达到漫射效果,不仅美观,还非常的实用哦
色彩分析:
原木、灰调、姜黄色
这几个颜色的搭配,不会产生特别强烈的对比,整个空间控制在一个居家范围内,其实简约风也有他独特的美,简约灰简单帅气,潇洒随性的自在感,把这种简约的居家风展现的淋漓极了,搭配温润的原木,多了几分优雅的姿态,强调男性审美的灰感,满足女性温润的原木,用姜黄的活跃感来调和,真正的简约不简单哦;
色彩原本不会说话,但她能从感官上波动人的神经,赋予舒适的心情和浪漫的情怀,黄色一般用在室内都只是作为点缀辅助色,但这样的点缀却能让本来静怡的空间,立刻活跃起来;
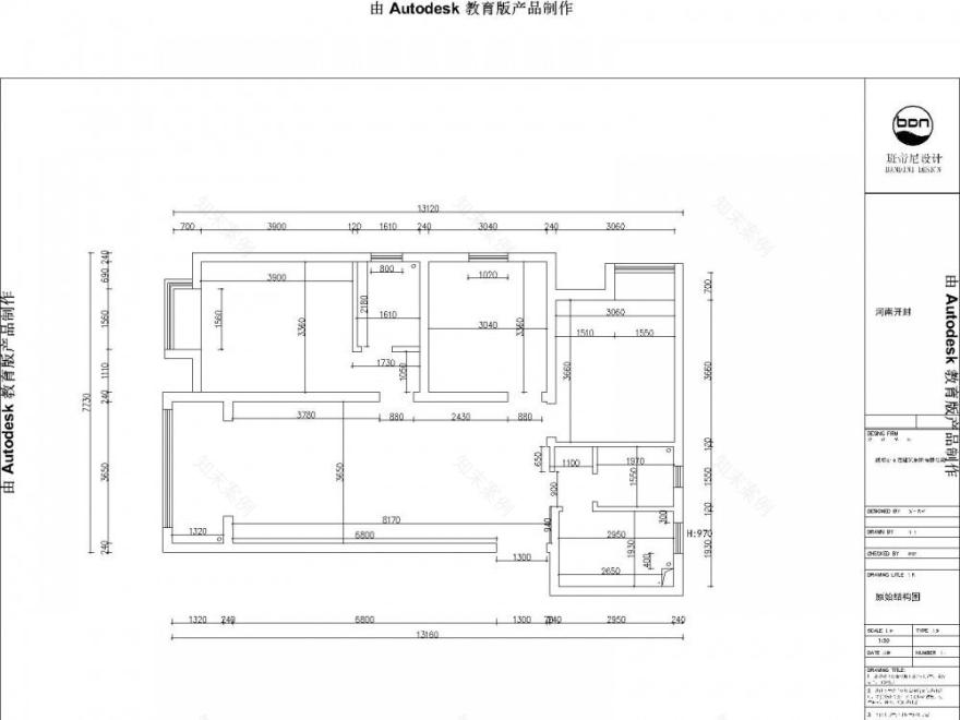
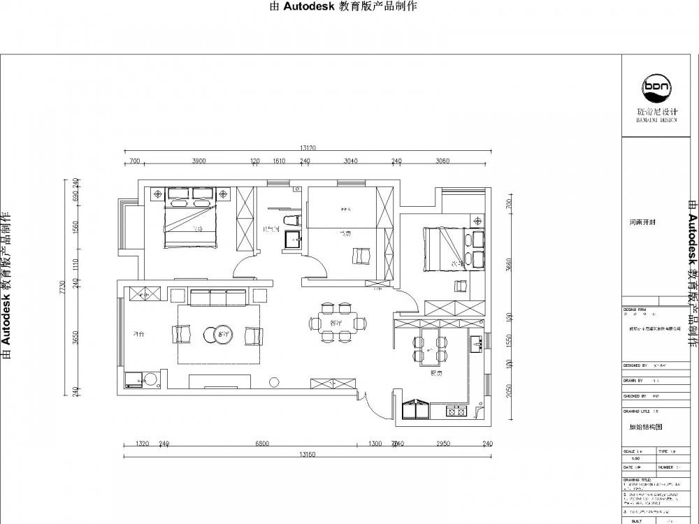
入户门和卧室在一条直线视觉里,所以我们把书房原来的门变成了过道的隔断,既能摆放心意的物品,也能起到收纳的作用,舍弃了一个洗手间,把原本客厅洗手间的位置,归纳到厨房的一个空间里,厨房做成了半开放式,但增加了一面瓦楞屏风,不喜欢进门就一览无余的业主,所以我们在动线设计的时候,更多的考虑她的感受和要求
客服
消息
收藏
下载
最近
















