查看完整案例


收藏

下载
[东鹏顶层无界大宅]
设计的灵魂在于匠心,在于对品质执着的追求。在对极致反复的探索中,空间带上了人的情感和温度。那是一种源于生活的智慧,对于材料特质的理解,要合乎物性,而对于境界的缔造,则应忘记机心,自然而然。好的设计,让人目以投之、足以赶之、情以注之、心以神之。
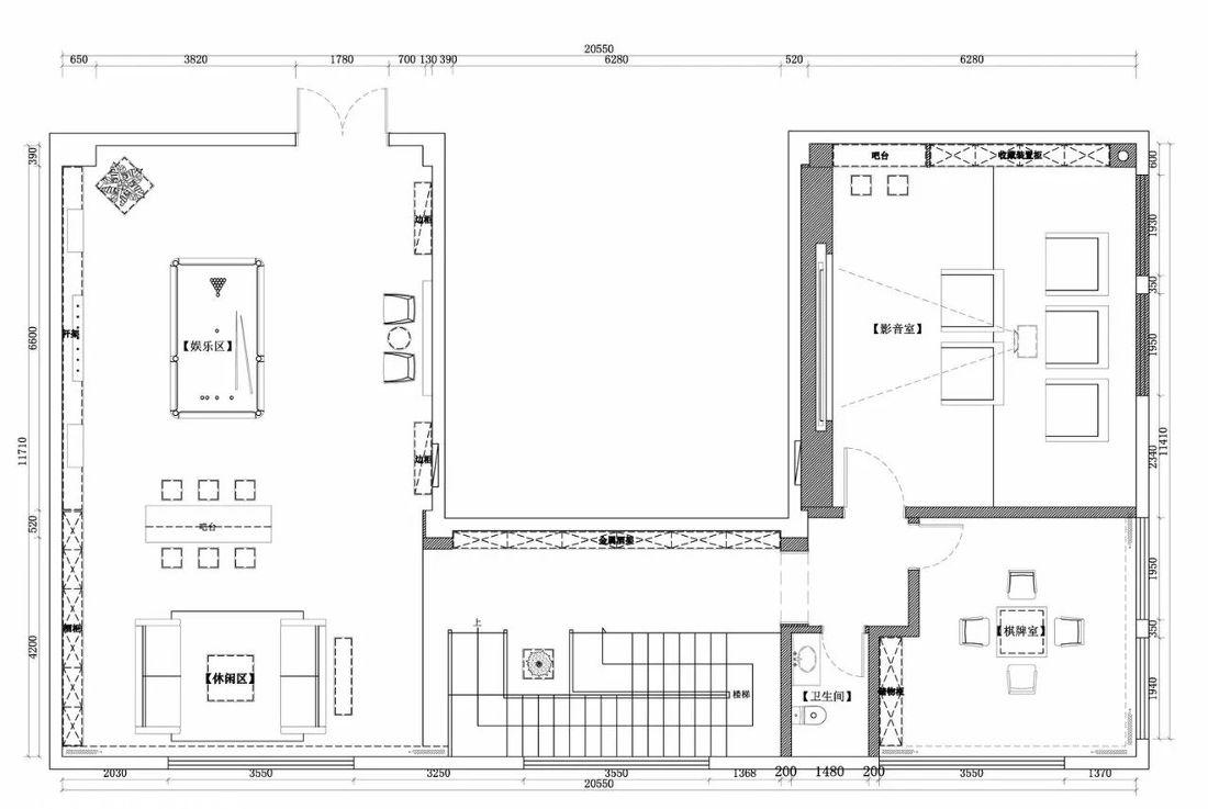
一层公区,开放式球室、红酒吧、酒廊、自由随性,承载了业主对于居住品质生活的追求。空间以素雅的暖灰色为基调,一幅手绘热带画作又使整个空间跳跃起来,穿插铜色金属饰条使整体空间更具质感。
3.5米长2.8米高的超薄鱼缸,其中的稀有鱼种是业主最得意的珍品。
闲暇之余和好有几个切磋几局,累了旁边红酒吧小酌几杯,可能美好也就是这个样子。
酒廊金属酒架的质感与玻璃石材的碰撞更具现代生活品质气息,楼梯与酒架俨然成为空间的装置艺术。
影音室的纤维灯星空顶荧光点点,一部温情的电影,一家人,一个世界。
棋牌室偶尔几个好友的娱乐时光。
二层居住空间在开放空间的结构条件限制之下,转化了大梁的局限在天花及立面的设计上置入线性灯带及穿透的电视墙形成空间的焦点,同时强化场域间层次的变化,中介空间使用延续的元素整合了房门及收纳的柜体,让空间线条更为纯粹及完整。
餐厨空间是家人生活中心,推拉门后是热炒用的厨房,外面的中岛茶水区则为轻食料理,无需进出厨房,也在料理时与家人们保持互动。
开放式榻榻米,兼具茶室与会客功能于一体。
开放式书房原木桌与编织座椅,抽象山水壁画,在沉静、质朴的空间表情中,传达了反璞归真的内心之声。
过廊墙面墙板与房门通过铜色金属饰条在造型上有机结合,简洁内敛。
主卧浅色木质与灰阶带来柔和舒适的卧眠氛围,床头突出的置物平台,可作为床头柜,也是生活的展示空间。
衣帽间是女主人最心仪的地方,满足储物的同时,为女主人化妆提供了私密的空间。
儿童房延续了主卧风格的简洁内敛的同时增加了色块又使空间如孩子般活泼。
卫生间以玻璃门作为隔断进行干湿分区,淋浴间的特色墙砖如同卫浴空间独特的肌理用材的考究也体现了设计师在选材的用心。
室外天台庭院采用木质、青石板与草皮错综铺装,流水在灯光下光影波澜,甚是惬意。
项目名称:东鹏顶层无界大宅
项目地址:山东.威海.东鹏集团
项目面积:500㎡
设计风格:现代、简约
设计单位:山舍室内设计顾问有限公司
服务内容:室内设计/软装设计/品牌服务
设计时间:2017.12.09
主创设计:
谷建东 马兴增
客服
消息
收藏
下载
最近






























