查看完整案例


收藏

下载
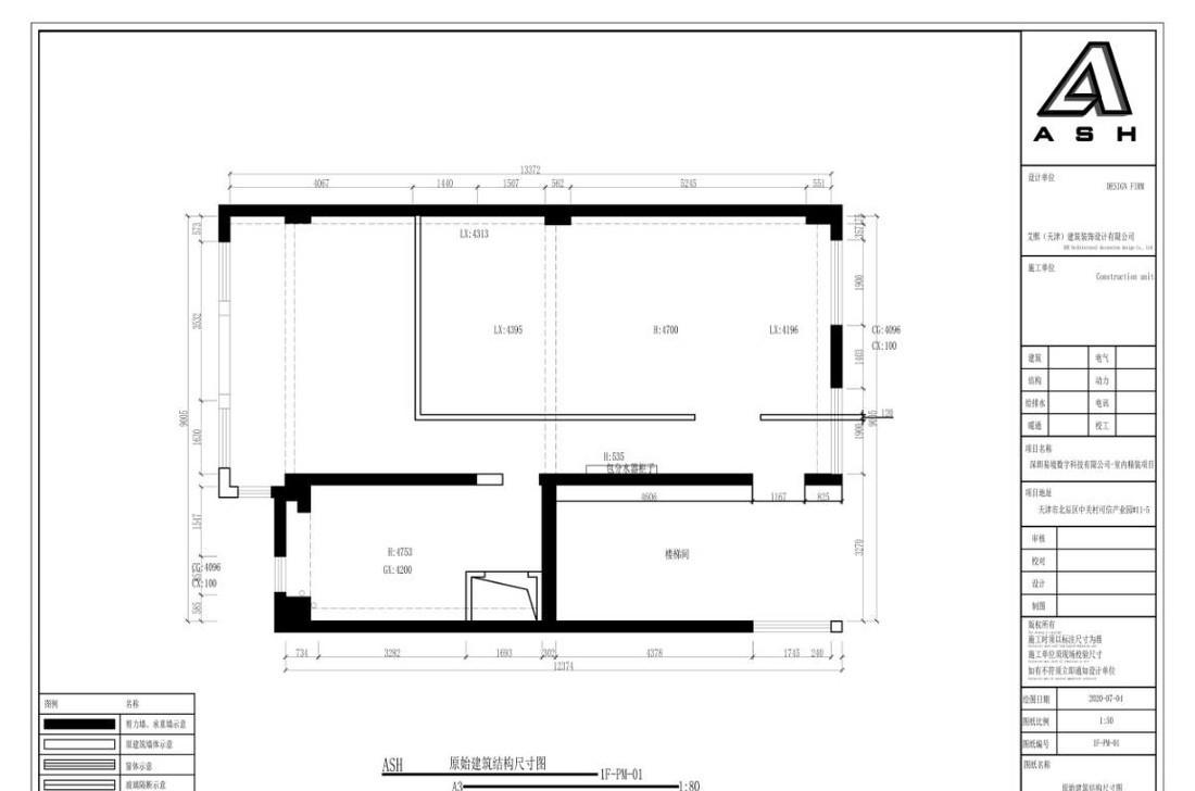
本案位于天津市北辰区中关村可信产业园园区,业主从事行业为多媒体设计、多媒体技术开发、虚拟数字技术开发、视觉艺术设计、展览策划及展示设计等。甲方希望除了改善建筑的采光、通风等物理性能之外能创造一个带有开敞通透、具有时代感、面向年轻人的办公场所。
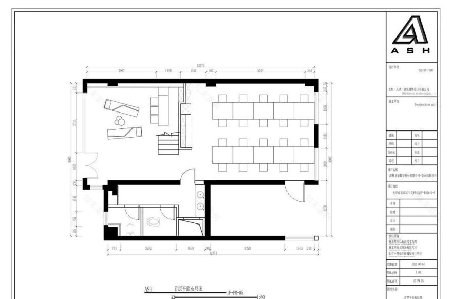
一篇锦绣文章免不了简繁得当,对空间亦同理。项目选择在公共部分的重点区域做重点氛围营造,大空间办公场所做简约精装组合,综合控制造价以达到用中低造价完成高品质项目。在成本控制的努力无疑是项目的亮点之一,实现方式是在建筑搭建阶段提前完成室内装饰面层的工序,于此同时,控制材料的品类,亦能减少多余的工序。
为了呈现大尺度的LOFT空间感,团队以在入口处运用挑空处理,室内并没有大量新建隔墙,运用比较肌理粗糙的材质与细腻的材质做对比,粗糙的水泥地面与精致的深色乳胶漆顶面,色度深浅不一的墙面,木纹与玻璃,让整个LOFT呈现视野的舒展。
In order to present a large-scale loft sense of space, the team adopted the method of air picking at the entrance. There was no large number of new partition walls in the room. The rough texture materials were compared with the delicate materials. The rough cement floor and the exquisite top surface of dark latex paint, the walls with different shades of color, wood grain and glass made the whole loft show the vision of the exhibition.
我们所思考的问题是,如何打破传统办公的固有的印象,如何让空间灵动起来,让色彩丰富起来。不再是一成不变的冷色系灯光,我们添加了线性光源,搬进咖啡桌椅,摆放吧台高脚凳,引入绿植,让办公空间不再是传统的办公空间,而是一个更加复合年轻人工作的场所。
在设计上,设计团队化繁为简,在墙面以及顶面做了关联的线性光源,提高整体空间的科技感,同时又在创造一个纯粹而带有力量的空间,展示着一个品牌的未来想象力。
In terms of design, the design team has simplified the complexity and made linear light sources on the wall surface and the top surface to improve the sense of science and technology of the overall space. At the same time, it is creating a pure and powerful space, showing the future imagination of a brand.
黑与灰的碰撞,红色的加入使整个空间多了几分更像年轻人的色彩。两道门,正面为一个实际可使用的冰箱,而另一道,则是卫生间的隐秘入口。
The collision of black and gray, the addition of red makes the whole space a bit more like the color of young people. Two doors, the front for a practical use of the refrigerator, and the other, is a secret entrance to the bathroom.
私人办公空间格局并没有过多的复杂,通过自由化的空间削弱人与人之间与生俱来的陌生感,人真正意义上成为这个空间最被注重的存在。人们在不同区域内行走时,也在与空间对话。这些巧妙的设计,贯穿了整个场所,使得人们走过不同区域的同时,也能体会到每一个细节所散发的用心。
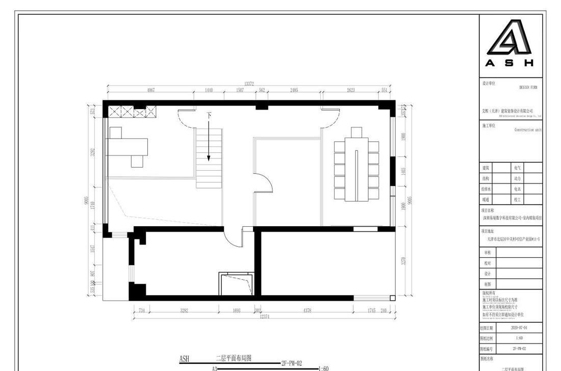
建筑空间是静止的,而人的视觉和心理感受却会随着场景转换而变动。会议室的色彩走向了本案中为数不多的白色区域,灯光色温也迈入了高数位的界限,让进入会议室的每一位员工都保持严谨的状态。
透明玻璃门的设计使其划分了空间私密感之余,又不会太过的规定界限,满足空间定位。品质,时尚,舒适与艺术,在当下的办公空间中尤为重要,每一处细节背后,都隐藏着设计师关于人与空间关系的探索。
设计是一场持续的冒险,未知才让人充满渴望。
END|感谢关注
客服
消息
收藏
下载
最近











