查看完整案例


收藏

下载
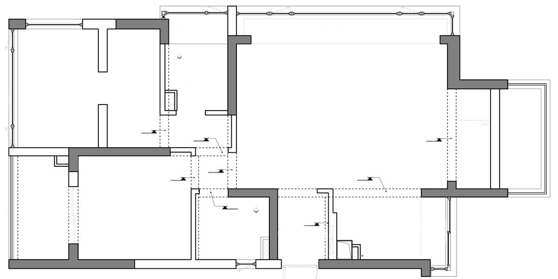
原户型可以看出空间被分隔的琐碎,特别是卧室。卫生间面积也是有点狭窄,同时房间也带了一个可拓展平台。
89方的面积,我们不限制空间,而是让每个区域相对独立又相通,整个房间呈现出开阔、清爽的状态。所以客餐厨甚至多功能区我们都是放置在一个大空间里。可能会有人问了,这样是不是会很乱?哈哈哈当然不会,因为在每个空间里我们都有自己的小心机,偷学时间到,往下看!
整个空间我们主打自然舒适的调子,但这个分量又把控的刚刚好,深灰色艺术漆的加入,很好地平衡了整个房间的状态:甜而不腻。
客餐厅虽然在一个大空间,但是我们采用了很多的隐晦手法,不用实墙不用隔断就在视觉上引导着我们自动将各个区域划分开来。地板和顶面我们用灰色瓷砖和艺术漆与客餐厅划分界限,厨房和客餐厅之间是相对独立的。地板:卡斯摩,艺术漆:新时代。
公共空间整面的窗户,这样的户型可遇不可求,所以代替窗帘选择的百叶窗,很清爽同时还有很重要的原因,就是百叶窗光影!相信这也是很多小伙伴喜欢百叶窗的原因,因为光影是在是太美啦!应业主需求没做中央空调,所以做了一些挂壁暖气片,和整面的百叶窗也是很搭的。
很乖很可爱的柴犬,另一只没有上镜,不过视频中有,可以去dy同名搜索菲拉设计看哦
电视背景是两种不同材质、不同颜色的碰撞,还带有圆形洞洞的造型。像是平静海面的一丝波澜,增添趣味。
三座沙发很自然地将客餐厅给划分开。很漂亮的餐桌配上一个长凳、两把单椅,简单清爽。
拍照的当天天气很给力,百叶窗光影超美呀。
开放式厨房在结构上与客餐厅联系起来,而在颜色上通过深色艺术漆分离。同时将玄关鞋柜和厨房设计为一个整体覆之以同色艺术漆,空间结构更完整干净。
很好地利用空间,设计出的小吧台既能补充厨房台面的实用,同时又可以增加休闲办公的区域。麻雀虽小五脏俱全,功能多元化。
原来的设备平台拓展之后变成了现在的多功能区,平常用做书房,独立性的需求会相对更高一些,所以加入隔断增强其独立性,我们选择的是长虹玻璃门和玻璃砖隔而不断,玻璃砖购于淘宝,纹理相当好看!
我们也在水平差上做了小心思,哪怕玻璃门没有打开,相对较高的多功能区也自然而然地让它与客餐厨空间独立开来。
垂直百叶窗帘了解一下?窗帘是一片一片的状态,相比传统的窗帘可调整性和随意性会更高一些。角度也是可以调整的,光之律动形容它太有诗意了。
原先的主卧被分隔的很碎,我们将中间的墙体拆掉,同时将卫生间舍弃变为化妆间和衣帽柜体(因为是业主两人住,客卫的一个卫生间可以满足)
同样也是保证通透性和更好地采光,化妆间的隔断门也是选择的长虹玻璃。
床头背景的这个设计真的爱了,很低调的一个内切斜面,里面又藏进一条灯带——光影、明暗,灯光设计让空间的形体更加丰富。
次卧暂时没人住,只是打造了一个简简单单的白色空间,我们在软装上着色,丰富这个房间的内容。
客服
消息
收藏
下载
最近


























