查看完整案例


收藏

下载
业主是一位很酷的女生,喜欢拳击、哥特、红酒、从事金融业。因此接到本案很有刺激性和挑战性。业主比较潮流所以空间规划上有了更大的灵活性。
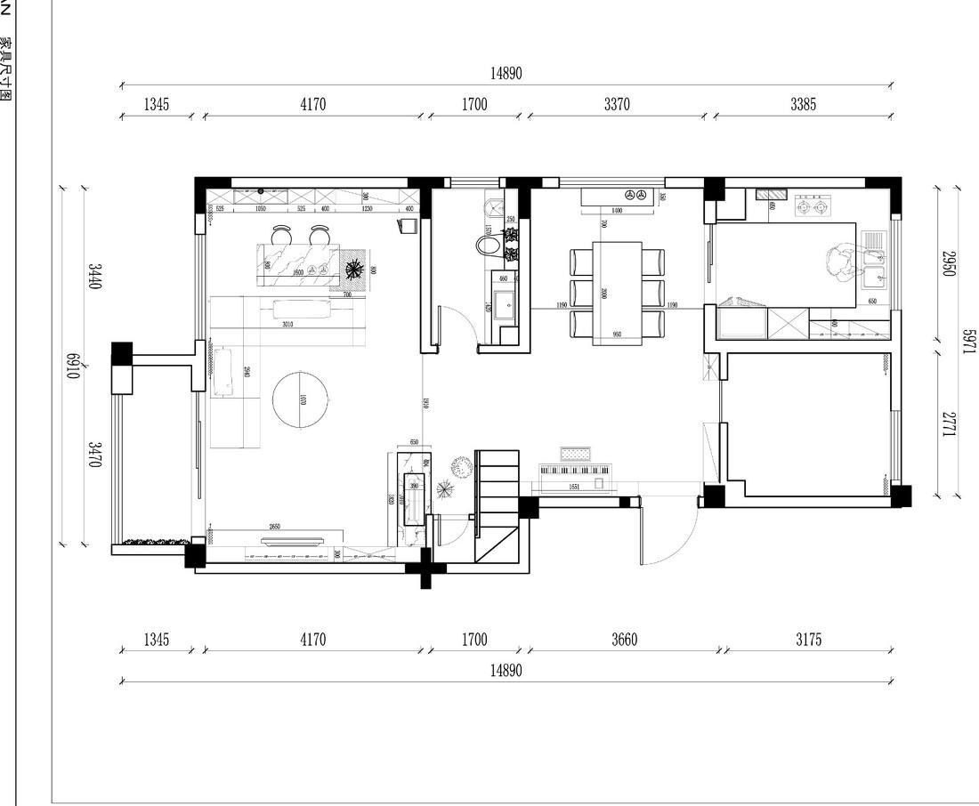
一楼原始结构,客卫做的太大,导致房间南北方向被拦腰截断,通透性很差,显得每一部分空间采光和视野都不够宽松。因此我拆除了这部分,将卫生间缩小,让南北方向通透起来。视野上更具有别墅的格局。
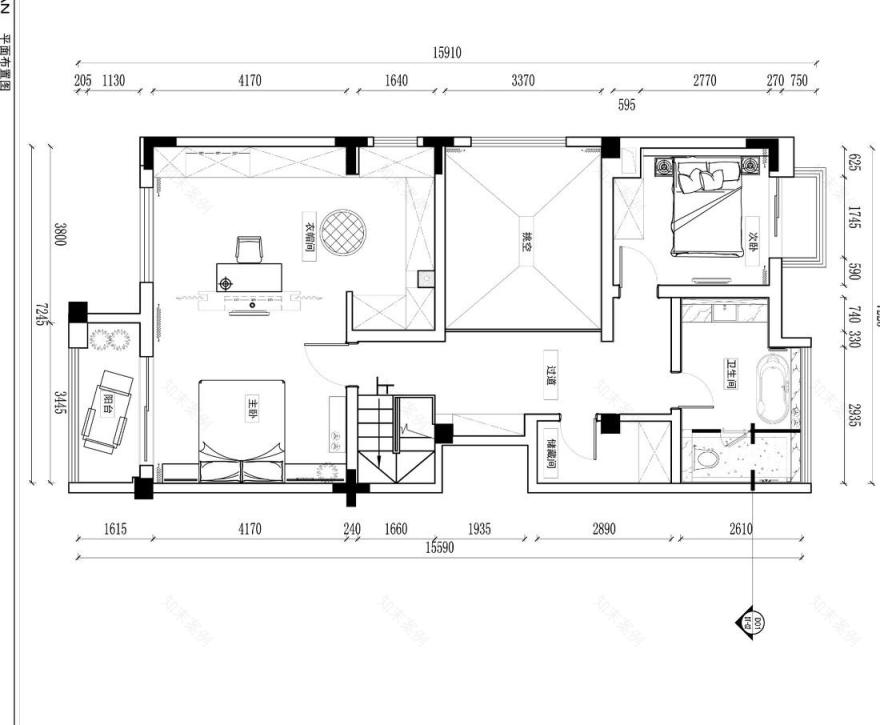
二楼原始结构比较琐碎,考虑到仅仅需要两个卧室,业主作为一个潮流感的女生,拥有很多玩偶和化妆品以及衣服,我决定拆除了南边主卧室的卫生间,拆除了北边小阳台改造成景观阳台;
拆除以上结构后,业主得到了一个很大的卧室/衣帽间套间,具有充足的储藏量,以及宽松自由的休息方式。同时一大面落地窗的卫生间令泡澡放松成为一种享受。
一层餐厅原本层高只有一层,别墅共有3层,每层之间都是封闭独立的,略显压抑,所以我将餐厅的一楼/二楼拆除打通成为一个挑高天井,令一楼公共活动区和2楼休息区贯通起来,光线和空气以及视野流转往复。
搞定功能布局后,整个空间变得通透流畅,放松舒适。在风格色调上,根据业主气质,和业主共同决定选择较少人使用的黑色作为主基调。老子说万物并作,吾以观复。我们希望用最少的语言,最基础的色彩营造出让人心动的节奏。
高低吧台,除了功能性以外,为喜欢聚会的业主提供了朋友们围拢谈心的好地方。
黑色体块的切割,转角处的酒精壁炉,提升生活质感。
业主超爱的玩偶在意大利灰石材衬托下非常醒目
少不是呆板,利用功能结构和转折处理进行的几何切割,给空间增添很多小波澜。
灰调的餐厅区,哑光白地面、水泥漆墙面、白色的窗帘,在克制的黑白灰色系背景下,娇艳的植物显得格外生机盎然。
餐厅高度较高地面跨度显得狭窄,所以厨房一面墙面我用黑镜来扩充空间视野。
业主小学时候就使用的钢琴,偶尔的怀旧并没有打乱空间整体的流畅性。入户门厅望向客厅通透明亮。为了不干扰视野,楼梯扶手做成了无框灰玻。
钢琴上的蚂蚁仿佛在乐章上跳跃了很多年。
老子说一生二,二生万物,少其实是一种克制的缤纷。灰色的玻璃瓶和绿枝条演绎着初秋的美好。
厨房功能性为主,因为业主妈妈烧得一手好厨艺,所以我们做了封闭厨房。
主卧室宽松而独特,吻合业主哥特式审美质感。
衣帽间同时兼顾梳妆台,业主大量的化妆品和衣物都得以妥善隐藏,减少日常保洁难度。
二楼走廊将原有凹凸建筑结构通过柜体抹平,简约的玻璃护栏,最大化让光流动起来。
客房简单而温馨;
哑光仿岩石的瓷砖,灰色系石材地面,一整面落地窗户,最大化的将本案坐落在山林间的优势凸显出来,早上洗漱、夜晚泡澡都可以体验到一种度假般的享受。在功能设置上尽可能将死角悬浮,方便保洁清理。
最后非常感谢业主及家人的信任与支持,工程环节所有部门的配合付出。
主案设计:王明治
全案总包:苗昊
客服
消息
收藏
下载
最近































