查看完整案例

收藏

下载
黑、白作为色彩的两个极端,它往往比其他丰富的色彩更具感染力。以黑白作为主色调的空间,单纯简练,是其他色彩所碰撞不出的独特的气质。
所在城市:嘉兴·平湖
项目名称:中梁壹号
设计风格:现代黑白
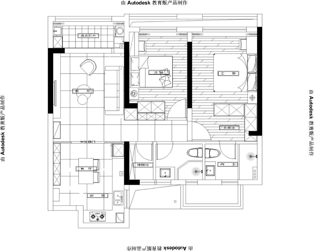
房屋面积:89m²
项目设计:博艺装饰工程有限公司
主案设计:曹峰
实景摄影:Beny
本案是一个89平刚需的住房,厨房跟餐厅的空间比较逼仄,平时使用也施展不开,设计师打掉厨房的隔墙,作一个开放式厨房,将门厅、厨房与餐厅连成一体,开阔视野的同时也放大了相对的使用空间,将北面小房间做储藏室,同时也增大了主次卫的面积,既满足了使用功能,也增加了储物功能。
原始结构图
平面布置图
餐厅
打通后的餐厅使得视野变得开阔,空间也显得更大,既满足了厨房操作的需求也使用餐环境变得宽松,在设计上没有过多的元素,用一抹蓝色让这个制造人间烟火的地方不会显得过分的清冷。
客厅
一组棉麻质地的灰色沙发,中和了这个空间的冷酷,不让白色过分的单调,也不让黑色压抑的沉重。
卧室
蓝色,宁静而美好,在卧室中注入一抹色彩,让晚上的睡眠更香甜几分。
卫生间
大面积的白色墙面拼贴黑白马赛克,搭配黑色淋浴房,让空间有张,有缩,平衡得刚刚好。
本案设计师曹峰博艺设计师设计理念:用心观察生活,感悟人生真谛,让设计与生活互动。从业时间:6年代表案例:中梁壹号微墅、滨江锦湖苑、兴和苑、万和苑、龙湖春江天玺、平国府、新埭自建、林埭自建…
1
实景案例赏析
▲120m² 信达香格里实景案例
▲110m² 东方悦宫实景案例
▲100m² 平湖御龙湾实景案例
等电位
”试试据说,关注
并分享
此文的小伙伴,男的都会发财,女的都会变瘦变更美...
邀约量房:地址+面积+
姓名+手机号
或
13372313151 博艺装饰
客服
消息
收藏
下载
最近


















