查看完整案例

收藏

下载
It’s not night when I do see your face.
Co"co."
府西花园/地址125平米/面积朱文超/设计现代/风格
居住的场所,不再只是单向表达,而是设计者透过空间架构及环境元素,谱出居住者心中对居所愿景的那份声音。
A place where to listen to the soul..
设计师在面对客户时,第一件做到的事情就是“聆听”。了解业主对于家的要求与生活感受后,我们交出了这样一份答卷。
当作品呈现时还原度达到了我们的预期
以下为实景案例作品L
IVINGROOM
▲客厅一览,views of the living room
材料的分布以面(墙面、地面)的转折为界限,也以空间(房间)为界限。构造出现代风格的特征。这些材料不仅仅是装饰,它们恰恰是结合了日常使用的经验。人手可及的地方用有质感的材料,既是功能的需要(易清理),也是手感的需要(可抚摸)。
DiningH
▲另一端的餐厅,the dinning room on the other end
▲岛台与餐厅,the kitchen island extends to the dinning area
▲厨房一览,overview of the kitchen
The Bedroom
卧室设计一览,the bedroom
Children’s Room
▲儿童房设计一览,the children’s room
TheB
▲卫生间设计一览,the overview of the bathroom
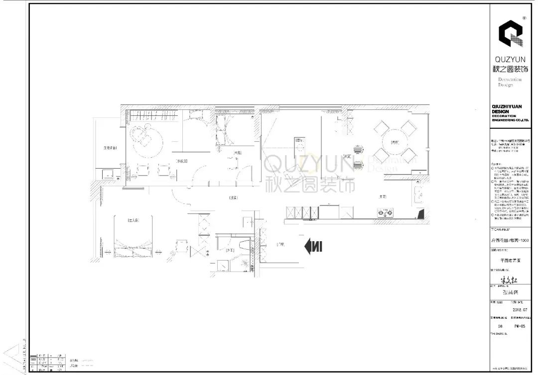
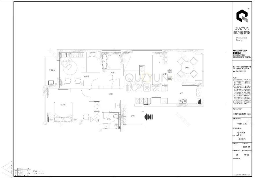
房间的裂变|Division of Rooms
原始图
平面图/设计思路/本案原有户型的三室两厅对应的是三口之家的生活。原户型的配比为两厅,三房,两卫,一厨。设计师按照生活要求本质不同。对户型内的功能区进行了重新规划。本案希望在这个125平方米的户型中创造丰富的空间体验,做了一定的空间取舍与敞开处理。客餐厅空间需同时满足沙发与餐桌的置放要求,所以设计师将北侧房间与厨房打通,形成一个集客厅,餐厅,敞开式厨房的大空间,形成了房子的南边和北边最纯粹的动静分离。设计师将朝南的房间定为主卧,放弃一个卫生间的空间,改作干湿分离,扩大主卧舒适度,新加入储物衣帽区域。佳作赏析
设计师 / 朱文超
世茂香槟湖|幽野憩
奥林匹克花园|心·归处
景湖人家|我是呓人,卖梦为生
绿都万和城|喧哗与平静
/ 谢谢观赏 /
2020/08/31NO。8
未完待续。
长按 - 识别 - 关注
江苏 · 常州
地址:关河西路180号恒远大厦19楼
(西新桥西侧)谢谢阅读|感谢分享
客服
消息
收藏
下载
最近
































