查看完整案例


收藏

下载
这是我在退出原来公司后做的第一个工地。那时闲赋在家,本已做好在家带小孩的准备了。楼上邻居找到我,一开始本想拒绝,担心帮熟人装修,会因为装修的事让两个本来关系很好的家庭变得尴尬,不过想到反正也是闲着,尽心去做就好了,后来还是接下了。在与邻居见面详谈时,他们提供了一份原结构图,并且提出了一些想法与要求:1、空间的利用要最大化;2、要有一个休闲的吧台;3、整体风格要求简洁、温馨让人放松。
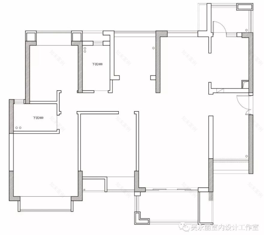
原始结构图
通过现场测量、根据主人的想法与要求、户型特点和他们的生活习惯以及无数次的面对面沟通后,对房屋的整体结构做了比较大的调整,做出了一张全新的平面布置图。
平面布置图
原结构
中,单独的厨房和餐厅都有点局促,便大胆地把两个空间合二为一,相互借用空间,与客厅之间做了一道三轨推拉门,炒菜时关上可阻隔油烟,其他时间把三扇推到一扇又像一个屏风,实用与美观兼具。把入户花园与客厅之间能敲的墙全部敲掉,将
入户花园改成了一个书吧
,这样一来,房主要求的休闲空间也出来了。方案出来后,业主非常满意,把自己原来已经是很成熟的想法都放弃了!剩下的事情就简单了。首先是出效果图:
客厅效果图
卧室效果图
然后是根据效果图一步步完善细节,以下是完工后的实景图:
客餐厅完工后的实景图。是不是与效果图一致呢?
吧台的问题解决了。但是在浪漫地品着红酒时却背对着一个鞋柜始终不是一件很好的事情,便把原厨房与入户花园之间的墙也打掉,硬是从墙上挤出了一个整面墙的大鞋柜。
入户书吧区
公卫不是很大,但还是把洗手盆单独放外面,两个人可以同时使用,这样在很大程度上提高了空间的利用率。
公卫盥洗区
卧室简洁温馨,没有太多华丽的装饰,却是一个很容易让人放松的空间。
卧室
男孩房用了静谧的蓝色,想让处于叛逆期的小男孩进到房间就能安静下来。当初选色板时女主人还担心会太深太艳了,刷好后效果很好,大小男主人都很喜欢。
儿童房
最终满意的效果离不开装修过程中男女主人的高度配合。很多细节的工艺及细节的做法都是大家一起在现场讨论出来的!感谢两位业主给予这次机会及整个施工过程中的辛勤付出,让你们有一个温馨的家,我也有一个成功的作品!
地址:演达二路万饰城大厦三单元2705
客服
消息
收藏
下载
最近


















