查看完整案例


收藏

下载
AWN OF WHEAT DESIGN
麦芒设计用匠心诠释极致美学
A W N
滑动查看下一张>>>保利
260㎡中式
主设计师
刘力华
原始户型图
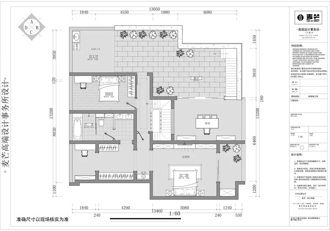
滑动查看下一张>>>平面布置图
滑动查看下一张>>>
Preface
东方的韵味不同于法式美式,古朴大气的中式复古风,温润而有它独特的风情。榫与卯之间,体现的都是天人合一的审美且独树一帜的风格。
壹客厅
客厅的家具采用纯木打造,淡墨的群山背景不会喧宾夺主又显得沉静而大气。暖黄的灯光搭配深色的木材,整个空间显得安静而又温馨。
贰餐厅
家的烟火气最能体现的地方大概就是厨房与餐厅。这两个空间既独立又保持共通,简约大气的线条与极具民族特色的挂饰,营造出这一方空间别样的美感。一粥一饭间净是家庭的温暖。
叁楼梯
楼梯秉持着中式风格的特色,木制扶梯与圆窗,在现代化的基础上最大化的凸显了中式风格,也增加了整个空间的透光性。取其传统的特色再融合现代风致,整个空间显得简单而又充满设计感。
肆卧室
木头温润厚重的质感也显示出屋主沉稳的性格,设计上采用冷感的金属与木头相衔接,使得整个空间显得别具一格。
—END—
门店导航
麦芒设计
遵义市汇川区昆明路世贸城一号写字楼十八楼
服务热线:18585340316
麦芒设计软装馆
遵义市红花岗区湘江大道100号红星美凯龙四楼
为您更好的服务体验
编辑策划
麦芒设计
打破传统
为空间设计发声
we never stop
未经允许不可盗用文中素材信息
长按识别关注我们
客服
消息
收藏
下载
最近



















