查看完整案例


收藏

下载
新中式的风靡是本土文化意识的觉醒,中式元素与现代材质的巧妙兼容,表达了对清雅含蓄的中式精神境界的追求。它简化了古典中式的线条,保留了中式风格元素,摒弃了过多的繁杂,简洁明快。
项目地址 /江畔大地
项目户型 /平层
项目面积 /171 平米
风格类型 /新中式
主案设计 /梁 昆
设计时间 / 2018年10月
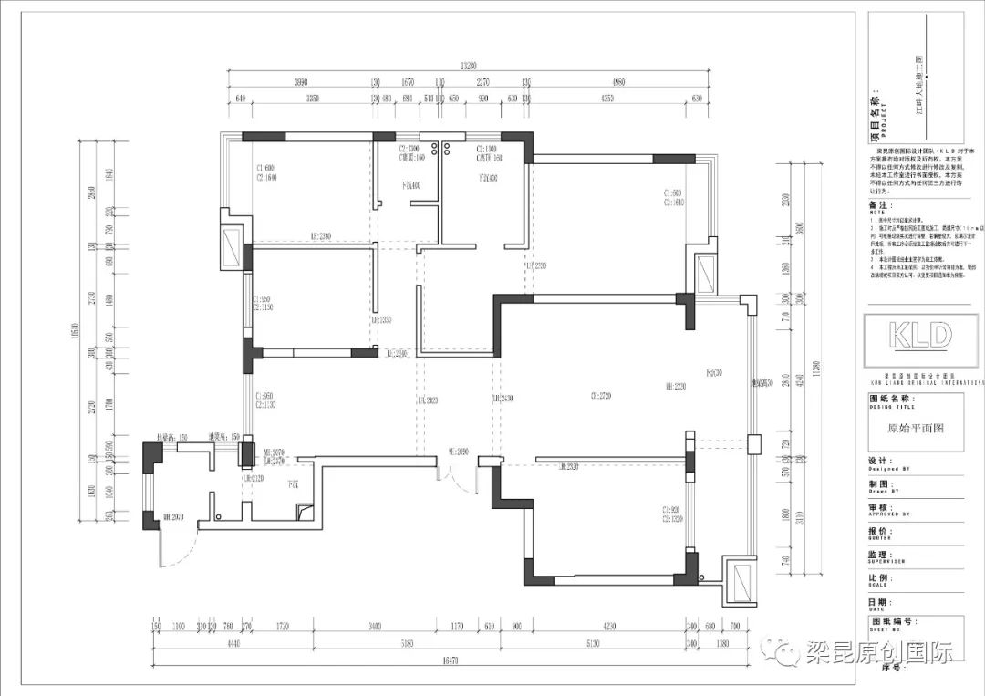
原始平面图
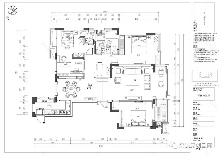
设计平面图
原户型是四室两厅一厨两卫。根据业主的居住习惯,将原有的2个卫生间区域调整改造为3个卫生间,形成了一大一小2个带独立卫生间的套房(主人房、女儿房)和1间公卫。这样改造后,整个室内布局更加清晰、实用。
设计效果图
本项目
整体以现代设计理念续写东方韵味,突出优雅而低调的东方式奢华,不浮夸的陈设、纯粹的色彩搭配光影的变化,诉说着高雅品位的生活方式,清雅而别致。
玄关
端景台
落地座屏栅栏,气韵自成一派,自在且淡然,方寸之间,自由天地。
山水意境中的东方美,遇见素雅之心,只为精神而活。
品不尽的韵,抒不完的情;每一个新中式都是一种人生,每一个装修都是一种意境。
处繁华而避清幽之境,居闹市而无车马之喧,清雅的踪迹在每一处入画,在柔阳中享受静谧。这样的生活场景,是忙碌工作的享受,是可贵亲情的围绕。新中式,以诗入境,加持美好生活!
梁昆原创设计是一家集室内外设计、装修施工、软装饰设计一体的专业设计公司。我们以优质的服务、一流的设计品质经过15年的积累,树立了良好的品牌形象。欢迎您关注“梁昆原创国际”。
客服
消息
收藏
下载
最近













