查看完整案例


收藏

下载
THE SECLUSION DESIGN
隐逸设计 | Designer 龙波
VOL.1
序言_生活是一种如水的深婉一种诗意的栖居
瞻顾神迹,抚摸它的美丽,从手指间开出一朵朵世人从没见过的花,未曾抵达的世界。遍寻此间,那藏于记忆中的灼灼不过只是沿途经历的一处,并不带有任何的目的性。你遇见我,我遇见你,在时间无涯的荒野里,不早不晚,不偏不倚,也是一种如水的深婉,一种诗意的栖居。
VOL.2
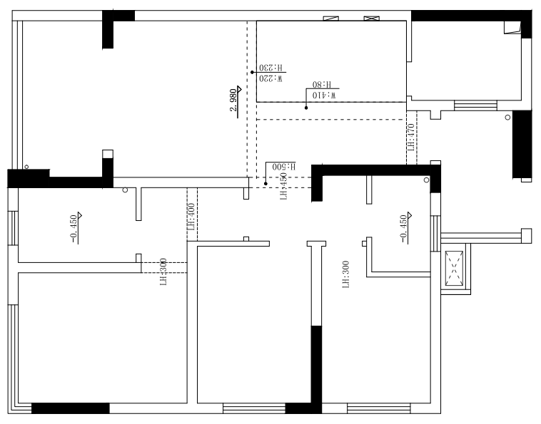
结构解析_脱离碎小空间加强居住舒适度原建筑房屋墙体较多,通透感相对较差,通过将功能区域体块化,打开空间格局,保证每个空间功能性完整的同时加强了居住舒适性,使整体空间更加适合一家四口人的生活起居。
左右滑动看平面布局
VOL.3
展示_
实景呈现
| 客厅
| A LIVING ROOM
推门入户客厅映入眼帘的是一份沉静、优雅干净的灰白色调营造出恬淡静雅的氛围大量红木色定制柜体又多了份稳重的气质
多种材质的混合搭配把肌理打碎、叠加、重组创造出丰富的视觉感用艺术装置与精致的软装饰品提高空间整体调性一呼一吸间都承载出主人的高雅内涵
_| 餐厅| RESTAURANT
将原楼梯间的位置与原餐厅位置对换,牺牲一间卧室扩大餐厅,使其在整体占中间位,让整个空间动线更流畅,功能更完善。
将餐厅处卫生间与卧室一侧用木定制做大块面的隐藏保证了空间的整体感与高级感搭配壁挂简约灵动的时钟使空间稳重而不沉闷内敛而不失现代艺术感_
| 厨房| KITCHEN
白色台面与柜门保持了颜色上的统一,打造出空间的平和与深邃。柜体与油烟机黑色线条的天然呼应,又丰富了空间的层次感。看似简单的小小区域,却处处体现着主人追求极简的审美态度。
_
| 卫生间
| TOILET
简化设计语言
用最少的表达做出最精细的实用空间
回归私宅的属性
在整体中一步步呈现出家的模样
_
项目出品_
THE SECLUSION DESIGN 隐逸设计
项目名称 Project Name : 栖居
项目地址 Project Address : 锦绣龙城
项目面积 Area : 180㎡
服务模式 Service Mode : 全案
空间风格 Space Style:现代
主案设计 Designer:龙波
点击图片了解我们
隐逸设计
THE SECLUSION DESIGN
地址 / 宜宾.龙城蜜立方3栋302.303.304
商务洽谈 / 13568566685
工作时间 /全年无休 9:00——18:00
客服
消息
收藏
下载
最近























