查看完整案例


收藏

下载
THE SECLUSION DESIGN
隐逸设计
VOL.1
序言_
第四代住宅小区,追寻自然真理,突破空间的阻滞,拉长时间的象限,追求私人质感与都市气息的重生,破实为虚,铸虚为实,纯粹而为,向生而立。无论是现代轻奢风,还是融合创新的新中式,皆是一种生活方式的表达,亦是为了释放生活本真的模样。
VOL.2
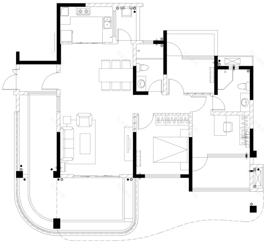
结构解析_
原始平面布局
平面布局图
VOL.3
展示_ | 入户大厅
| ENTRANCE HALL
入户既见花园,用落地玻璃代替墙体,营造空中花园的既视感。另一面墙体做整排木质收纳柜,现代与中式气韵并存,将空间的风雅意蕴铺满,延伸入内。
| 客厅
| A LIVING ROOM
客厅既是起居室,又是会客厅。沙发背景以一面灰墙,寥寥数笔,又于点点墨绿藏身于艺术。于其间,温润的木质与布艺结合舒适而自然,经书日月,风景摇曳,宛如一幅淡雅水墨画,娓娓道着新中式独有的气韵,温柔、柔和、细致的东方慢生活近在眼前。
| 餐厅| RESTAURANT
活色生香、充满烟火气的餐厅总能折射出一家人的幸福感。延续了客厅的留白顶,古韵的圆桌、藤编的扶手椅张弛有度的融入其中,方寸天地间,以线条、结构与造型将现代与东方极致融合,讲述着新中式风格带来的温润与包容。
| 厨房| KITCHEN
木质纹理的橱柜彰显中式风格,“烧香点茶,挂画插花,四般闲事,不宜累家。”悠闲的下厨时光,清风明月伴着朱红,饮茶观景,厨房与客厅、餐厅相连,自在成趣。
| 主卧| MASTER BEDROOM
自然的木纹,写意的山水画,将主卧带入宁静淡雅,浅色的床头与墨绿布艺床品交映对比,稳重与奢雅闲适共存,安然的生活于此间蔚然成风,在夜晚的和暖时光里,享受中式生活的典雅浪漫。
| 次卧| SECONDARY BEDROOM
即便是客卧,不容忽视的仍是那一份生活品质及舒适感。柔和的米色墙板柔化空间色彩,用简约的软装饰品表达现代空间情绪,呼应整体主题,回归宁静悠远。
| 儿童房
| CHILDREN’S ROOM
明亮的黄色构筑童年的梦幻,野营帐篷搭建出更广阔的世界。少年驰骋,仗剑天涯,愿你眼眸有星晨,心中有山海,从此以梦为马,不负韶华。
| 卫生间
| TOILET
断开、接续的空间手法,是缓冲,是转换。有着界定的空间,却没有彼此的界限。用利落的线条协调统一卫生间里各个功能区域,让精致的生活融入空间的每个角落。
VOL.4
效果图展示_
项目出品_
THE SECLUSION DESIGN 隐逸设计
项目名称 Project Name : 长宁·海上明月东岸样板间
项目面积 Area : 146㎡
服务模式 Service Mode : 全案设计
空间风格 Space Style:新中式
主案设计 Designer:廖凤鸣
竣工时间 Time for completion:2022.5
空间摄影 Space phorography : 舍南巷
点击图片了解我们
隐逸设计
THE SECLUSION DESIGN
_
地址 / 宜宾.龙城蜜立方3栋303.304.305
商务洽谈 / 13568566685
工作时间 /全年无休 9:00——18:00
客服
消息
收藏
下载
最近






























