查看完整案例


收藏

下载
Mashup style
岁月清浅
想任岁月自变
奈何上帝太热情
上帝说要有光,于是有了光
上帝说要有你,于是有了你
上帝说要有更好的家居
于是渴望改善生活条件的你
遇到了品清
READ MORE
上帝有一双巧手,还有一副玲珑心思,他总是能轻易洞察人们心底所最需,还会让那几个幸运的人,实现他们的愿望。而这位一直渴望改善生活的业主,似乎是得到了上帝的青睐,才会领略到家园风景也能如此精彩。
这是一套既有男主人所喜欢的新中式,也有女主人所喜欢的美式的混搭装修风格,和谐融洽,点滴深蕴。
案例赏析
阿维侬庄园 | 450㎡ | 混搭
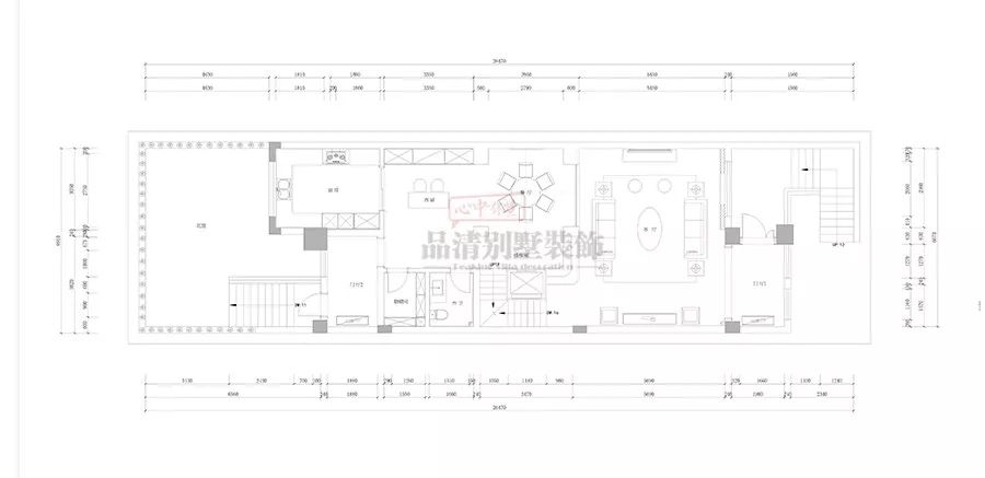
一层平面图
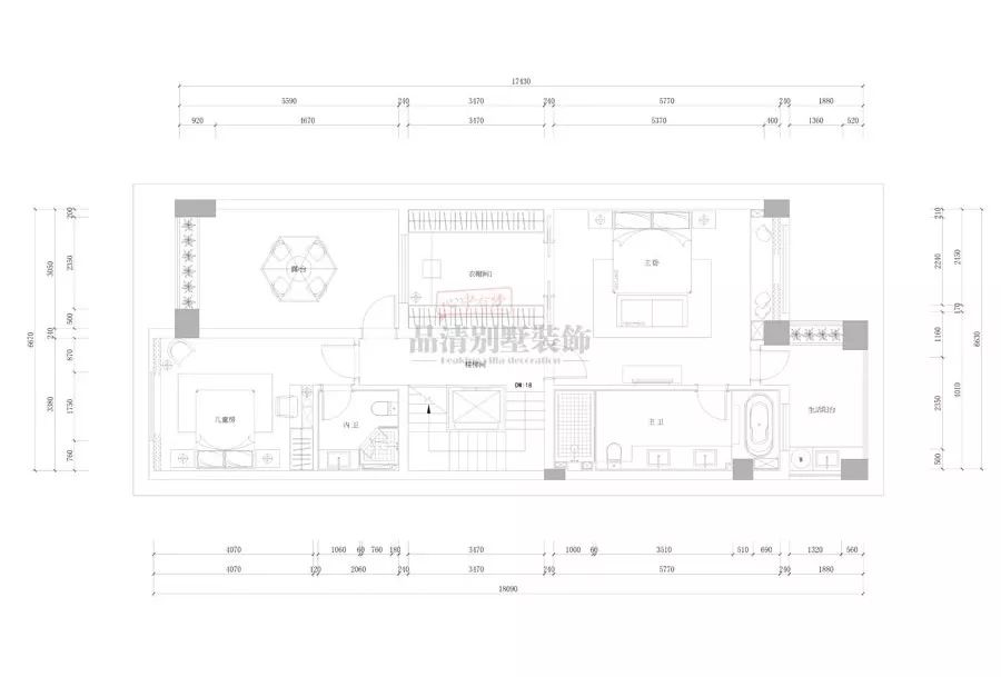
二层平面图
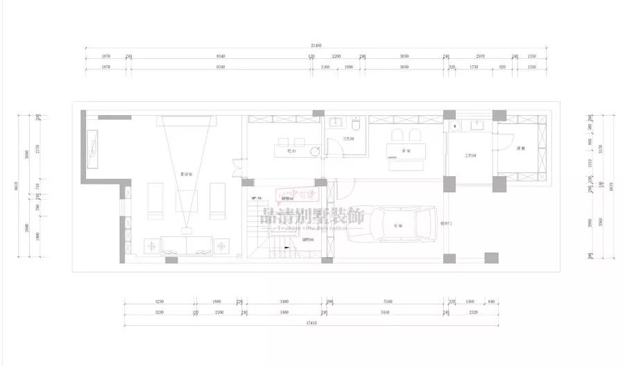
三层平面图
地下室平面图
客厅
一套房子中最能体现这家人喜欢的,那一定是客厅。所以对于这个男女主人喜好风格不同的案例来说,如何搭配就需要格外用心。素色沙发,配以木质的桌子,还有木质的椅子,再以中西皆宜的瓷器来调和两种风格所产生的冲突感,使空间感更和谐。
餐厅
餐厅中的细节部分选用了新中式元素的桌椅和吊灯,只在墙壁上配一副象征自由的海洋风景画,使偏中式的餐厅,带上些美式元素。
影视厅
主卧
清晨起床第一眼能看见自己喜欢的场景,一天的心情也会格外美丽。主卧的天花板和吊灯都充满美式风情,再配以欧式元素装点的家具,还有见光不见色的台灯,浪漫温馨。
男孩房
爱运动,爱体育明星,爱各种能彰显男子汉气概的东西。这几乎是所有男孩子所共有的心情,所以他的房间不用太繁琐,也不用有太多的艺术品,但是一定要有给他收集心情的照片墙,和足够他自己安排的空间。
女孩房
女孩子都有一个公主梦,尤其是上学的孩子,最是爱幻想。所以给女儿的房间,首先就选了纯洁的白色为主色,还有一个藏着细碎小花待人发觉的地毯,让她就算独自一人在房间,也会有发现新事物的趣感。
本案设计师
邹立波|首席设计师
☞设计理念:用心灵雕塑空间,以设计改变生活!
☞擅长风格:现代简约、新欧洲、混搭等
☞代表作品:苏州:水岸清华、太湖水缘墅、无锡:威尼斯花园别墅、蠡湖公馆别墅、太湖锦园别墅、蠡湖壹号别墅、山水茗苑别墅、山水湖滨别墅、万象九里别墅等。
REVIEW
往期回顾
案例赏析 | 轻奢美式 | 以舒适为代名词
点击查看
案例赏析 | 简欧 | 活出尊贵人生
点击查看
案例赏析 | 新中式 | 顺应自然,传承经典
点击查看
点击【阅读原文】,免费获取【预算报价+设计方案
客服
消息
收藏
下载
最近

















