查看完整案例


收藏

下载
?????ℕ ??ℝ ????.
一个110㎡的现代化住宅,以线性轮廓创造出的空间,让空气、能量更加流动;全屋定制原木柜体,构建温暖轻松的氛围;现代中性色调与空间布局的融合,唤起了一个舒适简洁的家。
本案为一家四口的居所,在上有老下有小的空间内,既需要隐私性又需要便利性,如何舒适地共同生活是设计师需要解决的问题。因此我们明确公共区域和私人区域,对房屋结构进行合理的改造,最后呈现出一个温馨、明朗又宜居的四口之家。
雅盛·城市嘉园
项目简介
项目 | Project:雅盛·城市嘉园
坐标 | Location:江苏﹒江阴
面积 | Square Meters:110m
户型 | Layout:3室2厅1卫
设计|Designer :春秋空间设计
客户需求
此案是三代同堂的四口之家,夫妻二人+老人+正在上小学的女儿。
屋主希望家有足够的收纳空间,整洁大方,能最大限度的实现休息放松,简约而有品质感是这个家的设计重点。
根据屋主的需求和期待,我们认为装饰风格中最动人的“高岭之花”——现代风很贴合屋主的需求,在追求时尚与潮流之外,不忘注重居室空间的布局与使用功能的完美结合。
功能设计
我们一直相信,好的房子是规划出来的,空间规划越合理,入住的幸福感越强。
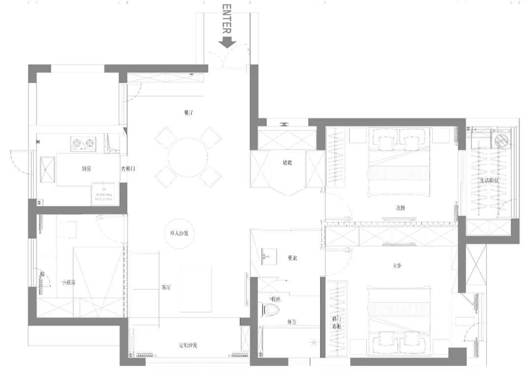
向右滑动查看原始平面图
增加玄关角,利用墙壁夹角,安装鞋柜,生活更便利。餐厅厨房I字形,出餐即可摆台,动线更合理。开辟单独储藏室,增加收纳空间,合理利用房间过道。
公共阳台变为休闲区,既不影响采光,又能拥有独立的休闲区域。卫生间衣帽间一体化,扩大原有卫生间面积,同时拥有干湿分离的卫生间和更衣区。
视觉设计客厅L
Living Room
·卫生间与客厅之间的墙体一半为实体墙,一半为收纳柜,打造为原木色电视背景墙,柜体的板材延伸整个墙面,视觉上形成统一。通铺大地色系地砖,与墙体的木质产生对比,防潮且沉稳大气。
.咖啡色矮脚悬空沙发和暖黄色墙面打造温馨的氛围,沙发背景墙大幅水墨挂画更是让整个空间显得更加的舒适自然。
· 除去一字型多人沙发外,另外增加一把造型独特的单人沙发,解构空间的单调乏味,瞬间触发我们的艺术感官。
·沙发一旁大型落地灯,温暖地置于角落。
阳台Balcony
客厅阳台处依靠落地窗打造定制沙发,可坐可躺,内部可存放大量物品,垫上坐垫,又是非常闲适的休憩角落。
阳台两侧打造顶天立地开放式收纳柜,定制沙发、柜体同一色系,干净利落。
餐厅Dining Room
·圆形木质餐桌,古朴大气,餐厅一侧的窗户面对邻居的家,为了兼顾隐私和采光两大问题,墙体吊顶处挖出凹槽安装见光不见人的纱帘,完美解决这两个问题。
主卧Master Bedroom
为了增加收纳空间,设计师利用主卧墙壁打造整面定制衣柜,原木色柜体与木地板相呼应,达到空间连贯性。
儿童房
Kid’s room
·依据儿童房结构,打造组合定制柜,衣柜+飘窗+书桌三合一。按压式柜门,外观上没有一丝多余的累赘,显得空间线条更为流畅。
卫生间
Toilet
· 卫生间干湿分离设计,湿区用长虹玻璃移门做隔断,加强淋浴区的隐私性,同时保障屋内拥有充足的采光。
干区上下浴室柜皆采用就近原则,纯白色石英石台面,耐刮耐磨,大大延长房屋硬装的使用年限。
·全屋柜体定制,色调统一。表面形式简洁粗狂,细品其中则暗含精微机巧,在理智与自然气息交相辉映中使生活的空间情调显得深远沉稳、温文尔雅。
设计,首先解决的是人的问题,然后再解决空间的问题,两个体系交融弥合才最佳。
· END
春秋空间设计 | 尚海荟
春秋空间设计 | 扬子华都
春秋空间设计 | 黄山湖壹号
春秋空间设计|丽都城市花园
春秋空间设计 | 和院峰景
春秋空间设计 | 黄山湖壹号
您身边的设计专家
Design ForLife.TEL:13382279019
ADD:江苏省无锡市江阴市延陵路55号2层
客服
消息
收藏
下载
最近

























