查看完整案例


收藏

下载
?????ℕ ??ℝ ????.
如果用一个词来描述美国的乡村,那就是温暖。摈弃了奢华和繁琐,用简单,质朴表达了很多人向往的生活状态“回归自然”。
本案屋主喜欢木质本身的样子,每一道年轮都是时光富余的故事。在城市离自然越来越远日子里,幸好还有木质家具保留最淳朴的对自然的呼唤。
因此我们选用美式乡村风,大面积使用原木材质,设计出合理的空间动线,让家成为可以陪伴我们一生的故事,可使用,可欣赏,可回忆......
东方大院
项目简介
项目 | Project:东方大院
坐标 | Location:江苏﹒江阴
面积 | Square Meters:172m
户型 | Layout:4室2厅2卫
设计|Designer :春秋空间设计
客户需求
此案是美满的一家三口家庭,屋主夫妇注重生活品质,热爱下厨的女主人希望厨房能成为她自由创作的小天地,男主人想要一隅让人远离喧嚣浮躁“偷闲”之地。
设计首先应满足功能性的需求,全家人都需要拥有属于自己的空间。
因此我们拆除多余拥挤的墙面,重新规划空间格局,并以温暖与舒适打造他们喜欢的家庭氛围。在家具配饰的选择上,设计师与屋主进行了多次沟通,这里的每一件家饰,都有着自己的故事。
功能设计
我们一直强调空间应该服务于使用者,将需求转化为功能,提升生活的舒适感。
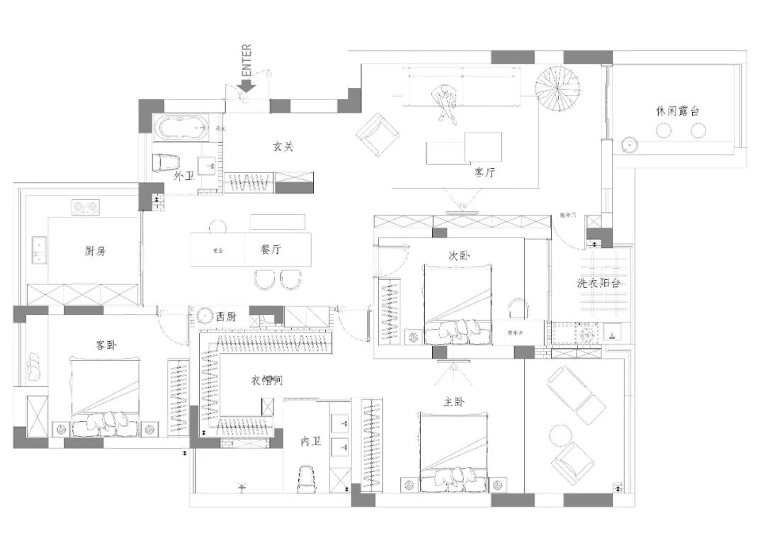
向右滑动查看原始平面图
外卫变餐厅,将原卫生间的区域拆除纳入餐厅,打造和家人共享的公共空间。
原厨房变衣帽间,既解决了原厨房昏暗压抑的问题,又能拥有步入式衣橱和更衣区。
入户玄关一分为二,将干湿分离带浴缸的外卫挪放至此,最大化利用空间。
阳台一分为二,划分生活阳台和休闲阳台,保证了生活感和私密性。
视觉设计玄关E
ntrance
玄关将二分之一的空间让出,巧妙的采用玻璃砖的形式让光通过外卫补给到玄关处,顶天立地的鞋柜与衣柜的结合既能隔断了与餐厅的直接碰撞,又满足了一家三口日常进出门的收纳需求。
客厅LLiving Room
沙发背景采用木板拼接的护墙方式,接近自然本真的木板,一片片将自然乡村的氛围承载。
住宅面积较大,所以每一处的空间都显得十分宽敞,家里的孩子喜欢光脚在地上奔跑,铺设木地板温暖而舒适。
电视背景置物柜与通往洗衣阳台的隐形门结合,美观而实用。开放式的置物格刚好将家里的藏书放入,给孩子营造阅读的良好氛围。餐厅。
Dining Room
为了避免大面积木料的乏味感,设计师使用了文化砖营造出粗狂与岁月感,极具造型感的灯具晕染出丰富的层次感。木饰面板将两扇通往卧室的门隐藏起来,空间协调感更强。
将原卫生间的区域拆除纳入餐厅,厨房移至北面露台处,一扇木质玻璃移门将中西厨分开,打造采光极佳的餐厨区,一家人其乐融融。木质餐桌与吧台相互呼应,丰富的柜体空间让热爱下厨的女主人收藏的小家电有了归属。主卧
Master Bedroom
· 将阳台的原移门拆除,特意设计的地台巧妙的划分了卧室区域,恰到好处的独立感与明媚流通的光线,让功能区明确自己的属性。静谧蓝与自然浅木的搭配,原汁原味地展现出原始随性的美式风格,森林系的壁纸带来了清新与优雅气息。儿童房
Kid’s room
儿童房将原靠阳台的墙面打通,扩大了卧室空间。采用毛玻璃移门将生活洗衣阳台隔断,营造安静的学习氛围。客卧
Guest Bedroom
· 客卧主要留给家中老人偶尔来居住,设计简洁实用。宽敞的卧室有着独特的壁布装饰,与简约自然的实木床完美融合在一起,温馨而舒适。内卫
Toilet
·卫生间地面铺设彩色花砖,空间更加跳跃活泼。双台盆的设计解决了高频率时段使用时的尴尬,收纳设计皆采用就近原则。以舒适机能为导向,突出生活的舒适和自由,风格不应该局限于它本身,而是从乏味的日程中保持心境自由。
· END
春秋空间设计 | 尚海荟
春秋空间设计|扬子华都
春秋空间设计 | 黄山湖壹号
春秋空间设计 | 丽都城市花园
春秋空间设计 | 和院峰景
春秋空间设计 | 黄山湖壹号
您身边的设计专家
Design ForLife.TEL:13382279019
ADD:江苏省无锡市江阴市延陵路55号2层
客服
消息
收藏
下载
最近






















