查看完整案例


收藏

下载
?????ℕ ??ℝ ????.
灰色,是骑士的颜色,穿插于黑白之间,隐锋闭芒,无言守护;灰色作为一种中性色,温和、谦恭,给予人冥想的空间。
本案的屋主是一对年轻夫妻,对灰色尤为喜爱,不只是喜欢它的简单,更是对简单背后极致的追求。不喜欢繁复多余的装饰,希望居室的功能性更为强大。
经过多次的交流,设计师选用哑光质感的黑、白、浅灰,交相叠印,空间以其独特的情感基调,于日夜、四季的光线的轮转中,完成暖性转化。
扬子华都
项目简介
项目 | Project:扬子华都
坐标 | Location:江苏﹒江阴
面积 | Square Meters:170m
户型 | Layout:4室2厅2卫
设计|Designer :春秋空间设计
客户需求
男女主人喜欢无拘无束的空间,享受和孩子共处的亲密时光,三代同堂储物就显得极为重要。
因此我们
“以家人为中心”去营造不同的居室氛围,设
计了隐藏式移门电视墙,满足老人看电视需求的同时
拥有
足够大的储物空间;
不需要太多的家具,客餐厅成为和孩子互动最好的场所。
功能设计
我们一直强调空间应该服务于使用者,将需求转化为功能,提升生活的舒适感。
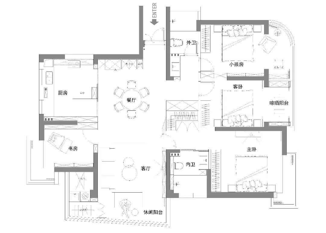
向右滑动查看原始平面图
合二为一扩大厨房空间,将书房部分空间纳入厨房,打造和家人共享的中式中岛。
阳台一分为二,分为晾晒阳台与休闲阳台,互不干扰。
卫生间干湿分离,使用更加卫生健康,洗手台外置大大提升了生活效率。
主卧借用客卧空间完善功能区,设计步入式衣帽间,起居生活从容有度。
视觉设计玄关E
ntrance
· 深灰色鞋柜底部和中间留空,满足收纳功能。中部内置感应灯带,让暗处的过道也拥有令人安心的魅力。鞋柜与餐边柜转角相连,在功能前提下追求美。
客厅LLiving Room
· 客餐厅融为一体、没有明显的屋里分界,利用场域的不同色彩,营造出丰富的空间层次感。
赋予公共区域开放式的布局,给每个家庭成员都提供了舒适的活动空间。
· 客厅没有增加多余外置硬装装饰,利用墙地面材质及家具搭配进行修饰。减少零散家具的体量,让空间更具整体性。
线条利落的柜体,完全可以将杂物收纳妥当。无踢脚线、无主灯,不做多余的装饰手法和故作姿态的材料堆砌,简单也简约展现空间最美的一面。
· 采用隐形门,让电视、沙发背景墙更为完整和谐,室内门加高处理,无限拉伸视觉。电视背景墙更是巧妙的采用隐藏式移门,可以巧妙地将电视遮挡起来。电视墙只为娱乐功能服务,不需要被特别关注。餐厅
Dining Room
在灰白色调的素雅中,浅咖色皮革餐椅显得十分抢眼,如同平静的湖面上泛起的涟漪,以巧妙的姿态提升空间的亮度与灵动感。
· 木质餐桌与白色餐边柜相互呼应,灰色的厨房移门内藏着男女主人烟火气的生活。主卧
Master Bedroom
· 通高的衣柜+隐藏式把手设计,收纳力强大、视觉更显大气。床头背景墙采用不对称设计,体现平衡之美,木质的肌理为空间增添了韵律感,带来了静谧的睡眠环境。
儿童房
Kid’s room
· 背景墙面采用大面积具有活力和清新的浅天蓝色,灯光设计更是点睛之笔,带来素净而精致的视觉体验。窗明几净,散发着温暖的气息,给孩子无限想象空间。
外卫Toilet
· 悬空式的洗手台设计,减轻了空间的拥挤感。为防止镜面与儿童房门相对,设计成镜面在左侧作为柜门方式,正面采用艺术砖与吊灯点缀结合,充满艺术气息。内卫
Toilet
· 有着自然岩土肌理感,光跃进来,空间灵动而温婉。右侧壁龛设计可集中收纳物品,减少物品带来的杂乱感。
洗手盆采用墙排,少了繁杂、更显简洁高级。
马桶区、淋浴区同样满足了功能区的审美性和实用性,入墙式马桶的水箱覆盖了大气的木纹,视觉效果更出众,顺应水箱位置制作柜子,满足纸巾、洗浴用品的收纳需求。淋浴区也制作了入墙式龙头、花洒,还制作了壁龛储物。简洁的外表下,隐藏着实用的细节。
一个舒服的房子,功能一定要合理,一个好的空间设计,就是要把家人都连接在一起。
· END
春秋空间设计 | 尚海荟
春秋空间设计|扬子华都
春秋空间设计 | 黄山湖壹号
春秋空间设计 | 丽都城市花园
春秋空间设计 | 和院峰景
春秋空间设计 | 黄山湖壹号
您身边的设计专家
Design ForLife.TEL:13382279019
ADD:江苏省无锡市江阴市延陵路55号2层
客服
消息
收藏
下载
最近


























