查看完整案例


收藏

下载
空间|创意|时尚|人文|新美学
2019时尚聚心合慧止观十境
轻奢风格作为近两年流行的新宠,以简洁硬朗的直线条和精致的软装元素凸显出低调而奢华的质感,本期案例带来的是鑫界王府样板间的设计方案,让我们走进具有隐藏着贵族气息的轻奢风格……
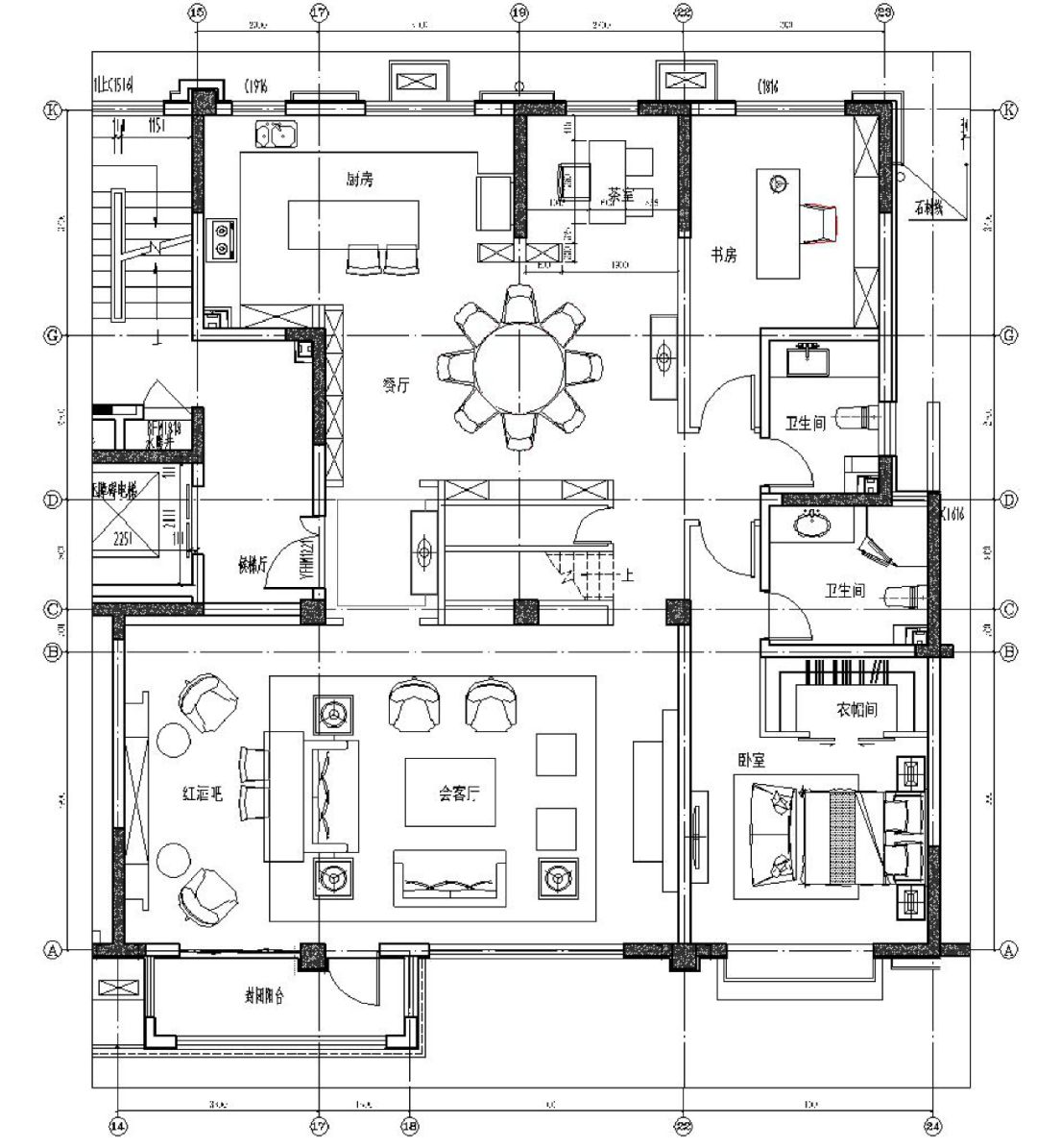
平面图(一层)
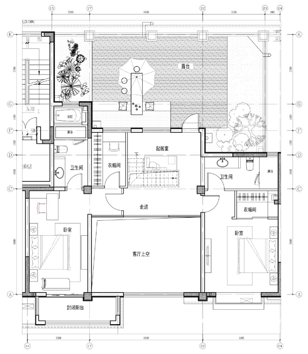
平面图(二层)玄关以一束明黄的跳舞兰为整个空间奠定明快温和的色调,柔美的花枝加上硬朗的几何形黄铜摆件,别有一番滋味。
黄铜与大理石是现下最热门的轻奢元素,黄铜高级的质感和大理石温润内敛,在视觉上形成极大的视觉张力,充满现代感,孔雀绿的天鹅绒沙发的丝质光泽则更加重了古典优雅的味道。
橘橙色皮质沙发椅带有异域情调,让人联想到古典又时尚的米兰。优雅与高贵并存的意大利风格,流淌于米兰的大街小巷。
餐厅延续着玄关开篇的一抹明黄,比起客厅的简约大气,餐厅更加注重精致舒适,无论是原木色的柜子还是点缀的随型玻璃花器,都充满着细致入微的体贴。
优良的材质、完美的形态、淡雅的色彩,是确保美的要素。
设计师侧重生活,以简约的手法勾勒空间,没有繁冗多余的色调和修饰,简单大方。
格局上更讲究人性化与思维化,呈现出一种规则美。
玻璃与木饰面的结合,刚柔并济,既有对比又具个性,而以木饰面作为墙障来分隔空间,在通透性和流通性上比普通的隔墙更胜一筹。
小小的摆件也外形独特,高低错落,玻璃灯具有序垂下,随意穿插,灯光光透过时,斑驳的剪影构成一幅动人的画面。
有序无序的几何图形,分布在空间的各个角落。色彩层层递进,从浅色的墙纸到灰色地毯,再到深色木饰面,一步步吸引人的目光,三种颜色各自独立,收入眼底却又彼此相融。展现出空间的棱角和柔情。
未完待续关注我们
我们致力于成为最受推崇的创意设计机构
我们期待并尊重创意的思想火花迸发碰撞
我们会为您打造一个没有边界的设计之旅
我们能让您体验到设计带给的价值和情感
我们是一群有思想和灵魂的设计匠人
客服
消息
收藏
下载
最近















