查看完整案例


收藏

下载
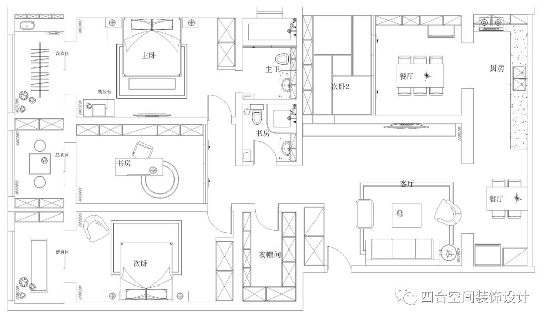
本案位于太原市富佳苑平面
本案是一套四居室,业主均为大学教授。夫妇二人在装修整个过程中也是最大的配合了我们设计方案的最终落地,呈现出了这样一套清新优雅的效果。
设计师在此融入中国文化底蕴,同时注入创新时尚元素达到挥洒自如,一气呵成的艺术境界。空间基调以浅色为主,更为休闲,体现出现代人对传统文化的一种传承,从而使居者切实地感受深厚绵长的东方古韵。
客厅方,整个案例均以沉稳的木色为主。入户门进来正对的是由壁布、硬包结合打造的电视背景。进门左手侧的鞋帽柜用以放置日常出门的外套、鞋子。使用中国特色的漏景等中式元素点缀各个功能区,展现层次之美,塑造简单素净的氛围。
圆有圆满之意,确切符合了中国人内心深处的向往。中式风韵的现代演绎以简约内敛、精致古典的独特魅力将经典融入生活传递空间力量俘获了众多家居爱好者的心令人一见钟情是东方美学的进化论是情结,更是情怀
餐厅&客卧
湖蓝色印花餐桌加上低调的胡桃木餐桌让整个空间看起来会更加具有独特的稳重与安静。在这里,于设计师巧妙的运用了净中取静的设计思路,在餐厅中做了步入式榻榻米,让整个空间具有神秘气息。
主卧
设计师充分考虑到家具的色调和款式,让整个就寝空间完美的容纳了风格的独特魅力。神秘的湖蓝色可以给空间增添轻松的氛围,低调的配色与木质所组合的温度,无时无刻不在吟唱其独特的端庄韵味。
次卧
风格也理应追随源泉,以素色呈现
卧室选用柔和灯光作为整个基调
略有暗香疏影的含蓄之美
书房
书房阳台利用起来满足客户喜爱品茶的爱好打造的惬意、雅致让繁杂的生活中有一块小小的地方能静心思考,释放压力为保证通风采用了中式独有的屏风推拉门造就独特的新东方艺术空间。
设计师推崇简单富有禅意,将水与墨浓与淡,留白与想象相结合的质地美感,取其精华、舍其繁琐,以现代人的审美眼光来弘扬中国古典文化,这才是东方之美。
项目名称:富佳苑
项目地址:中国太原
项目面积:170㎡
室内设计:四合空间设计事务所
主案设计师:王刚
设计团队:赵鹏飞、陈璐、聂可
19934970905
设计师:王刚
四合空间设计事务所 设计师
喜欢的盒饭宝宝们
点击关注四合吧
关于四合空间
四合空间成立于2015年,我们主要面向中高端客户群提供住宅,办公,酒店,餐饮,别墅,会所,商业空间等项目的设计,施工,家具以及软装配饰定制一体化服务。
关注小编,免费分享
地址
:山西省太原市小店区晋阳街体育路口北美N1文创区8号楼1604
咨询热线:0351-2576222
客服
消息
收藏
下载
最近













