查看完整案例


收藏

下载
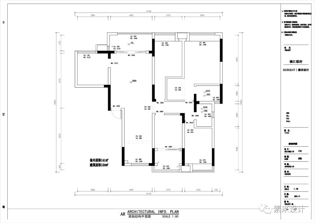
项目地址 | 漓江郡府金桂府
Project address| Li Jiang junfujin gui fu
面积 | 155㎡Area| 155
设计单位 | 素来设计
Designer|Soright
光影、温馨、色彩、空间构成
本案设计师通过与九零后小姐姐的沟通及思想碰撞,些许重组部分结构,布局其心目中的大衣帽间、星级酒店式大主卫,以奶油色为空间基调,结合现代的简明线条勾勒,打造非惯性的法式居所,空间浪漫且温柔。
平面布置图
/Floor plan
客厅/Living Room
以奶油色为色彩基调,结合现代的简明线条勾勒,加上精致的软装摆件,增添了生活的仪式感。
With cream color as the color tone, combined with modern concise lines and exquisite soft decoration, it adds a sense of ritual to life.
餐厅/Dining Room
采用长虹玻璃的联动移门,既有生活的实用性,亦有空间的隐私性。
The linkage sliding door with Changhong glass has both the practicability of life and the privacy of space.
主卧/Master Bedroom
主卧将优雅格调以温润素白的色彩诉诸于人的视觉,一种优雅浪漫与空间的设计的共感、交响,衬托出休憩空间的舒适氛围。
The master bedroom appeals to people’s vision with elegant style and warm and plain white color, a common feeling and symphony of elegant romance and space design, setting off the comfortable atmosphere of the rest space.
衣帽间
cloakroom
净白基调里,以材质本身的纹理与纯朴用色,营造纯净清新的氛围。
In the white tone, the pure and fresh atmosphere is created by the texture and simple color of the material itself.
儿童房/Children’s room
打破传统儿童房的色彩基调,素色乳白结合莫兰迪蓝,温柔且淡然,静谧空间挂上云朵灯系,趣味十足。
Breaking the color tone of the traditional children’s room, the plain milky white combined with Morandi blue is gentle and indifferent. The cloud lamp system is hung in the quiet space, which is full of interest.
客卧/GuestRoom
扇贝形床靠与柔软的床品相互呼应,表现出细腻的质感层次。
Scallop shaped bed and soft bedding echo each other, showing a delicate texture level.
多功能房/Multifunctional room
公司简介
/company profile
广西素来设计有限公司,是一家专业从事大型商业空间的设计及施工的企业。以“绘事后素,不忘初心”为宗旨,坚持“诚信立业,品质为本,服务至上”的经营理念,管理追求以人为本,精细管理,务求实效的管理理念。通过不断系统的完善和整合企业内部团队管理、经营服务体系、设计施工标准化,为客户打造更高品质的设计作品,创造企业价值。
40UNDER40中国设计杰出青年(2021-2022)“金堂奖全国联盟”2020年度杰出办公空间设计奖2020第十一届IDOL锋范奖办公空间(实景)【金奖】第六届(2020)中国设计【新桂系】设计大赛银奖“WDA世界青年设计师大会2019年度杰出设计师”荣誉称号2019年40UNDER40中国(广西)杰出青年(2019-2020)工程代表案例/construction case
桂林兴安界首骨伤医院新综合大楼
桂林阳朔香樟华苹奢华度假酒店
柳州鹿寨鸿鹿大酒店
柳州鹿寨元森泰餐厅
广西素来设计有限公司
GUANGXISULAI DESIGN CO., LTD
桂林市七星区信息产业园创新大厦A座a401
Tel: 18177374293Fax: 0773-8987288© SORGHT DESIGN
好好住:素来设计
长按扫码,关注我们哦~
添加客服,在线咨询
客服
消息
收藏
下载
最近


















