查看完整案例


收藏

下载
世界上大抵没有一个字能比得上“家”让人觉得温暖当理想中的家园完完整整的出现在眼前幸福也变得触手可及
大名城,幸福启程家大名城装修,对于每一个家来说都是一门逃不掉的必修课。但繁复的环节和材料,让许多人都头痛不已。但是,田园装饰,急您所急,想您所想,早就针对大名城的户型,派出了专业的设计团队进行了深入的户型分析。下面,让我们一起来看看吧。
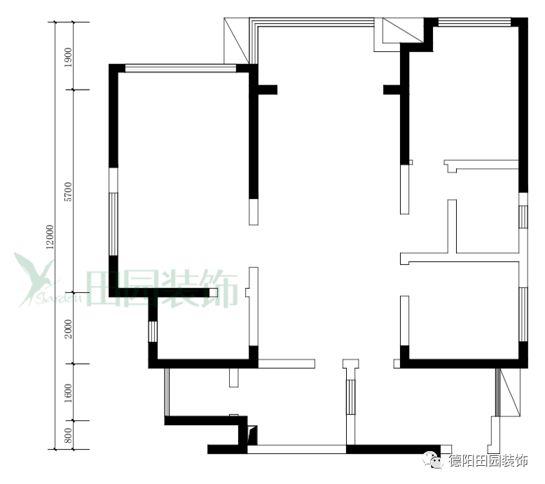
地址:大名城E1户型
面积:89.02㎡
设计师:王滟濛
▲原始户型图
户型改造说明
户型特点:作为89㎡的三房户型方正,几乎没有浪费空间。作为三房都需要住人的刚需户型来说,卫生间使用不便,厨房拥挤。
户型改造:三房变两房,常住人口不多的情况下,尽可能的满足体现卧室舒适感的功能需求。
▲平面方案图
▲参考意境图
设计师简介
王滟濛
GARDEN DESIGN DIRECTOR
王滟濛
空间决定生活。人、空间、时间,不同的组合发酵,在室内空间中体现出的会是不同的生活美学。每个人的居住空间应该能诉说出自己的独特故事。
地址:大名城F1户型
面积:147.5㎡
设计师:李荣
▲原始户型图
▲平面方案图1
户型改造说明
此方案以三口之家或者夫妻两人为背景,保留了两个独立卧室,一个可变开放式书房,因此我们主卧没有再考虑保留采光是尽可能的更多柜体满足年轻人行李的收纳。开放式书房及满足两人一起工作娱乐的同时有客人到访也可做客房使用。吧台设计作为年轻人的水吧区同时既有传菜的功能也为厨房增添采光。
▲平面方案2
户型改造说明
此方案以三代同堂为背景,保留三个独立的卧室,主卧室增加衣帽间功能并设立了书桌及梳妆台多功能桌,保留了原有采光通风形成一个多功能房,让加班和睡眠互不打扰。小孩房梯步榻榻米设计不仅增加了榻榻米储物空间还给小孩一种生活仪式感,让小空间没有浪费满足孩子的玩耍学习所有需要功能。整体空间尽量考虑多的储物功能,餐厅圆桌满足多人进餐和家庭聚会。
▲参考意境图
设计师简介
李荣
GARDEN CHIEF DESIGNER
李荣
年轻思维活跃既有感性的创新意识又有理性的生活观念
地址:大名城F1户型
面积:147.5㎡
设计师:张强
▲原始户型图
▲平面方案1
▲平面方案2
户型改造说明
F1和F2两个户型的区别在于入户鞋柜的位置不同,四个房间课根据需求调整功能分区。
厨房相对较小,没有冰箱的位置。所以厨房和生活阳台打通,扩大厨房,这个户型的休闲阳台是个转角,所以转角的背面可以做生活阳台,用于晾晒,也不会影响整体美观。
客卧开门对洗漱台和镜子
客厅长度是6.76米,在客厅,在客餐厅的比例分配上,需要考虑到家具尺寸和动线尺寸。
主卧侧面有卫生间,考虑增加衣帽间,主卧会出现两个问题:1、卫生间门对床(少数业主会介意)2、衣柜极少。所以需要调整摆放位置
地址:大名城F2户型
面积:146.91㎡
设计师:张强
▲原始户型图
▲平面方案
▲参考意境图
设计师简介
张强
OUR BEAUTIFUL DESIGNER
张强
好的建筑设计,我们深处其中,却不知道自然在哪里终了,艺术在哪里开始。家的设计是一种感受,一种心态,一种舒适的生活方式,艺术,自然。
地址:大名城E2户型
面积:135.07㎡
设计师:李小梅
原始户型图
户型改造说明
优点:原始户型图客餐厅连贯,整体空间动静分明,阳台大,通风好可变形大。
可优化区域:1,入户玄关太长浪费空间较大
2,客厅不够大
3主卧储物空间少
4 厨房面积小,使用空间局促
▲平面方案1
户型改造说明
设计说明:整个房间有3个,作为改善行住房调整为两房,把原来的两个小房间改为套房变成主卧使用,原来的主卫门洞改到现在主卧里面开,原来的主卧改为次卧,餐厅增加西厨和储物以及放冰箱的功能,使原来厨房功能空间得到延伸,整体功能动线做了调整,使的每个空间的变得更合理舒适。
▲平面方案2
▲参考意境图
地址:大名城E3户型
面积:140.03㎡
设计师:李小梅
原始户型图
户型改造说明
优点:原始户型整体方正开阔,客餐厅阳台一体性强,主卧面积空间舒适,整体采光也很好
可优化区域:1、餐厅增加储物,西厨和放冰箱功能,从而使厨柜面积更大更好用,2、生活阳台门改为双推拉门既增加厨房采光又节约空间
3、书房改为半开放式拓展了公共区域视野空间
4、主卧空间大,增加一个衣帽间带梳妆台的功能区域,不仅增加了储物更使空间功能布局更合理,主卧门改为双开门更显大气。
▲平面方案1
▲平面方案2
▲参考意境图
设计师简介
李小梅
OUR BEAUTIFUL DESIGNER
李小梅
本期大名城的户型解析就到这里啦,还有其他户型,咱们下期再见啦!也欢迎到店咨询哦,大名城的户型我们都有做解析的哟!
来吧来吧,相遇大名城,相约田园里!
▲田园装饰设计中心团队
田园装饰|经典实景案例回顾
【点击图片了解详情】
世纪城
保利国际城
金澜苑
白马关五丁谷
天悦湾
春天印象
天悦湾
什邡世纪新城
华庭阳光
金湖名城
广汉雒城一号
保利波尔多
北辰观山水
碧桂园
水岸花都
山海天
山海天
花雨树
保利波尔多
Now
正能量关系中的核心部分是
让彼此都变得更美好
让每一所房子
呈现出自己更好的样子
让每一段时光
散发自己最亮的光芒
田园GARDENღ生活LIFE家FAMILY
关于所有美好的事物
ABOUT ALL THE GOOD THINGS
客服
消息
收藏
下载
最近














































































