查看完整案例


收藏

下载
项目地址:德阳·什邡世纪新城
建筑面积:260㎡
项目户型:四室两厅三卫
主案设计师:蔡金辉
项目性质:全案设计
本案主材:本杰明摩尔涂料、哥德堡整体家居、西图实木定制、TOTO卫浴、欧派橱柜、索菲亚衣柜、皇派门窗、箭牌卫浴
什么是真实?在你所感知的安全范围内,所能展示的最全面的自己,不做作,热爱生活。在做这个案子的时候,业主夫妇已经有一个帅气的三岁男孩儿,正在计划着再要一个萌萌的二胎宝贝。夫妇两人性格温和,在装修设计上,男主人基本上全程表示只要女主人喜欢就好,一切都听女主人的安排来,狠狠的撒了一波狗粮。这套房子是我接打后期改造户型,在做水电的时候业主邀我去的现场。通过交流我发现业主喜欢时尚、浪漫、明亮温馨的设计,于是在充分的沟通之后,将之前定的地中海风格改为时尚美式。而第一次沟通完之后,我一直在想我要以什么主题来做这套房子,突然就想起了《真实》这幅画,也许业主给我的感觉就是真实,不做作,热爱生活。于是我们开始了装修这趟琐碎却愉快的旅程。女主人很信任我,我们去到很多地方找寻她心中想要的感觉,去挑选我们想要用到的材料。一点一点完善着这个家,与此同时,二宝也在她的肚子里悄悄的成长着,一起见证着美好的蜕变。
▲一楼原始户型图
一楼平面方案
二楼原始户型图
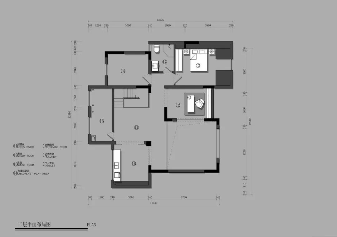
二楼平面方案
设计就是设计一种生活方式,因而,设计没有确定性,只有可能性,没有永恒,只有瞬间。——埃托·索特萨斯
在每个不同的环境中挖掘不同的空间性格
从每个人对空间的需求感中发现改造的可能性
常规的是家居的使用功能
不常规的是居住成员的多样性
每个家都有其独特的家居闪光点
而设计的意义在于
我们发现并运用了它
在这几个月里,我们都经历一场巨大的博弈。所有人,都辛苦了,但好在结果让人很开心和满意。
我们一直在改变一种生活方式,这种生活方式是自由的,是随意的。也许一切都是因为刚好需要,所以成就了现在的生活。
设计师更多什邡作品,敬请期待
1、什邡·雍锦府 150㎡ 北欧现代风格
2、什邡·鑫科花园 120㎡ 北欧风格
田园装饰|经典实景案例回顾
【点击图片了解详情】
保利波尔多
保利波尔多
北辰观山水
山海天
碧桂园
水岸花都
山海天
华庭阳光
金湖名城
春天印象
广汉雒城一号
花雨树
Now
正能量关系中的核心部分是
让彼此都变得更美好
让每一所房子
呈现出自己更好的样子
让每一段时光
散发自己最亮的光芒
田园GARDENღ生活LIFE家FAMILY
关于所有美好的事物
ABOUT ALL THE GOOD THINGS
客服
消息
收藏
下载
最近











































































