查看完整案例


收藏

下载
广西柳州市城中区龙城临街商铺工业风空间多形式展示圆弧造型、冷硬水泥涂料赋予空间灵感恰是来源店主身上独立及浪漫情怀一家服装买手店一种精神意识的触动汇集一场混合面貌、心灵、衣着的设计盛宴
建筑师高迪说直线属于人类,曲线属于上帝。整体空间线性流动丰富,直线、曲线交叉,使得空间张力更强烈。拱形弧线柔和,灰色块面冷硬,交汇力量相生相融。多层次体现店铺故事及视觉唯美感。
流畅的顶面圆弧造型与拱形门洞形态上构建了视觉印象,水泥块面做了单品的弧形陈设,呼应了整体的空间元素。推陈出新的功能价值,配有的灯光投射,墙面及服饰,花卉,弧形,色彩反差,相互衬托,主次分明。
设计师运用流线匀和的路线及大面积落地玻璃使整个空间通透敞亮。暴露的空间缺失了“神秘感为此设计的开放橱窗起到遮拦效果加强了外立面的层次感利用楼梯下方的小空间合理规划了休闲平台区为消费群体搭建更合理的空间需求。
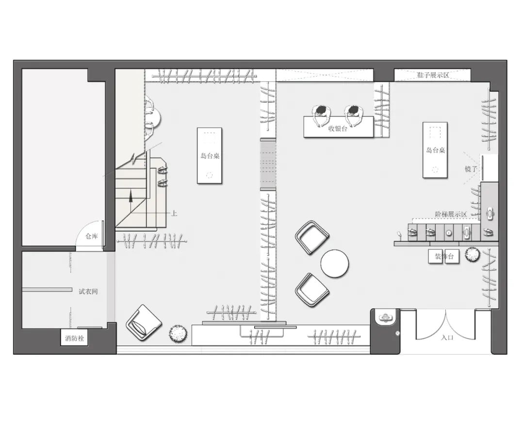
△平面规划
通过业主对生活的态度唤醒一系列的设计灵感对空间的释放就如同心灵和思想的一系列的感知
项目概述
项目名称:亦柔亦刚
广西城中区
设计公司:居久空间设计
项目地点:广 西
项目面积:120m².商铺
项目摄影:雷天鸣
室内设计 | 商业空间 | 软装配饰
M+18677227600E:
Address:广西柳州市城中区兆安现代城三期62-302
客服
消息
收藏
下载
最近
















