查看完整案例


收藏

下载
没有风格的标签化设计每个空间都尽显温馨雅致
以放松的姿态蔓延这才是家最好的诠释
CC-Design
—CC-Design—
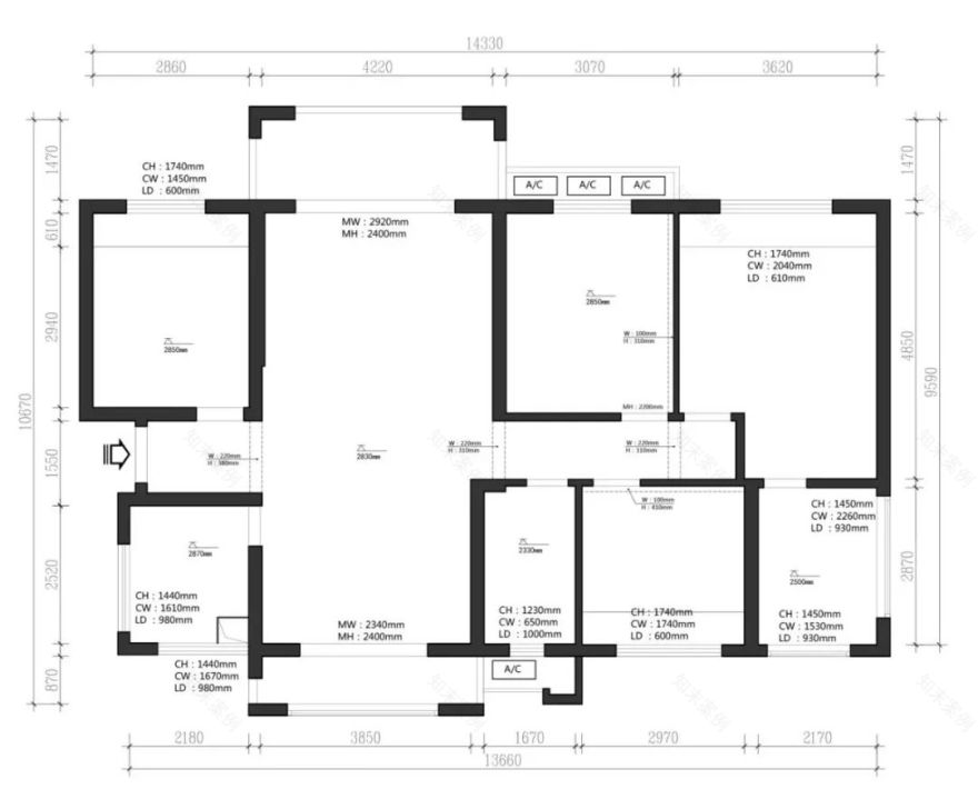
空间布局 ---▼ 原始平面图〉〉
▼ 平面拆改图〉〉
布局改造
1、入户门厅利用了次卧空间增加门厅换鞋区及玄关屏风,为此增强了空间区域的层次感。
2、拆除厨房墙体,做一组小吧台,使开放式厨房通过小吧台与客餐厅产生互动,让空间更有穿透性。
3、过道太长,空间浪费。我们缩小过道,为女主人增加了收纳功能性,将一个房间改成主卧衣帽间。
4、了解女主人的一些生活习惯及兴趣爱好,我们将原先的衣帽间改成了一个功能性瑜伽区。同时也为主卧增加了一个卫生间功能,便于夜起方便。
▼ 平面布置图〉〉
—CC-Design—
---设计色彩元素
▼ 客厅效果图 Drawing Room 〉〉
—CC-Design—▼门厅Hall 〉
▼ 客厅Drawing Room 〉〉
业主一家喜欢的现代风格以淡雅简洁为主,因此我们在家中大量运用了原木色家具,去塑造自然简约的家居氛围。
阳台 Balcony
阳台坐位于西北方向,窗外对着广西百里柳江的美丽江景。“品”所爱,“观”所爱。身边有爱,窗外有景,便是最美的时光。
▼ 餐厅Kitchen 〉
开放的餐厨空间里,整合吧台与餐桌的机能,无论是喝杯咖啡、享用大餐,在空间里创造了多元的日常情境。
▼ 厨房Kitchen 〉
▼ 过道Aisle
—CC-Design —
主卧室Bedroom
起居室旁边有一个女主人的瑜伽区,敞亮舒服,这个角落是客户最喜欢的一个小空间,阳光洒落,岁月静好,没有世俗的喧闹,何其乐哉!
主卧的色彩加上木材搭配是围绕着寂静的森林意境,将林间的舒适、林间的安静融入空间设计中,让居住者有着身临其境的体验感。
衣帽间 Cloakroom
▼女儿房
Daughter Room
—END —
•项目信息
项目地址|广西柳州红星天铂
设计面积|140㎡
项目性质|硬装设计及软装设计
项目风格|现代风
主案设计师|崔剑霏 CC-Design
室内设计团队|黄哲青、张岚、廖嘉嘉梁育静李桃明、吴聪
施工图深化|闫春燕
灯光深化|韦盛耀
完工时间|
2020/10/1—CC-Design—
CC原创设计团队从事于室内空间设计、室外景观设计。设计范围有:文化展示空间、办公空间、高端会所高端私宅、餐饮空间、酒店会所等。CC设计施工一体化的服务分成了两个服务板块《设计板块》和《施工板块》。“CC-Design”专注设计,专注于空间研究。“雅布装饰”专注施工,专注于把设计落地。
"CC-Design"
我们会对不同的户型,不同的风格业主喜好需求根据前期平面方案设计的规划及后期软硬装的搭配设计对空间进行1比1的设计施工,用适合的空间设计去呈现家不一样的魅力。
“雅布装饰”自从CC-Design建立以来,有着专属我们的施工板块,多名优秀的现场施工监理人员携着技术精湛的老师傅,与CC设计更是有着10来年头的配合默契。
专业的灯光设计,优质的施工工艺,将设计在空间1比1的落地呈现。
—CC-Design—
- - - 主创设计师:崔剑霏女士 (CC)- - -
代表作:阳朔遇龙河民宿酒店涠洲岛西角民宿精品酒店柳州《和一堂》私人博物馆广西乐和庄园餐厅、办公楼、民宿酒店南宁国宾一号顶层别墅碧桂园十里江湾李府叠拼别墅碧桂园十里江湾毛府叠拼别墅
获奖经历:2017年艾特奖最佳文化空间设计入围奖2017年艾特奖最佳办公空间设计入围奖2017年锋范酒店空间设计优秀奖2017年锋范休闲空间设计优秀奖2017年新桂系酒店空间设计铜奖2018年艾特奖会所空间设计入围奖2018年锋范公共空间设计优秀奖2019年集美国际设计奖年度优秀豪宅设计师2019年第九届中国国际空间公共空间铜奖2019年40UNDER40中国设计杰出青年2020年广西设计十佳品牌人物2020年联发臻境样板房创意设计大赛银奖
—CC-Design—
空间 | 原创设计
设计师崔剑霏:18607720207
黄哲青:15577224428
闫春燕:18877887772
工作室地址广西柳州市文昌路石尚1966文化艺术园区3栋111号
客服
消息
收藏
下载
最近




























