查看完整案例


收藏

下载
世间所有的相遇,都是久别重逢。
《一代宗师》
Youfeel
楼盘:柳州正和城D区面积:96户型:三房两厅两卫装修风格:北欧风格设计单位:羽非设计事务所施工单位:羽非装饰设计施工设计思路:通过与业主的沟通,决定以北欧风格为基调,考虑空间的运用,在简练的基础上,丰富细节的运用与装饰。带来视觉上的惊喜和功能上的完善。业主说:目前网上也有很多北欧的案例,但是我还是想追求属于自己的格调。所以设计师的方案在细节的处理上花费了很多心思,有一些独特的灵感,也是第一次碰到。还是比较满意了。
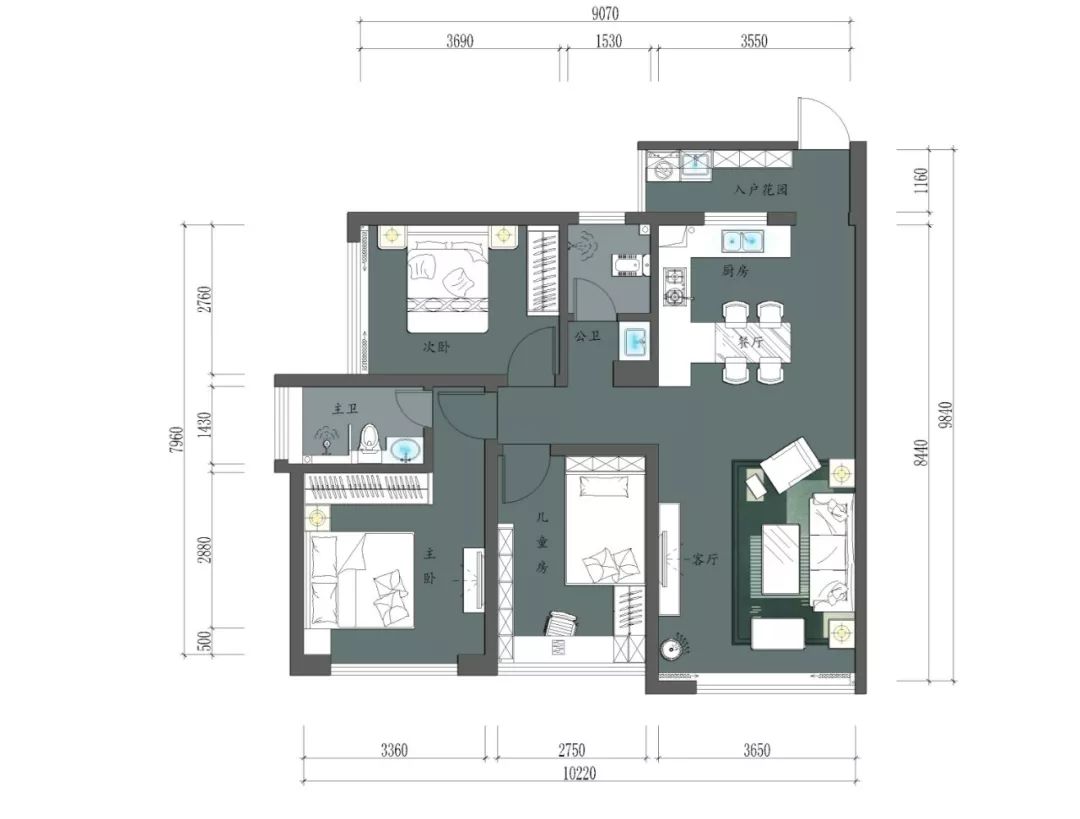
△原始户型图
△平面布置图
家是一种状态,是一种能坐看时光浸漫、平静感受一切自然发生的状态。
就好比每一个阳光倾洒的早晨,每一个徐徐有风的午后,我们静静感知着,并在这样的场景里,一次一次体会着家之于我们的意义。
客厅〡 Living room
客厅木地板采用人字铺贴方式
沙发背景墙采用两副画风大小不同的组合
不中规中矩和空间协调又不失个性活力
"我爱死了这个沙发"
午后,阳光正好
软软地躺在沙发上
就像躺在一朵棉花糖里
做一个
轻柔的、浅浅的、带着笑意的梦
就连绿植、抱枕、画上的风景都为你着迷
你是人间四月天
电视背景墙斜纹式装饰在视觉上将空间往四周延伸,上方隐约的光洒下来,让我们客厅空间更宽敞。
餐厅 | Restaurant
为更好的动线规划
客餐厅之间没有做刻意的划分
形成宽敞通透的视觉效果
餐桌与橱柜台面呈T字相接
四个圆形大小不同吊灯
增加空间灵动性
主卧 | Bedroom
落地式的窗帘拉长了卧室的高度
无主灯设计没有了阻挡视线的吊灯
空间更加宽敞
沉溺于灰的优雅
北欧的静谧
一天的熙熙攘攘结束后
闭着眼躺在床上,我们单纯而平静
享受生活的安宁,好不惬意
次卧 |Bedroom
木地板向墙面延伸,轨道射灯安装位置突破以往印象,让我们单一的床头背景增添趣味性,空间饱满而不局促。
不同材质和肌理的运用元素和细节的变化让卧室设计更有层次感和品质感演绎时尚精致的美学设计
小孩房 | Children’s room
孩子也有自己独立的灵魂
我们为孩子打造属于自己的乐园
书桌、衣柜、玩具柜,三合一的设计避免的笨重感,灰粉的搭配不论是童稚期还是青年期都不会厌倦。
不讨喜的狭长型卧室
在设计师的装扮下,劣转优
将休息,学习,娱乐集于一体
卫生间 |TOILET
打开门不是局促感而是精致感,一切都井然有序。
卫浴空间的收纳也不容忽视
4平米的卫生间发挥了6平米的功能
始终觉得,时光留给我们的时间总是不多的,看似百般无聊的下午,或许是很多人生命的终点。
在很久以前我便知道这个道理,所以我更容易看见生活的另一面,一条狗,一只猫,我不在乎他是否可爱,我只在乎它是否幸福。
客服
消息
收藏
下载
最近






















