查看完整案例


收藏

下载
△戳蓝色字添加关注哦!
生活中总有那么一些绝妙的相遇,比如房东与租客,比如设计师和房子的相遇。相遇造就了故事,也牵连出更多的情感。
Design company:阮秀仓设计事务所
Style positioning:美式Client:张总Project area:470㎡Project site:
合肥 维也纳森林花园
风格设计特点
Style design features
在设计上,我们引用“少即是多”的设计理念,看似简单的空间越能体现设计师是经过深思熟虑后经过创新得出的设计和思路的延展。这一次我们打造了一个温馨舒适又不失现代感、时尚感的“休闲的美式空间”。
整个空间的风格以美式为主,却又没传统意美式风格贵族气息,更多的是现代风格的时尚与简约风格的温馨,只是通过局部的美式风格装饰性元素,来表现美式风格。
这次的案例有些特别,这座私宅正是我们曾租用两年的办公工作室。在这里我们拥有很多专属回忆,也熟悉它的每一个转角。
现在再来打造它,似乎是命中注定。
遇见,熟知,然后成就彼此。
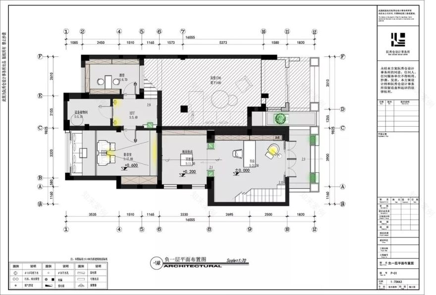
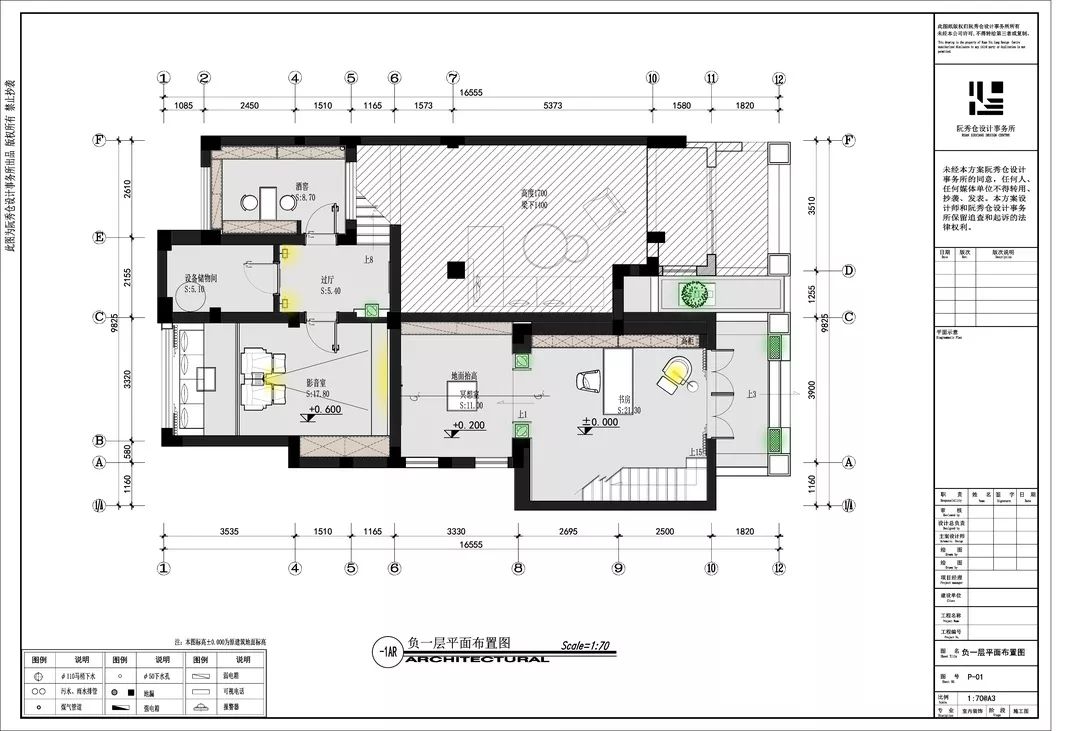
项目负一层平面布局
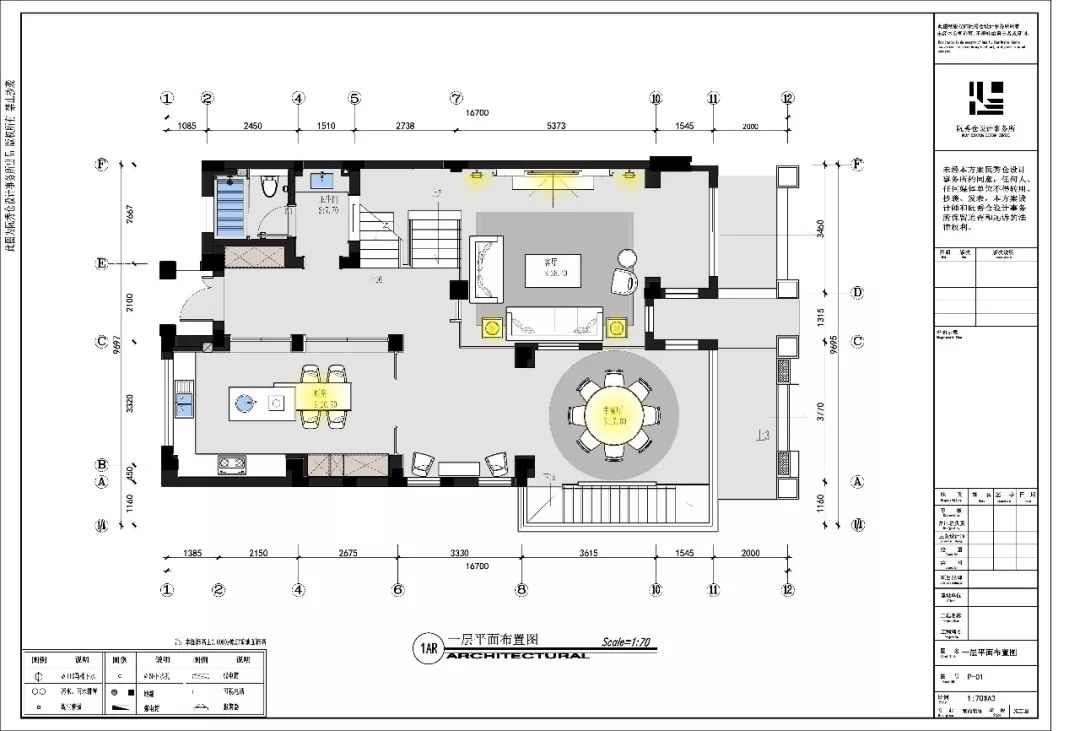
项目一层平面布局
项目二层平面布局
项目三层平面布局
▲一楼入户
入户门厅直接展示出整体设计风格,以米白色作为基调,缀入黄色线条,明快温馨。玻璃墙的设计,不仅增加整个门厅的采光,而且使整个空间显得更加通透,减少压抑感,现代前卫。富有艺术感的地砖和过道尽头的绿植,让业主在回家的第一瞬间,就立刻放松,心情舒畅。
▲一楼客厅
客厅电视墙上花鸟壁布古典素雅,地砖、沙发、挂画、储物柜均沿用花鸟元素,给整个空间带来美式田园的自然惬意,搭配美式设计中常采用的木质家具,整个空间浑然一体,高级又温馨,力求表现悠闲、自然的田园生活情趣,它摒弃了过多的繁琐与奢华,在古典中带有一点随意。
▲餐厅
大户型的餐厅宽敞明亮,亮黄色的窗帘让人食欲大开。典雅自然的吊灯投射出黄色的光线,可在晚餐时营造温暖的用餐氛围,墙面使用大幅的壁画装饰,艺术感十足。圆形的餐桌搭配淡紫色的丝绒餐桌椅唯美、优雅。在餐厅的时间虽短,但和家人围坐,品味四季三餐的美好却是无法代替的。
▲餐厅过厅
过厅利用跳跃的黄色墙面、蓝色柜子、绿色沙发进行视觉上空间的划分,增加了储存空间,还可以在靠窗位置小憩一下,看书或是看窗外的景色。厨房与过厅设置玻璃门,在必要时可隔断厨房油烟,同时也最大限度的开阔视野。
▲二楼儿童起居室
走进二楼室内,地面选择木质地板,简洁雅致。整体设计在色彩的运用上活泼中带着沉稳。既有儿童的天真浪漫和绚丽多彩,也有男孩独特的内敛一面。桌椅选材上选取舒适、柔性的材质组合,多层置物架可完美收纳两个孩子的书籍、玩具以及日常用品等,在这里,孩子嬉戏玩耍,一家人其乐融融,建立起一种温情暖意的家庭氛围。
▲儿童房
学习空间墙面上可爱的云朵既可以起到装饰效果,还能够置物。书桌上方安装简约的吊灯,为孩子学习呈现最好的灯光效果。榻榻米又是孩子读书、休息的好地方。用心为孩子打造他的小小世界,把每一份爱融进设计的细节里。
二层客房
客房以白色与墨绿色做为主色调,整个空间素雅大方,干净利落,没有一条弯曲的线条,让人眼前一亮。每一位入住的客人都能感受到精致、简约、大方。
▲客卫
客卫采用极简设计,大面积的窗户采光极好,配置简单的洗手台,一份绿植点缀就能点亮整个空间。将马桶与淋浴区合二为一,增强了卫生间的实用功能。
▲餐厅负一层冥想空间
负一层冥想空间是一个更为私密更独特的空间,远离凡尘,谢绝繁华,回归简朴。新中式实木架既起到了微隔断作用,又满足了整个空间的光线充足与流通性,灯饰极力做到精简,还能丰富空间的层次,以圆形水墨画、鸟笼、字画装饰,更提升了空间的高雅气韵,体现清、幽、明、净的格调内涵。在这里品茶、看书、畅聊,修养身心,享受禅意人生。
设计从不是整齐划一,风格可以自由组合,只要注重每一个细节,做到和谐统一,亦可带来更佳的生活享受。倾注所有的爱和热情,让房子焕发新的魅力,然后交给它真正的主人。
这,就是设计真正的意义吧!
· END
客服
消息
收藏
下载
最近

















