查看完整案例


收藏

下载
设计公司 | Design Company : Pro.S布舍设计
创意总监 |
Design Director :
黄梓铖Henry Wong设计总监
Design Director :金涛
主案设计丨Master case design :曾曼伊
参与设计 | Involved in the design :刘焰强、刘振鹏
项目类型 | Project Type :餐饮娱乐
项目地址丨Project address :中国 广州
项目面积 | Project Area :100
主要材质 | Main Material :护墙板、木饰面、艺术漆、木纹铝格栅、黑色不锈钢
VI概念
VI concept
会意。从爪、从见。觅。
一水一莲花
莲+觅+禅
VI标识
VI concept
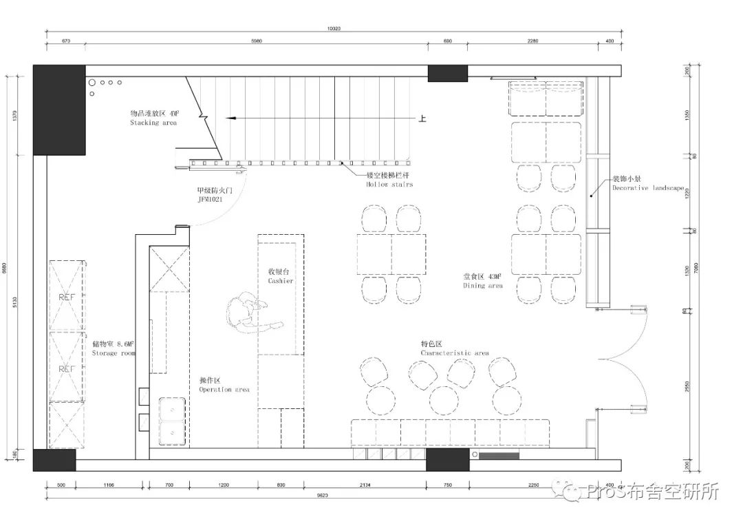
平面布置图
Layout plan
设计说明:把一件容易的事情,用多种方式去思考,在简单里也能找到极致与变易,用一个有限的空间,去容纳简单的身躯复杂的情绪,并让空间在情绪互动中产生特殊的意义。
1总览Overview
外立面
Facade
堂食区
Dinning area
灰色地砖降低了整个空间的饱和度,多了份空间质感。木纹铝管做隔断装饰,用现代的手法把大自然的形态在空间体现,在分割空间的同时也装饰和提升了整体空间气质。
水吧台的台面与客区护墙板保持一致,以便于在遵守以其他商店概念相同的同时,保持顾客与员工之间的水平视线的一致,并且同时融合新中式文化。
布舍室内设计近期荣誉:2019年度新锐设计师
2019年红棉中国设计奖商业空间奖
2019年中国装饰设计(CBDA)设计奖
2019年APDC亚太设计师大赛至尊奖
2019年第四届“戛迪奖”空间艺术设计邀请赛(商业空间类)
客服
消息
收藏
下载
最近




















