查看完整案例


收藏

下载
少即是多,趋于本质美,给予更多心灵上的守护。风格没有定位,设计呈现品质,在宽处现力量,在细微处见温和。
FOREWORD 前言
家的样子,是主人品位和生活的展现。这次给大家分享的是一套 160m²的四居室。主人是一对事业稳定的夫妻,有两个儿子,简单、舒适和温馨就是他们最大的心愿!
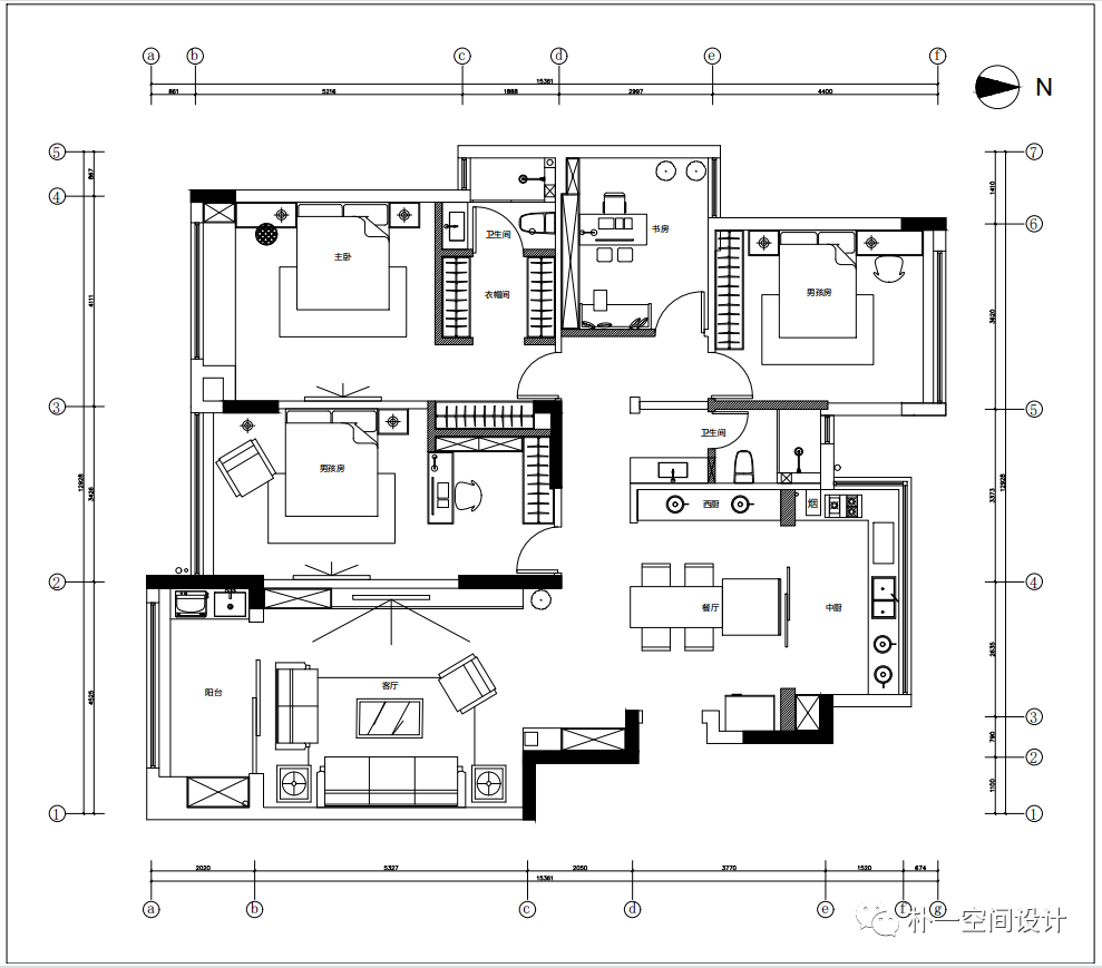
原始户型:
原始户型缺陷:
❎入户门正对厨房
❎餐厅与厨房都比较小
❎过道正对书房
❎主卧衣帽间虽然独立但储物能力并不足
❎客卫没有干湿分离,不便于充分利用
电视背景与沙发背景不对称
摈弃空间原始户型的不合理,设计师做了更适合一家四口生活空间的方案
优化方案:
✅厨房改到原始北阳台 ,餐厅隔断与厨房移门的重叠关系运用从而形成回游动线。
✅扩大餐厅,扩大厨房,延伸厨房操作区域,丰富厨房功能。
✅过道正对的书房门调整。
主卧衣帽间改造成步入式衣帽间,空间更大储物能力更强。
南次卧单独把学期区独立,学习氛围更强。
客卫干湿分离,实用性更强。
造型上把沙发电视墙划分对称关系,视觉感受更舒服。
设计的概念是不断迭代的,设计的本质没有变,依然是优化改造居住者的生活方式及状态。
LIVING ROOM 客厅
顶面 50 度倾斜角度收口,处理掉中央空调切面深度问题。电视背景造型与顶面形成呼应关系,沙发背景的拉槽与上方氛围灯带结合电视背景的灯带呼应,把大空间层高不足的劣势抽离出来,更显大方,从容。
室内空间里多以纵向纹理的排列在一定程度上拉高了视觉体验,而在天花加上隐藏横梁的纵排列存在,便能协调长与宽的不协调。
ENTRYWAY●玄关
玄关的造型设计自然而然地把客厅围合成独立空间,同时解决了电视背景与沙发背景不对称的关系。
MASTEBEDROOM 主卧
主卧秉持柔和的风格,简朴质雅,做到了基本功能的视觉美感。竖格栅使空间更高更透气。一字形妆台兼顾床头柜,背后打底的材质抽缝木质竖纹与顶面材质一体,使这个空间具有柔和极简的感觉。
BIG BOYROOM
大儿房
11 岁男孩的梦想之屋
叛逆期的年龄更需要一个柔和的氛围,脱离固有的儿童房的色系。背景格栅与软包床头充满线条感同时,带有柔和的材质与色彩,该空间散发着宁静的高级感。独立的学习区域,更能培养男孩独立自主的能力。
BOYROOM
小儿房
小儿子的小空间
4 岁年龄更需要一个性格塑造空间
扩充窗户面积增加大面积自然光入室
弧形书架和柔软圆滑的座椅
保护安全的同时,丰富趣味
LIVING ROOM 书房
拥有的色彩非常少,却依然不影响它是一个有趣而高级的空间。在白色、布纹原木色、黑色的基调下,空间的家具更有力量感。MASTEBEDROOM 卫生间
丰富的灯光造型,房间的中庭会夺人眼球。书房与镜面之间的造型比原墙更加艺术通透。
Introduction
项目简介
项目名称/伊顿·庄园 Prejectname/yidun·zhuangyuan
项目面积/160㎡ Preject area/160
设计师/张乐 Designer/Zhangle
参与设计/刘静静 Designer: JingJing Liu
材料/钢板/木质墙板 Mainmateriais/Wteel plate/ Wooden wallboard
●推荐阅读
关于朴一空间设计
About poyides giner
真正好的设计师一方面应该具有建筑的修养,对空间的领悟和掌握能力,另一方面应该有软装陈设所呈现的品味与美学感知力,同时还要有对产品的把控力。为了真正的设计,我们需对业主生活方式深入体察,感受他的生活个性,理解他的审美意识,忠于他的情怀。我们所希望追求的不是高歌猛进,而是希望一点点的积累和沉淀,润物细无声的改变和优化新时代年轻人的生活方式及状态,更深层次的对“家”的理解,保守本真,怀抱纯朴,不萦于物欲。在身心安静的情况下,把设计放到第一位。我们塑造的不仅仅是 HOUSE,更应该是 HOME,它承载着家人共同的记忆美好的时光。
所获荣誉奖项:
2019-2020 40 UNDER 40 中国(安徽)设计杰出青年
2019-2020 40 UNDER 40 中国(阜阳)设计杰出青年
2020 红棉中国设计奖
项目咨询/平台约稿:add/安徽亳州雍景和府别墅区 B7-101。END
客服
消息
收藏
下载
最近




















