查看完整案例


收藏

下载
设计鉴赏
项目介绍
【项目地址】: 内江邦泰铂仕【项目面积】: 室内132㎡+花园68㎡【硬装设计】: 十亩设计【软装设计】: 十亩设计【空间氛围】: 现代【主案设计】: 贾勤【景观设计】:设计部【服务方式】: 全案设计-=平面图=-
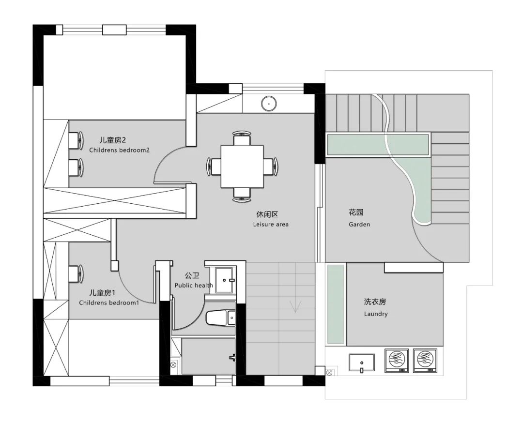
▲一层
二层
▲三层=设计说明=-用设计开启另外一种生活方式,通过空间的营造,让时光慢下来,让情绪放松下来,让生活在这个空间的每个人,都知道自己很重要,让他们在家就能进行能量的交换。人与生活是家居空间的重要元素,回归居住者的需求和使用习惯,采光、功能、舒适、品质,提炼生活的更多可能。
✄ 结构改造○ 打开次卧与客厅的隔墙让客餐厅区域更开阔,同时也可以满足小朋友玩耍和业主的健身功能。○ 电视墙和酒柜进行整体处理,满足储物的同时也让空间更整洁。二楼休闲区靠窗增加带水池的小吧台,让二楼休闲的功能更完善。
✄ 风格设计客厅以灰色调作为打底,褪去浮华的装饰,构成一个平静和谐的画面,透过线与面的结构关系,塑造纯粹的品味空间。○设计贴近现代生活,空间贴近自然,在材质和用色上形成相辅相成的互补关系,大气朗阔,散发出平稳又均衡的内涵气质,让设计蜕变为生活艺术。○设计最大的意义,是兼顾功能与审美,居住功能的延展与优化也在这里体现。保持流动、舒适的空间关系。自在慢调,蔓延出契合的舒适温度,享受生活的美好。花园:融合中式的的意境用现代的设计手法,表达山外来水,诗情画意的生活享受。
=效果图=-
这是十亩设计效果图集第50期 ~
=SHOWMETEAM=-
Awards荣誉
2017年第五届日立中央空调Hi-Design室内设计大赛“优秀奖”2018年中国(四川)首届鲲鹏奖大赛公寓类组“优秀公寓设计奖”2018年十间坊中国实战设计大赛“全国入围奖”2018年十间坊实战赛事创意空间手作西南赛区“第一名”2018年中国人文设计大赛入围奖2019年鲲鹏奖第二届中国室内装饰设计大赛公寓类组“银鲲鹏奖”2019年鲲鹏奖第二届中国室内装饰设计大赛“中国百强设计师
2019-2020年度40 UNDER 40中国(四川内江)设计杰出青年
2019华鼎奖金奖
2019十间坊实战赛中国城市优胜奖
2019金住奖-2019中国(内江)十大居住空间设计师
2020十间坊中国实战设计大赛“中国城市优胜奖”2020金住奖-2020中国(内江)十大居住空间设计师
十分,是一种精益求精的态度。
半亩,是一方自在逍遥的天地。
以十分之态度,耕耘半亩之天地。
开成花,结成果,酿成酒,便是你想要的绚烂生活。
客服
消息
收藏
下载
最近



























