查看完整案例


收藏

下载
创意总监 / 兰柳
Creative Designer / Lan Liu
主案设计/赵小春
Principal Designer / Zhao Xiao chun
参与设计/设计部盘茹杰
Designer / Ding Hai xin, Pan Ru jie
景观设计/赵小春
Landscape designer/ Zhao Xiaochun
项目地址/内江-四季康城
Location / Nei Jiang
项目面积/ 543m
Area / 543m
-=平面图=-
左右滑动查看更多
▲负一楼、花园、负二楼 原始结构图 & 平面布局规划图
左右滑动查看更多
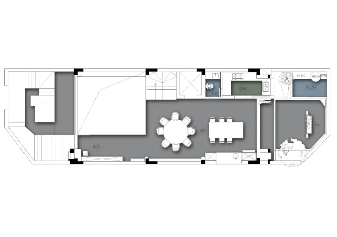
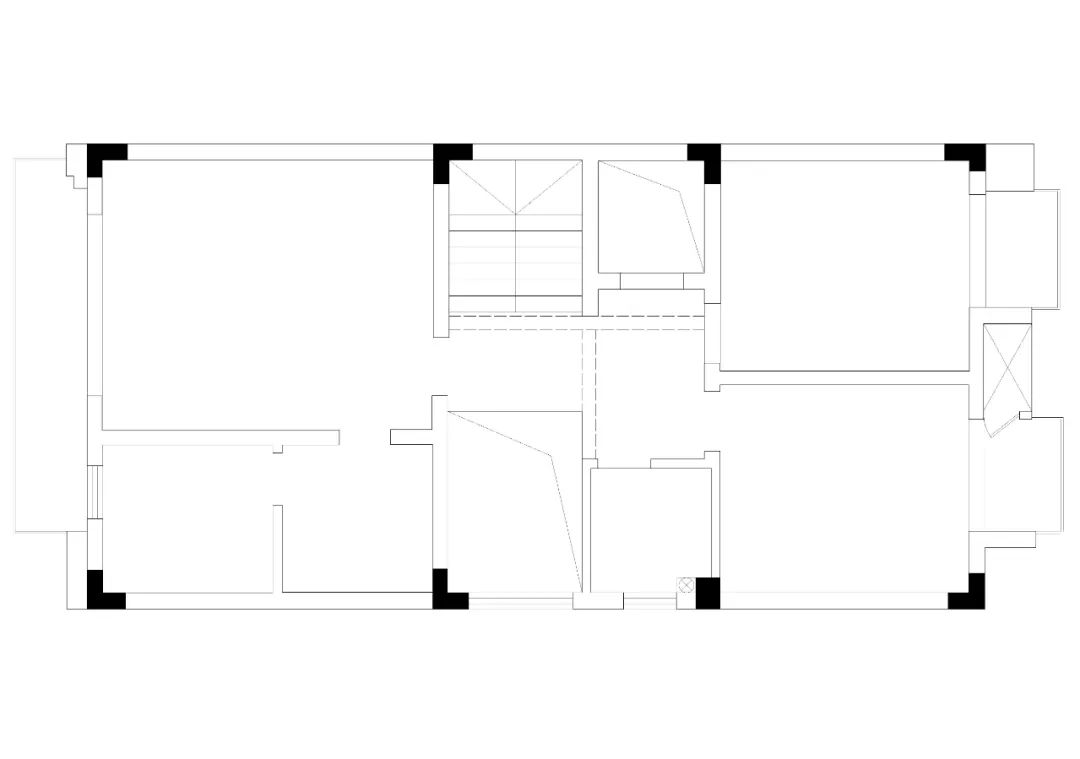
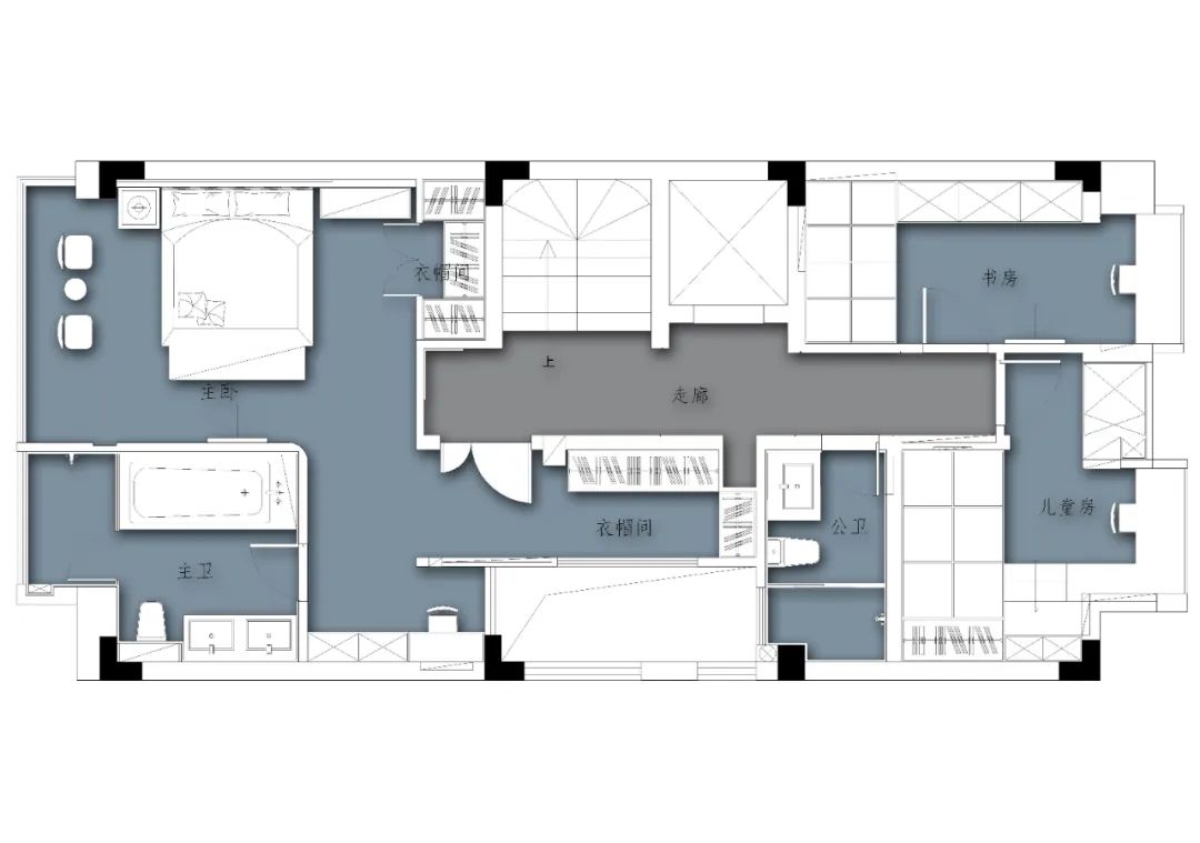
▲一楼、二楼、三楼 原始结构图 &平面布局规划图
左右滑动更多查看
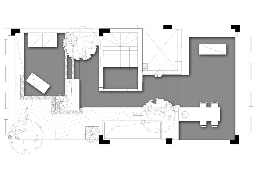
▲四楼花园原始结构图 &平面布局规划图
Appearance外观
「Lower ground floor garden
负一楼花园
「Lower ground floor
Living room
负一楼客厅
将一楼入户花园下挖到负一楼,负一楼原本的封闭的墙体敲开,花园的景色印入室内;再将负一楼和一楼之间楼板打开,让原本再一楼的客厅下沉到负一楼,一楼的光通过打开的楼板又悄无声息的进入到了负一楼。
「Lower ground floor
负一楼茶室
Second basement floor corridor
负二楼过道
「Second basementfloorcinema
负二楼影院
「First floorRestaurant
一楼餐厅
Second floor corridor
二楼过道
楼上三层通过顶楼花园将屋顶开天窗,做水池,将自然光连同水的波光引入到一楼,光从天倾斜而下,经过了三楼卧室,二楼卧室,直入餐区,如梦似幻。
Secondfloorparents’ room1
二楼父母房1
Second floor parents’ room2
二楼父母房2
Secondfloorchildren’s room
二楼儿童房
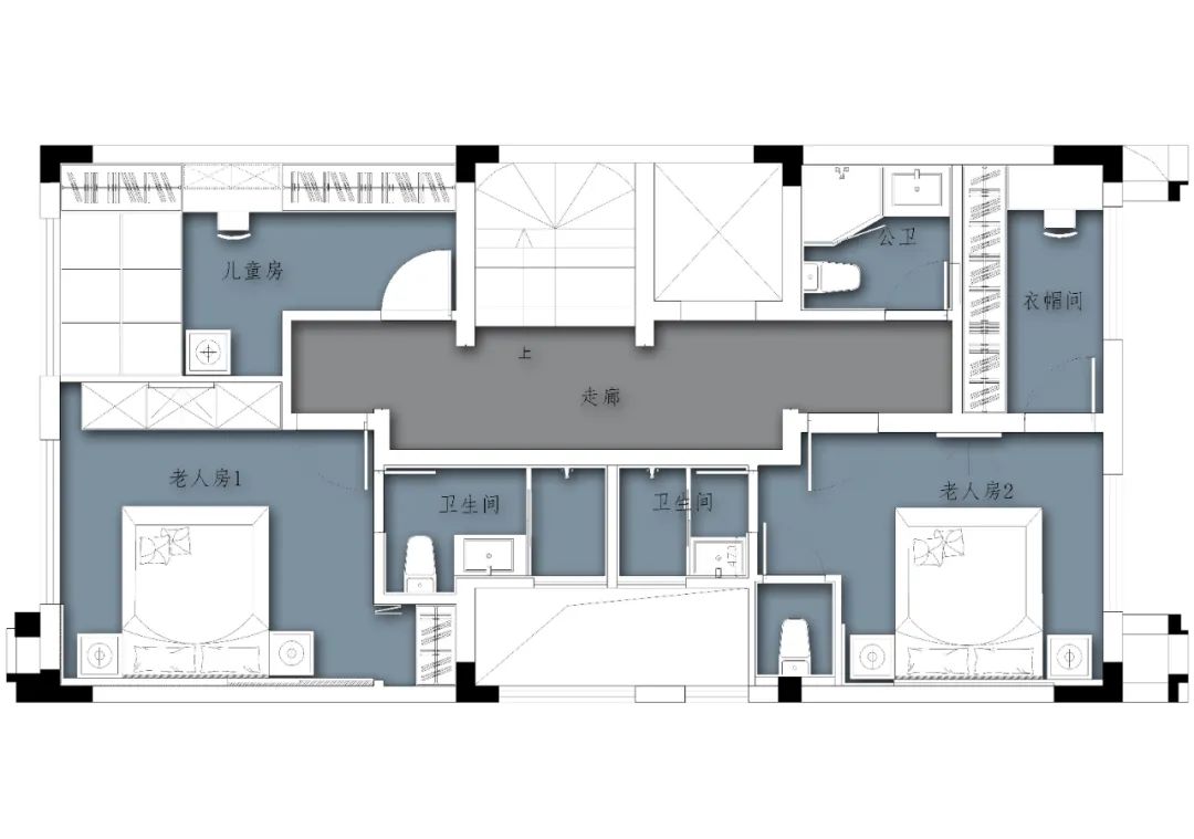
Third floor corridor
三楼过道
Third floor master bedroom
三楼主卧
Third floor master bathroom
三楼主卫生间
Third-floor study room
三楼书房
Thirdfloorchildren’s room1
三楼儿童房1
「Garden花园
我们希望的是空间内外能有更好的连接,每层空间之间也能发生相应的关系,而不是孤立的。通过开凿,借光的手法,让空间的空气是流动的,景观是互动的。在室内的每个角落能感受到四季的变换,感受云卷云舒,枝叶的萌发与凋零。
这是十亩设计效果图集第53期 ~
=SHOWMETEAM=-
Awards荣誉
2017年第五届日立中央空调Hi-Design室内设计大赛“优秀奖”2018年中国(四川)首届鲲鹏奖大赛公寓类组“优秀公寓设计奖”2018年十间坊中国实战设计大赛“全国入围奖”2018年十间坊实战赛事创意空间手作西南赛区“第一名”2018年中国人文设计大赛入围奖2019年鲲鹏奖第二届中国室内装饰设计大赛公寓类组“银鲲鹏奖”2019年鲲鹏奖第二届中国室内装饰设计大赛“中国百强设计师
2019-2020年度40 UNDER 40中国(四川内江)设计杰出青年
2019华鼎奖金奖
2019十间坊实战赛中国城市优胜奖
2019金住奖-2019中国(内江)十大居住空间设计师
2020十间坊中国实战设计大赛“中国城市优胜奖”2020金住奖-2020中国(内江)十大居住空间设计师
2020幸福家年度公益设计师
2020十间坊全国中国城市优胜奖
十分,是一种精益求精的态度。
半亩,是一方自在逍遥的天地。
以十分之态度,耕耘半亩之天地。
开成花,结成果,酿成酒,便是你想要的绚烂生活。
客服
消息
收藏
下载
最近



































































