查看完整案例


收藏

下载
设计鉴赏
项目介绍
【项目地址】: 内江锦巷府【项目面积】: 150㎡【硬装设计】: 十亩设计【软装设计】: 十亩设计【空间氛围】: 现代【主案设计】:设计部【服务方式】: 全案设计-=平面图=-
▲原始结构图
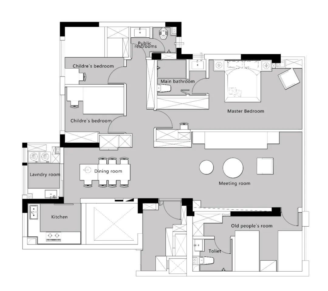
▲平面布局图=设计说明=-房子是个大平层,满足一家三代人的居住要求,设计的关键词在灰色调,简洁大方,细节之处彰显宜居感,喜欢现代风简洁素净的感觉,整体色调明亮。✄ 结构改造○我们思考了空间的功能性,把空间进行拆分、重组,在重组的空间中尽量突出自然光线,就整体而言,内部显得平静而明亮。充分使用入户充当小型储物间,节约空间,便于日常出行。○ 父母房与其他房间单独分隔区域,保证隐私的同时,也有一个更加安静舒适的空间。○ 在原始结构上扩充客厅面积,打造一家人的生活核心区,满足屋主一家日常亲子活动。○ 在过道区域留出收纳柜,满足就近收纳,用作日常物品收纳。✄ 风格设计整体以简约自然的灰色为主,搭配暖白,再加干净明亮的大理石,点缀绿色植物,彩色软装,以及趣味性黄铜墙饰,演绎了简约清新自然的现代自然风格。○灰色调与温暖的光线,以及穿插的绿色让整个空间显得雅致又清新自然,满足屋主想要简约的大空间,有组织的存储,天然石材,趣味性的装饰,黄铜元素点缀,简约有质感。主卧室整体透露出干净休闲的气息,以浅灰色为主调,用不同材料变化颜色明度,搭配墙角洒下的暖光,又穿插黄铜,玻璃等材质,在休闲中又带有一丝丝精致。=效果图=-
这是十亩设计效果图集第39期 ~
Awards荣誉
2017年第五届日立中央空调Hi-Design室内设计大赛“优秀奖”2018年中国(四川)首届鲲鹏奖大赛公寓类组“优秀公寓设计奖”2018年十间坊2018中国实战设计大赛“全国入围奖”2018年十间坊实战赛事2018年创意空间手作西南赛区“第一名”2018年中国人文设计大赛入围奖2019年鲲鹏奖第二届中国室内装饰设计大赛公寓类组“银鲲鹏奖”2019年鲲鹏奖第二届中国室内装饰设计大赛“中国百强设计师
2019-2020年度40 UNDER 40中国(四川内江)设计杰出青年
2019华鼎奖金奖
2019十间坊实战赛中国城市优胜奖
2019金住奖-2019中国(内江)十大居住空间设计师
十分,是一种精益求精的态度。
半亩,是一方自在逍遥的天地。
以十分之态度,耕耘半亩之天地。
开成花,结成果,酿成酒,便是你想要的绚烂生活。
扫
十亩设计官方客服微
客服
消息
收藏
下载
最近


















