查看完整案例


收藏

下载
专注年轻群体设计
The Best Design Works For 80s & 90s
2018年夏天第一次遇到屋主晴天,当时还在我们之前的写字楼办公室。这篇案例对我们来说也很有意义,设计完成于2018年,搁置了一年多动工装修,之后我们携手走过了近2年的时间,并且建立了深厚的革命友谊,由始至终晴天都表示了对我们完全的认可支持并坚定的相信我们,也郑重的把关于家的梦想托付给我们。对家有强烈的归属感,享受家庭生活,把热爱的一切变成现实,呈现出不高调的浪漫,不奢华的华丽,不做作的优雅。可容纳200双+的大鞋柜、明亮开阔的厨房、独立的衣帽间、变化无尽的花园、主卧也尽可能的保留原始层高,闲适与温馨优雅也融入日常生活。2020年我们呈现了美美的毕业照~
【项目地址】: 内江邦泰社区【项目名称】: 多一点浪漫【室内面积】: 188㎡【项目花费】: 基装18.5万+主材55万+软装10万+家电7万【硬装设计】: 十亩设计【软装设计】: 十亩设计【服务方式】: 全案设计+施工落地【项目摄影】: 筑像摄影【品牌支持】:日立 (中央空调 新风系统 地暖,必美地板,芒果瓷砖,柔然壁纸,TOTO卫浴,尚品宅配,李余定制,万峰石材,西顿照明,GECHI格尺系统门窗,老板厨电,云米净水,家具-优梵艺术家具,皇氏工匠美缝剂,软装由十亩设计软装部提供
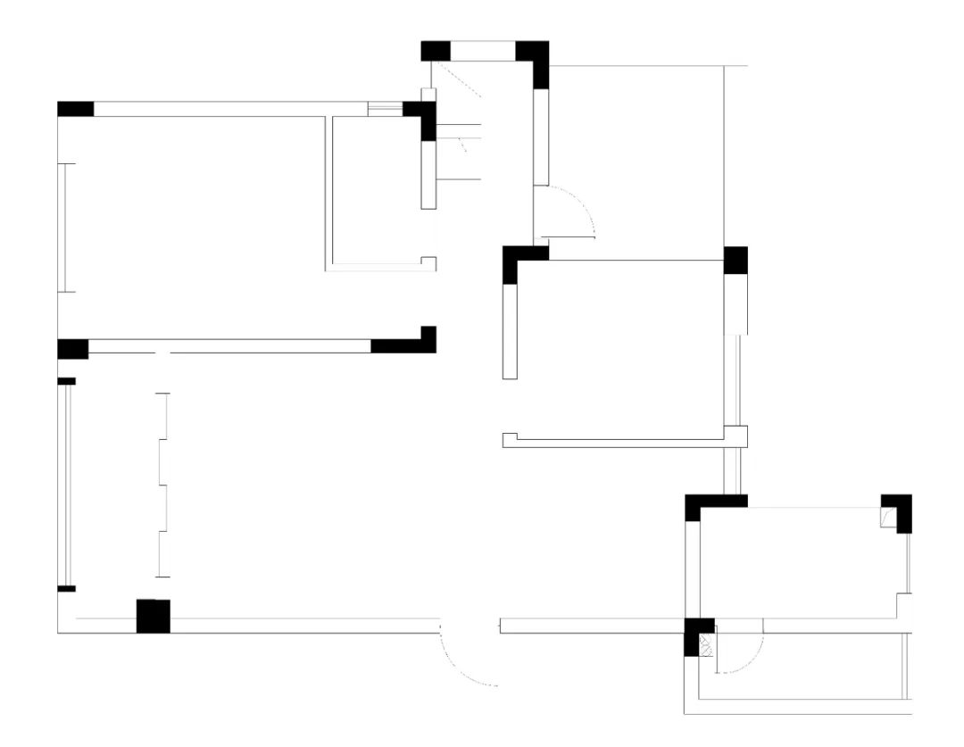
房型图Apartment layout
▲原始结构图
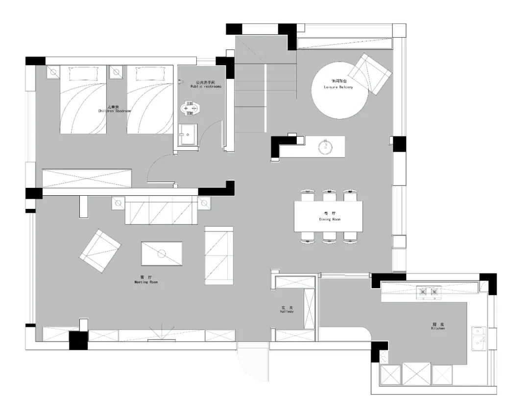
平面布局图
入户 Entrance
客厅 Meeting room
餐厅 Dining room
阅读区 Reading area
厨房 Kitchen
儿童房 Children’s room
卫生间 Bathroom
楼梯Stairs
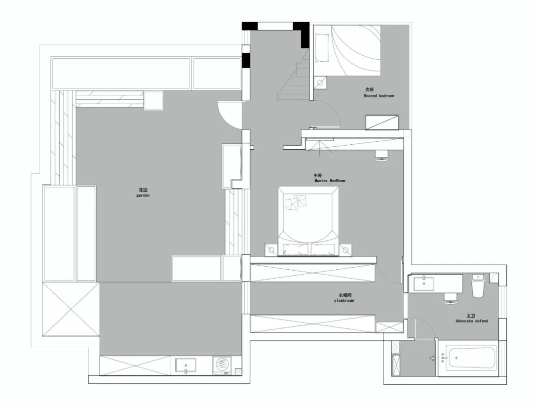
次卧Second bedroom
主卧室 Master bedroom
衣帽间 Cloakroom
主卫 Main defense
花园Garden
▲花园图片via 屋主--晴天
十分,是一种精益求精的态度。
半亩,是一方自在逍遥的天地。
以十分之态度,耕耘半亩之天地。
开成花,结成果,酿成酒,便是你想要的绚烂生活。
• END •
Awards荣誉
2017年第五届日立中央空调Hi-Design室内设计大赛“优秀奖”2018年中国(四川)首届鲲鹏奖大赛公寓类组“优秀公寓设计奖”2018年十间坊2018中国实战设计大赛“全国入围奖”2018年十间坊实战赛事2018年创意空间手作西南赛区“第一名”2018年中国人文设计大赛入围奖2019年鲲鹏奖第二届中国室内装饰设计大赛公寓类组“银鲲鹏奖”2019年鲲鹏奖第二届中国室内装饰设计大赛“中国百强设计师
2019-2020年度40 UNDER 40中国(四川内江)设计杰出青年
2019华鼎奖金奖
2019十间坊实战赛中国城市优胜奖
2019金住奖-2019中国(内江)十大居住空间设计师
客服
消息
收藏
下载
最近

























































