查看完整案例


收藏

下载
设计鉴赏
项目介绍
【项目地址】: 邦泰天誉【项目面积】: 103【硬装设计】: 十亩设计【软装设计】: 十亩设计【空间氛围】: 庄重 ∣ 典雅【主案设计】: 兰柳【执行设计】: 王昕【服务方式】: 全案设计-=平面设计图=-
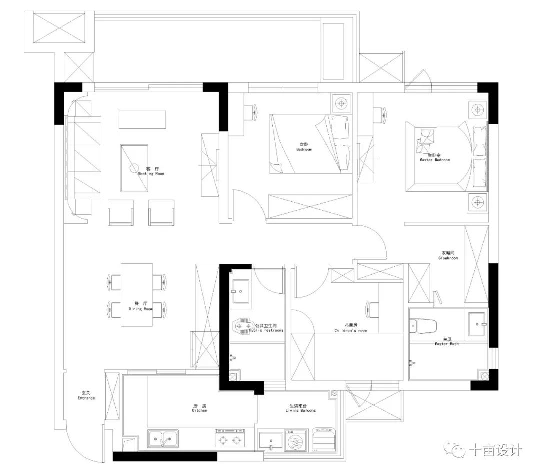
原始结构图
平面布局图左右滑动更多查看=设计说明=-心中若有山水在,处处皆是水云间。现代中式是传统中国文化结合现代人居生活的产物,即有传统文化的内涵和韵味,也有现代生活的舒适和品位。✄ 结构改造原始结构的厨房太小,鞋柜对于一个四口之家来说也不能够满足正常使用,所以将厨房往餐厅方向进了扩宽,既能扩宽厨房又能使鞋柜的储物空间满足使用。使用一面墙将主卧分割成两个部分,仪式感与实用进行了平衡,使动线更加清晰。✄ 风格设计客厅电视墙,蕴含着对现代生活的思考电视不应该是客厅的视觉中心,它是附属品而不是必需品。客厅最重要的功能是会客而不是看电视,所以将沙发背景作为了整体空间点缀,一块石材坐落在沙发背后,看山似山看水即是水。客餐厅使用了大面积木饰面,也在体现东方文化的中庸之道,使用少量的中式符号,因心造境,诠释禅心。-=效果图=-
这是十亩设计效果图集第26期 ~
往期作品
Awards荣誉
2017年第五届日立中央空调Hi-Design室内设计大赛“优秀奖”2018年中国(四川)首届鲲鹏奖大赛公寓类组“优秀公寓设计奖”2018年十间坊2018中国实战设计大赛“全国入围奖”2018年十间坊实战赛事2018年创意空间手作西南赛区“第一名”2018年中国人文设计大赛入围奖2019年鲲鹏奖第二届中国室内装饰设计大赛公寓类组“银鲲鹏奖”2019年鲲鹏奖第二届中国室内装饰设计大赛“中国百强设计师
2019-2020年度40 UNDER 40中国(四川内江)设计杰出青年
2019华鼎奖金奖
2019十间坊实战赛中国城市优胜奖
2019金住奖-2019中国(内江)十大居住空间设计师
十分,是一种精益求精的态度。
半亩,是一方自在逍遥的天地。
以十分之态度,耕耘半亩之天地。
开成花,结成果,酿成酒,便是你想要的绚烂生活。
扫
十亩设计官方客服微
客服
消息
收藏
下载
最近











