查看完整案例


收藏

下载
2018.5月/与业主初次见面一家人入住这里已有十几年了,当时觉得该户型很实用,满足一家三口三个房间的需求。孩子小的时候,女主人经常坐在餐厅工作抬头观望孩子在房间里的一举一动,玩耍、偷看电视或是打游戏......男主人下班后回到家晚饭时间聊起来时,母亲对儿子的举动了如指掌让儿子感到惊讶,后来才得知是因为餐厅正好斜对着儿子房门,母亲是通过尚未关闭的房门观察到孩子在房内的一切。如今孩子成年了,需要独立私密的空间。这一家三口美好的时光印记,我们要把它保留以及延伸到空间里,这是我们的工作意义也是对本案一次深入的思考点。所以我们更加坚定自己的方案——使客厅电视墙和走廊过道无缝连接起来,在术语上是叫水平和垂直的交汇,同时正好也处于这套房子中心位置,起到聚焦的视觉效果。
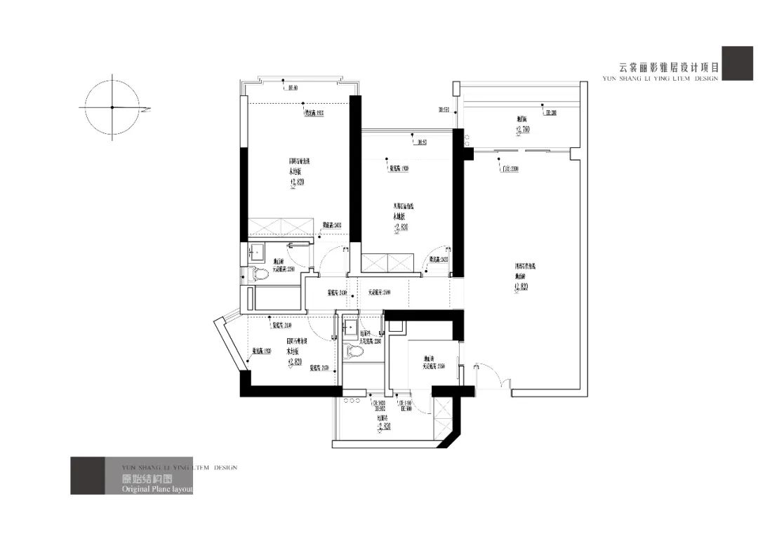
设计理念丨本案110㎡的三口之家,原本三房改造为二房,让主人房和儿子房空间利用率倍增,功能更加丰富
①生活阳台空间减半,增大厨房区域;
②儿子房将原本右卧室门改造成左卧室门,客厅电视墙与走廊过道无缝连接,保证了孩子生活隐私和视觉平衡;
③将观景阳台的推拉门去掉,替换成小围栏,阔然了整个客厅空间感。麻雀虽小,五脏俱全,而且还拥有一颗“大心脏”玲珑精美,我们对动线、收纳、采光、功能划分作出优化调整,用设计让老旧房打造中式人居静雅生活,增进家人间情感互动又各自拥有私密独处空间。
Δ 设计师前期构思理念
无论从过往还是现在,孩子成长的点点滴滴都被父母时刻惦记着,这份家的温情从未改变。生活中很多东西都是被时代赋予的,五六十年代的中国满堂子孙,八十年代后都是独生子女......
三房变二房/刚需变改善/物质变精神/从泥土到器皿每一件收藏品都有一个背后的故事。
客 厅LIVING ROOM
▲左右滑动查看 左为改造后vs右为改造前
在古朴隽雅的中式陈设中,充分强调细节质感,摒弃常规玄关布设,入门即可观清朗雅隽的客厅。大面积木饰面与清简的线条以现代设计手法创造出空间方正的布局,低调中大方疏阔的气度,清透中有稚拙温润的触感。
流光暗藏的柜体,华韵内敛的电视柜,原木质感让人有种回归自然的感觉;酒水柜以玉石拼接,工艺复杂,干净清透的石材营造出自然澄境,与木质的搭配间有着最契合的交点,空间内的陈设物件在光影藏纳间,交织出自然的诗意与中式的风雅。
将古时文士喜爱的雅兴摆设物件纳入生活场域中,一方木桌,围坐其间,烹茶细抿,其中闲趣想必不言而喻。
▲左右滑动查看 左为改造后vs右为改造前
源于空间的巧妙布局,客厅电视墙与过道灵动相连。过道的收纳性扩大,保持了空间简练洁净的质感,恰到好处的柔光筒灯为照明带来了层次,也暖和了清冽的空间气质。
换掉观景阳台的推拉门,让小围栏稍作客厅与阳台的划分,这里成了爱宠的一方休憩天地,家人的情感交流为开阔的空间制造出动人细节。
主卧MASTER ROOM
▲左右滑动查看 左为改造后vs右为改造前
这里是主卧也包揽了阅读区、工作区、茶室,衣帽间,以素雅简净的居住格调舒缓疲惫于都市节奏的身心。
茶至无味仍余香,人若无妄心自清。卧室靠窗的茶室区域,品茶,乃至品人生,是空满的禅理,生活的诗意万象浮现于点滴日常。
卫 生 间
BATHROOM
▲左右滑动查看 左为改造后vs右为改造前
弱化空间体块、界面,选用温润色调和材质,去繁存简,寻其空灵,让人居于静雅与清欢之间,品味纯粹的中式雅韵。
▲效果图
项目名称 | 云裳丽影·雅居
项目地址 | 广州· 白云区
风格倾向丨新中式风格
项目面积 |
110
竣工时间 | 2019年3月
主要材料 | 艺术涂料、REX瓷砖、天然大理石维尔康定制、曲美家具、LAK实木复合地板
设计机构 | 星艺装饰 · 秩序空间
主案设计师 | 姚国健
设计师丨霍伟怡
效果图丨黄海浪
报价师丨郑桂鑫
施工图丨范雄
主摄影师 | RONG
文案编辑丨村花·美多
设计师日常跟进施工日志丨
我们除了做一些大型的私人住宅外也会尝试或挑战小户型项目。空间需要保持简洁干净,收纳性十分重要,装修过程中,电视柜和酒水柜的制作工艺复杂繁琐,尤其是酒水柜,安装前需要将玉石透光,然后无缝拼接;所有木制作作双面防潮处理,墙面刷防水,确保每道工艺都精益求精。
▲电视柜、酒柜现场制作阶段
▲水电工程阶段
▲木工天花和墙面造型阶段
▲泥水和防水阶段
▲主案设计师姚国健与摄影师拍摄过程
现任秩序空间高端设计事务所,创意总监
2018:入选设计源-世界观《2018年度精英人物》2018:入读北京清华大学美术学院第六届空间环境艺术设计高级研修班2016:被中国建筑装饰协会评为:杰出中青年室内建筑师(证书编号:ZQN16SN221)2013:获得筑巢奖一优秀奖(北京人民大会堂颁发)
.......... The End..........
秩序空间高端设计事务所
OSDkefu
商务洽谈
19928323603
|联系地址 | 广州市天河区体育东路财富广场东塔六楼
客服
消息
收藏
下载
最近













































