查看完整案例


收藏

下载
-海之印象 -以海蓝做为设计切入点,像生长在这片土地的一个全新的生命一样!
我们认为它具有静谧︱包容︱自由︱力量
QUIET ︱ TOLERANCE ︱ FREEDOM ︱ STRENGTH
「项目概况」
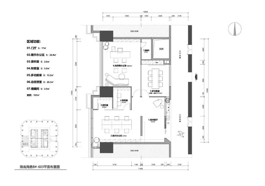
项目位于海口市,互联网金融大厦。设计使用面积105㎡(PS:建筑面积170㎡),案子本身属于比较方正的空间,处于建筑西侧方位。在满足于现有使用功能上,我们舍弃掉了一部分空间面积做了退让处理。像大海一样,表达出企业做事的一种胸怀。
1
平面规划
办公+
商务Business + Office
整个办公空间以私密+开敞形式展现出来,整个建筑空间中采光最佳位置作为员工办公区和经理办公室。动静关系上做了上下分区,客户洽谈和日常工作互不干扰,但又有紧密的互动联动关系。小空间中我们同样保留了一块中厅区域,在后期使用上有一定的弹性空间
2三维空间推演
空间+功能
Space + function
空间形成
「SKETCHUP三维空间推敲
在工作流程上我们借助SketchUp进行整个空间形态和功能上的三维推演,确保项目中没有遗漏区域。同时也帮助我们在施工落地中所有产品有一个紧密的衔接沟通,把问题放置前端统筹解决最终完美落地。
3
效果图表现
材质+光
Material + light
SKETCHUP
+3DS MAX效果图优化表现
4
实景拍摄
落地+还原
Landing + restore
FRONT OFFICE + PUBLIC AREA
前厅+公区
MANAGER’S OFFICE
经理办公室
CONFERENCE ROOM
会议室
/ 上云集出品 /
项目信息
Information
项目名称
海南海錱办公室
项目地址
中国 · 海口
空间设计
:郑州上云集设计主案设计:原小良、李新东深化设计:陈俊伟、史家伟软装设计:王亚囡施工落地:海南金石方源
完工时间
:2021.1
设计面积:105㎡
项目拍摄:明境建筑摄影
主要材料:BELINI贝里尼整木定制、水磨石砖、石纹板、订制亚克力、订制金属架
花絮
住宅︱商业·室内设计咨询与服务
地址︱ADD郑州市康平路万通街郑东商业中心B区8栋1606
客服
消息
收藏
下载
最近























