查看完整案例


收藏

下载
序
我们认为空间的情绪是随着时间的推移而不断发生着变化,项目设计初期没有被定义为纯办公空间,这样具备更多的包容性。清晨健身、白天办公、喝茶、傍晚可以独处小酌一杯,这才是空间该具备的松弛感和承载力。繁忙工作中需要有一片净土让紧绷的神经得以松弛,让疲惫的身心得以休憩。
「
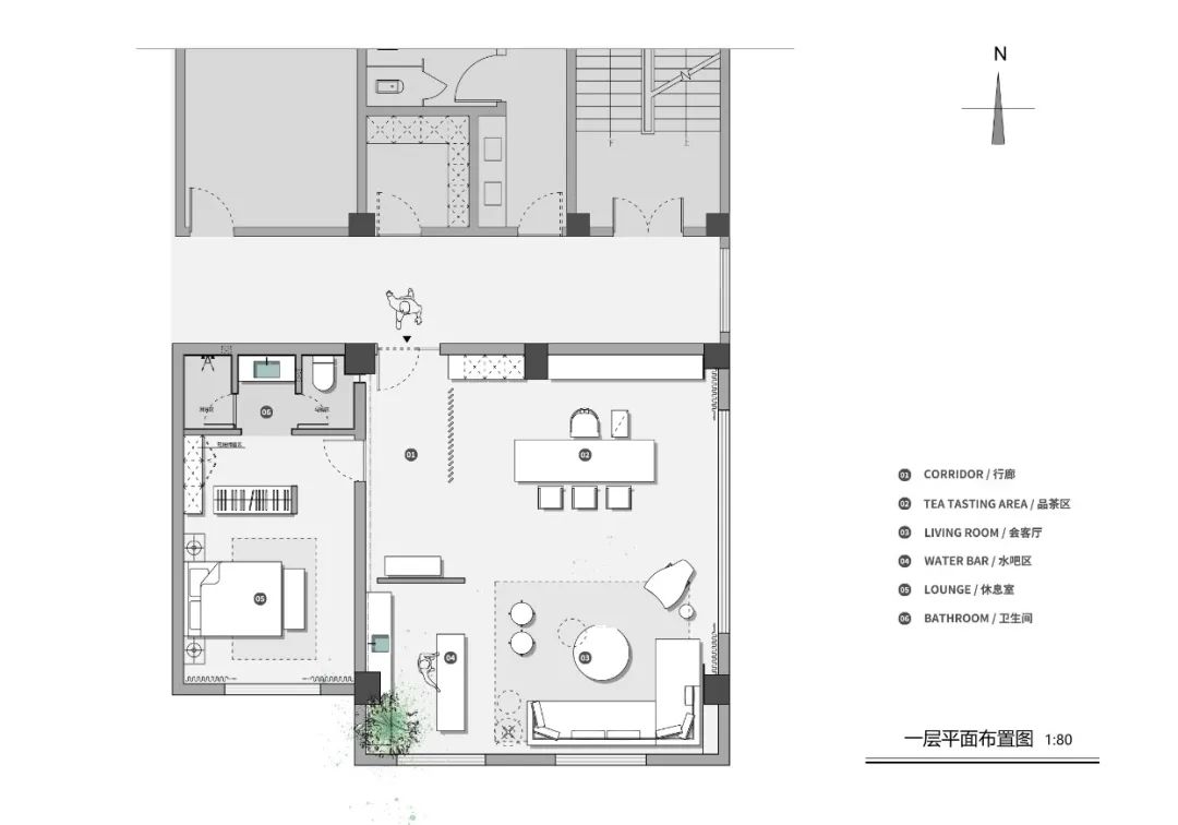
CORRIDOR/ENTRANCE
过廊/玄关
正对入口处是一面留白+原石+壁灯组合,让整个空间更加自由明亮。
整个地面采用了微水泥工艺处理,更加的自然和统一。
左侧半透格栅保留了透光性的同时和右侧木饰面形成了空间的均衡性。
(Ps:微水泥地面耐用性差些,后期养护成本
较
高
)
「TEA TASTING AREA品茶区
品茶区摒弃了多余的展示功能,墙面的留白和黑色茶桌让空间更加纯粹和松弛。建筑东侧本是一面墙体,在这里开一扇窗,让空间、自然与人共生,心境即是归处。
「
WATER BAR AREA
水吧区
水吧区功能的补充更像是快节奏工作/生活中的调味剂,跳出味觉认知的固化去感受酒与茶的味觉边界。
| 上 云 集 出 品 |
项目信息
Information
项目名称:办公项目
设计面积:100㎡
完工时间:2023.06
空间设计:郑州上云集设计
设计团队:原小良、李新东
施工落地:梁胜男、龚心缘
软装落地:上云集设计
项目拍摄:明境建筑摄影
客服
消息
收藏
下载
最近












