查看完整案例


收藏

下载
愿你路过形形色色,不忘内心纯澈。生活失意时,静品命运苦乐韵味;人生腾达时,静听生命辉煌乐章。将生活调成慢节奏,舒适又绵长。
项目名称:西山艺境
面积:460
风格:轻奢、混搭
设计师:刘航
“相互信任,彼此成就“可以用这八个字来形容业主和设计师的关系,你给我足够的信任,我给你一个温暖舒适的家。设计师说:“业主喜欢时尚的东西,乐于接受新生事物,非常感谢业主给我这样的机会,让我创造这样一个彼此满意的作品”。
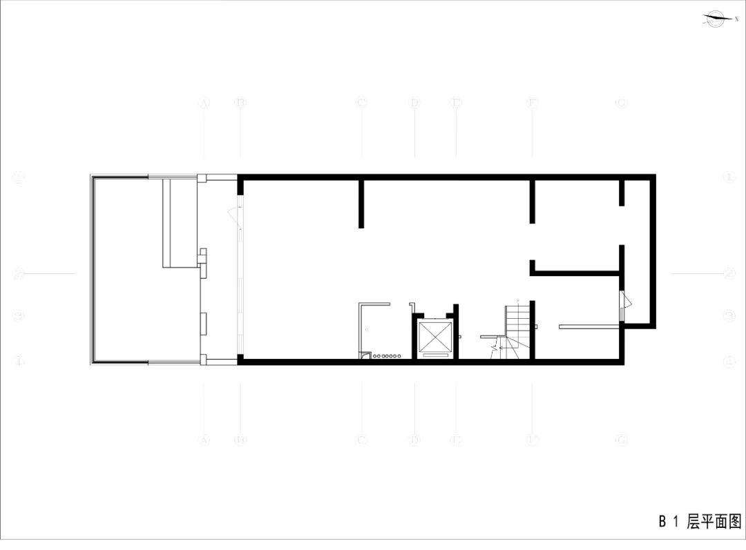
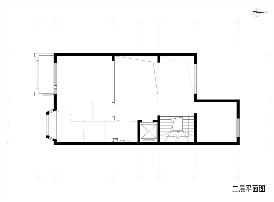
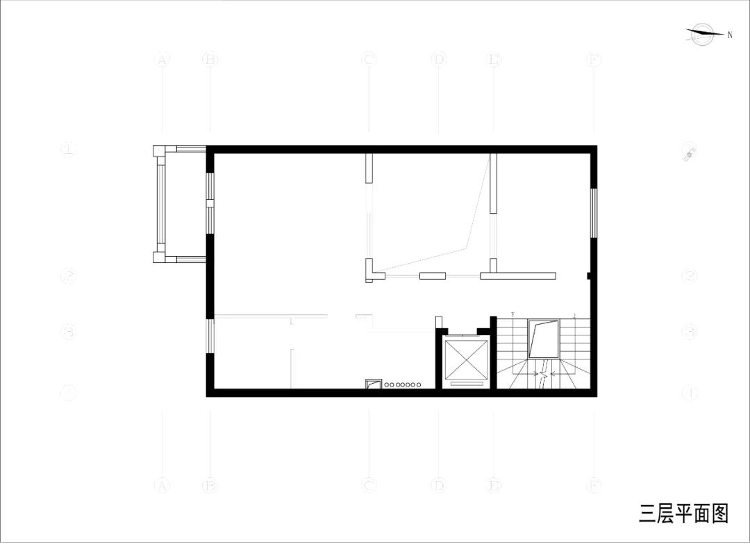
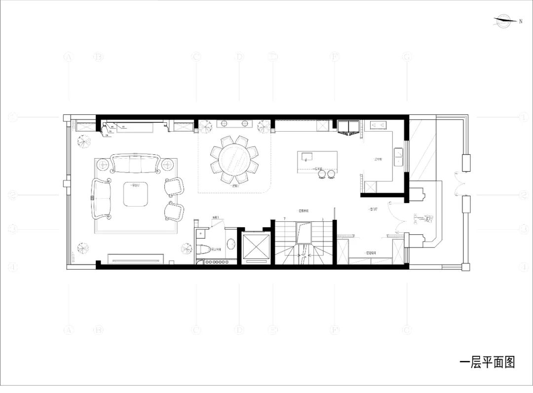
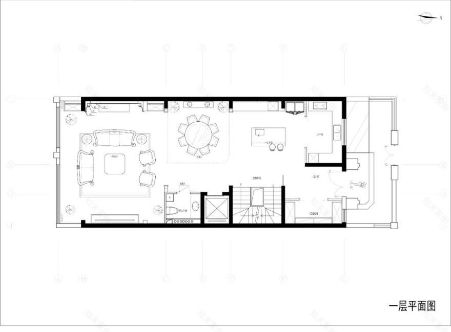
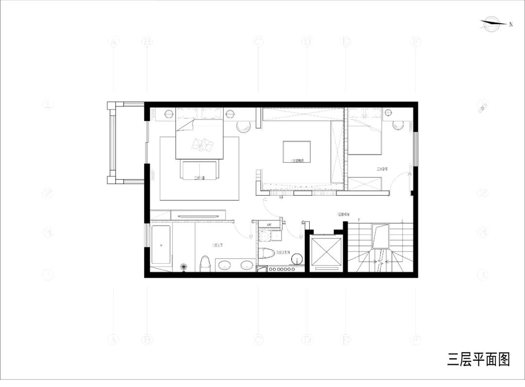
空间改造
此户型属于联排中户,原始户型面积小,祖孙三代居住,业主希望能够有足够的居住空间,设计师依据先天条件,规划出 5 间卧室,解决了采光以及通风问题,整体做出空间感。
▼原始平面图
平面布置图
<< 滑动查看下一张图片 >>
<< 滑动查看下一张图片 >>0
1Dinningroom 空间灵动
·繁花盛开
效果图
effect picture
实景图 objective picture
餐厅极高的挑高拉伸了空间的纵向视觉,设计师以奢华的水晶吊灯作为空间的中心,瀑布般的造型倾泻而下,更显流动感,为简约线条的空间增添灵动和活力。正下方搭配象征“和谐团圆”的圆形餐桌,牢牢锁定了开放式空间中的核心。自由铺陈的金色花朵,让餐厅空间洋溢着盎然春意。
02Living room
恬静优雅·更显高级
效果图
effect picture
实景图 objective picture
整个空间以融入轻奢元素的现代简约风格为出发点,从结构到家具,注重传递高级、优雅、舒适的情感,淡淡的芳香自来。沙发和柜子配色相呼应,一抹绿色点缀,低调沉稳中尽显高级。
03 Kitchen
圆弧线条·备受青睐
效果图
effect picture
实景图 objective picture
西厨采用了备受现代都市家庭青睐的橱柜+中岛搭配,完美地将料理、休闲和收纳融为一体。整洁干练的直线条,大方利落,搭配圆弧线条的座椅,整体形态上形成对比。纤巧的灯饰、椅腿、橱柜边线,在色块与线条之间形成活跃的节奏。无论是空间还是食物,最重要的是给予人从感官到心灵的沉静。
04Master bedroom
温馨宜居·诗意美梦
效果图
effect picture
实景图 objective picture
设计师为业主展开一场诗意的美梦,良好的睡眠质量离不开给人带来沉静、平和之感的空间设计。柔软丝滑的地毯、圆弧形态的床与沙发、透与不透灵活掌握的窗帘、明亮柔和的简约灯饰以及于高级灰之间绽放的明媚橙黄布艺……为主人营造了一个优雅时尚又温馨宜居的空间。
05 Vestibule
清透明亮·高端大气
效果图
effect picture
实景图 objective picture
门厅的设计别出心裁,清透而明亮的吊灯,一处小小的点缀给空间增加了生气与活力。在生活中找到温存的新意,身心最为放松的那一刻,回归真实的内在感知。
06Tea house
品茗人生·雅致无双
效果图
effect picture
实景图 objective picture
诗中有茶香,茶中有人间清欢。茶室空间是一个蕴含着东方人文精神的特别场所,体现主人对传统文化的热爱。雅致的灰调在地面微妙的光泽与精巧的墙面装饰的映衬下,平添了温暖的和煦气韵。美图赏析
设计师档案
刘航 Tellmach
钛马赫特级专家工作室设计师
毕业学院:德国斯图加特大学环境工程学院
擅长风格:欧式、新中式、美式、现代、自然主义
设计理念:设计不仅是一次艺术的自我旅行,更不仅仅是一种销售工具,设计源自对人们各种需求做出智慧的、富余创造性的有力回应,并于传统文化、社会经济、自然环境将其融为一体。
获得奖项:
2012 年北京筑巢优秀设计奖
2015 年荣获年度全国优秀设计师
2017 年度“艾舍奖”设计峰会卓越设计师人物奖
2020 年第四届创新中国空间设计艺术大赛“2020 年度中国最佳创意作品金奖”
2020 年第四届创新中国空间设计艺术大赛“2020 年度中国最佳设计作品金奖”
项目列表:《润泽御府》、《西山艺境》、《万城华府》、《西山壹号院》、《棕榈滩》、《莱蒙湖》、《北京院子》、《新世界丽樽》、《亚运新新家园》、《东方普罗旺斯》、《东山墅》、《紫玉山庄》等。
客服
消息
收藏
下载
最近







































