查看完整案例


收藏

下载
项目坐落于宾夕法尼亚Franklin & Marshall学院历史悠久的校园内,是该学院全新的冬季视觉艺术楼。建筑周围被古树环绕,这些古树的历史可以追溯到两百年前,堪称校园内最古老的元素之一。作为面向全体学生开放的全新教学楼,项目旨在通过建筑在教育与创作中激发学生们的想象力与艺术潜能。
▼项目概览
季自然与空间节卓越的生态保护性
Ecological Excellence
在整个施工过程中,现场所有的树木包括树根部分,都得到了极好的保护。保护树木的重要性在本项目中是显而易见的,由于建筑的屋顶采用了弯曲的几何形式,树木的树冠有效的保护了屋顶的水滴线。本土植物的保护,在最大程度上,减少了场地的维护工作,并有效减轻了对现有生态系统的干扰。
▼水彩手稿
▼项目保留了场地内的树木
弯曲的半透明玻璃幕墙由双层u型玻璃板系统组成,其中填充了半透明隔热材料,具有极高的保温隔热性能以及19%的透光率,为工作室提供了良好的自然采光条件。此外,室内的自然采光,通风,以及有效的供暖降温系统,使得项目荣获LEED金牌认证。
▼室内手稿分析图
▼艺术工作室水彩手稿
营造场地仪式感
Creating a Sense of Place
项目为纯艺、艺术史,以及电影系的教学楼,轻盈的建筑结构灵感源自Franklin & Marshall学院的校训“光与法”(Lux et Lex),与1856年“Old Main”原始校园建筑的厚重砖墙形成互补与鲜明对比。老主楼的轴线与新建筑的二层由一条平缓的外部坡道连接。二层入口位于底层主入口的正上方,由底层主入口可直接通向“艺术方厅”(Arts Quad).
▼老主楼的轴线与新建筑的二层由一条平缓的外部坡道连接
项目的几何建筑外观灵感源自楼旁茂盛的树木,这些树木是52英亩(约20.9万平方公里)的校园内最古老的元素之一。建筑体量轻盈,主要功能空间由二层开始,掩映在茂密的树冠中,通透的底层空间则对整个校园以及附近的布坎南公园开放。
▼项目的几何建筑外观灵感源自楼旁的树
夜晚,建筑的倒影在水池面上闪闪发光,摇曳生姿,营造出独一无二的场地氛围。
▼项目夜景
公内与外共启发教育与创作
Inspiring Space for Making and Teaching Art
冬季视觉艺术楼占地33000平方英尺(约3065平方米),是整座校园的创意生活中心。建筑内巧妙的空间设计,使艺术成为他们之间通用的语言。项目的一层设有论坛大厅以及一系列的画廊空间,这些空间均对外开放。此外,雕塑工作室也位于一层,并带有露天的雕塑庭院,这种设置,方便了大型重物的装卸。对光线要求较低的数字实验室位于地下,通过圆形的天窗进行自然采光。
▼位于底层的论坛大厅
▼位于二层的通高工作室,带有半透明的外立面与天窗
位于二层的电影院
教师工作室和艺术史研讨室位于夹层上,在这里,人们可以俯瞰整个教学空间。夹层的设置不仅充分利用了室内空间,填充了建筑的体量,而且为工作室提供了二层通高的条件。
▼由夹层看工作室
位于夹层的艺术史研讨室,带有室外露台
实践与创新相结合
Practical and Innovative
建筑的上部采用了钢制框架结构,宛如一只轻盈的“风筝盒子”,坐落在底部混凝土结构的两个楼层之上。钢制框架即经济又能搭建出精准的造型结构,赋予了建筑极具戏剧性的悬臂与流畅的几何曲线。二层工作室的墙壁内,设有纤细的桁架,支撑起屋顶上弯曲的钢管。
▼项目手工模型
整个屋顶结构暴露在外,半径统一的钢管在合适的位置弯折,创造出流畅的屋顶曲线。屋顶的内侧由三英寸宽(约7.62厘米)的冷杉木板拼接而成,这些木板包裹住弯曲的钢管结构,组成带有弧度的天花板。得益于木材良好的耐受力,它们仅被简单地固定在弯曲钢结构的表面,创造出这种柔和的弧形天花板
▼项目手工模型 – 室内
平采光与绿化
后疫情时代:通风/采光/绿化
Air/Light/Greenspace: Post Covid
设计理念,使人们在保持社交距离的同时,享受大自然带来的新鲜空气。建筑内社交与交通空间充足开敞,在不同楼层设有两个主要出入口,在需要的时候可以实现单向交通。室内所有房间均拥有良好的自然采光与通风,并设有室外露台。项目与公园般郁郁葱葱的校园环境紧密相连,可谓是一处大自然中的疗养之所。
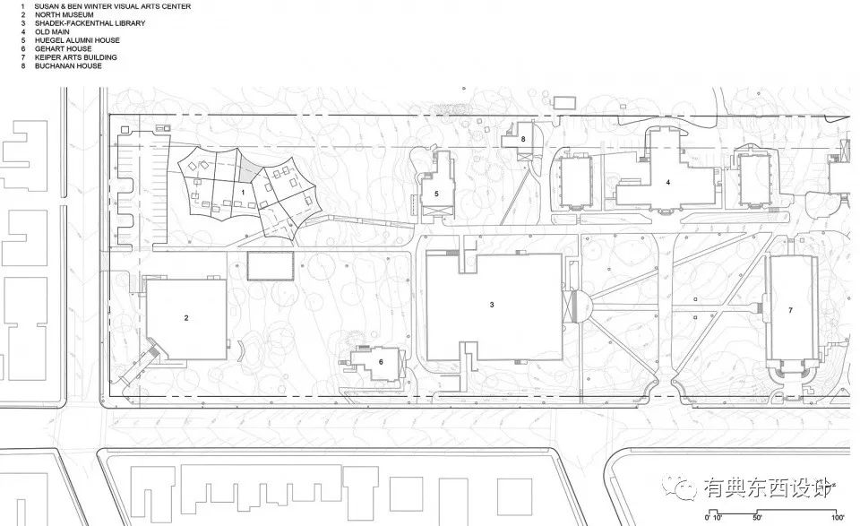
▼场地平面图
▼地下室平面图
▼底层平面图
▼二层平面图
▼夹层平面图
▼屋顶平面图
▼立面图
▼刨面图
北京有典东西装饰设计有限公司
地址:沈阳市浑南区营盘北街7-2号招商局大厦A座1815室
客服
消息
收藏
下载
最近


























