查看完整案例


收藏

下载
共赴一场自然之约
遇见别样的“家”案例基本信息
Basic case information
面积: 500
Area: 500
风格: 现代混搭
Style:Modern Mix and match
类型: 别墅
House Type:The villa
主案设计师:李毅
Principal case designer:li Yi
地址: 成都|麓湖 蓝花屿
Address:Chengdu | LUHU
本案是一套面积为 500㎡的独栋别墅,常住四口人,花甲之年的夫妻,时常团聚的儿子儿媳;生活中他们更倾向于自然舒适的居住环境。
设计手法当以表现生活本质为背景来铺开;人文记忆可以带给空间喜悦之感,表现手法的混搭使用,对比融合,更让空间赋予生活的含义;像是凝聚时间的长轴,让空间便有了记忆。
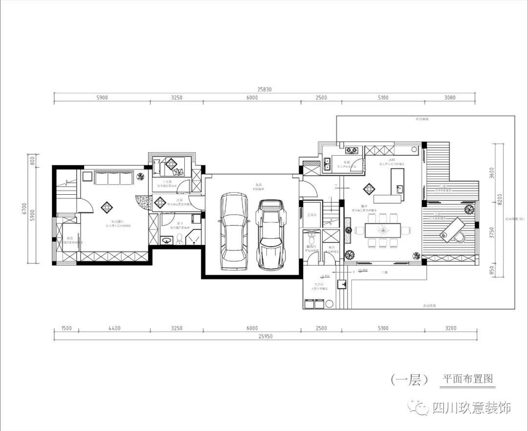
一楼平面布置图|来源:李毅设计师
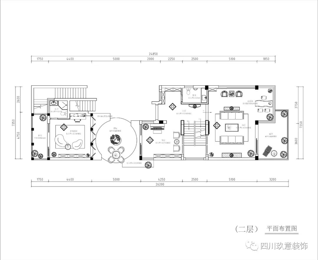
二楼平面布置图|来源:李毅设计师
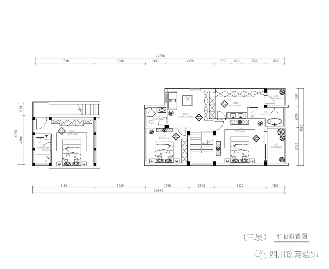
三楼平面布置图|来源:李毅设计师
院子&花园
The Yard and Garden
在白天寻一抹阳光,憩息在自然之中;在夜晚找一片深邃,悄悄与星星对话,舒适淡雅的生活!
▲别墅的庭院=plus 版的入户花园&玄关,“喝茶、赏花“满足居住者各类生活想象的居住场景,正是人与空间理想的关系。
门厅 The Lobby
在独立式住宅中,门廊是进入家门前一个小小的转换空间。雨天可以在此停留打伞、收伞,不会被淋湿;最重要的是,到这里就进入了自家的领地,安全、放松。
半开放式门廊,自成一道独特的风景,是室内外空间的延伸和交融。作为室内和户外空间的过渡空间,风尘仆仆归来后,一推开门就能觉得平静、安定、舒适的地方,就是家呀!
休闲厅
The Lounge
▲高级灰+白,给人的第一感受是内敛沉稳。质感的绒面沙发给人温馨之感。
一个展示柜,藏下成年人的诗与远方!喝茶写字,看书弹琴;简单生活,仅此而已~
客厅 Living Room
▲高级灰+白,作为客厅的颜色担当,给人的第一感受是内敛沉稳。淡雅的布艺沙发轻奢雅致。
中式茶歇区
考虑到将居所与大环境的宁静气质相匹配,加上业主的年龄和喜好,设计师将中式元素贯穿整个空间,在此茶歇区凸显。因景互借、互相成全,形成一幅自然之美的画卷。
餐厅 Dining Room
▲简约的精致、低调的奢华。开放式餐厅布局,搭配格调轻奢的餐桌、布艺餐椅;金属、玻璃、布艺、烤漆、大理石等不同材料,为业主打造具有高定的用餐环境。
换个角度的餐厅,也别具一番风味。
厨房 The kitchen
利用木饰面板,将厨房空间与西厨岛台分割开来,又互相联系。厨房设置隐形门,美观又实用。
空间是生活方式的表现,选什么样的厨房,就等于选择了一种什么样的生活品位。厨房,反映了一个家的生活气息,更是享受生活本质的态度。
▲厨房区域自然融入整体家居之中。美观的餐桌与实用的西厨岛台和厨房紧密相连,形成一个开放式的烹饪空间,营造出摩登时尚的就餐氛围。
楼梯 The Stairway
▲别墅楼梯,作为客厅与起居室之间的联系,兼具方便性、连贯性、实用性的同时,颜值也聚焦其中。
主卧 Master Bedroom
人的一生中,至少有三分之一的时光都是在卧室中度过的。一个整合多功能的主卧套房,不仅可以提高空间利用率,还可以保证私密性和舒适度,主卧套房的相对独立性,也是品质生活的象征。
静奢而不失生活的艺术感。方正的格局搭配简洁大气的家具和柔软床品,将空间的品质感再次提升。
接着转进衣帽间、化妆桌、主卫生间,使用顺序满足生活习惯。在主卫生间设计双台盆结合加长镜柜,配备淋浴和鱼缸,功能齐全,使得空间关系与生活体验丰富且层次。
次卧 The Second bedroom
Q&A
Q: 这次设计最满意的地方在哪里?
A: 整体风格营造出的自然且质感的高级氛围,结合功能性、实用性,让居住者感到舒适,效果很满意。
-end-
部分案例
500㎡ 怀旧美式自在时光
260㎡ 轻奢顶跃向往的 penthouse
190㎡轻奢欧式优雅的品质居所
280㎡复式住宅,在大阳台落地窗享受浪漫的晨昏日暮。
300㎡经典美式领略时光交错之美
180㎡简约现代风质感舒适而温暖
玖意装饰装饰您的生活铸造更美好的家
公司地址:富森创意 A 座 8 楼(高新店)益州大道中段 599 号航天科创中心(天府店)
客服
消息
收藏
下载
最近


























































