查看完整案例


收藏

下载
特爱松风,庭院皆植。每闻其响,欣然为乐。《南史 陶弘景传》案例基本信息 Basic case information 面积: 800 Area: 800 风格: 轻奢新中式 StyleChinese style 类型: 别墅 House Type:The villa 主案设计师:朱洪 Principal case designer:Zhu Hong 地址:成都|中国会馆 Address:Chengdu | China Guild Hall
独栋合院设计的中式别墅,满足实现平面展现多元化的可变空间的同时,不仅创造多变复杂的区域功能性——餐厨、休闲、娱乐、观景、赏花等,还同时保持居所的大气尺度,给予家族对外交流、聚会的平台,演绎开放生活的精彩。
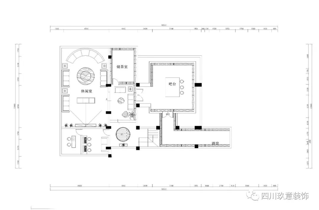
❏负一楼平面布置图|来源:朱洪设计师
一楼平面布置图|来源:朱洪设计师
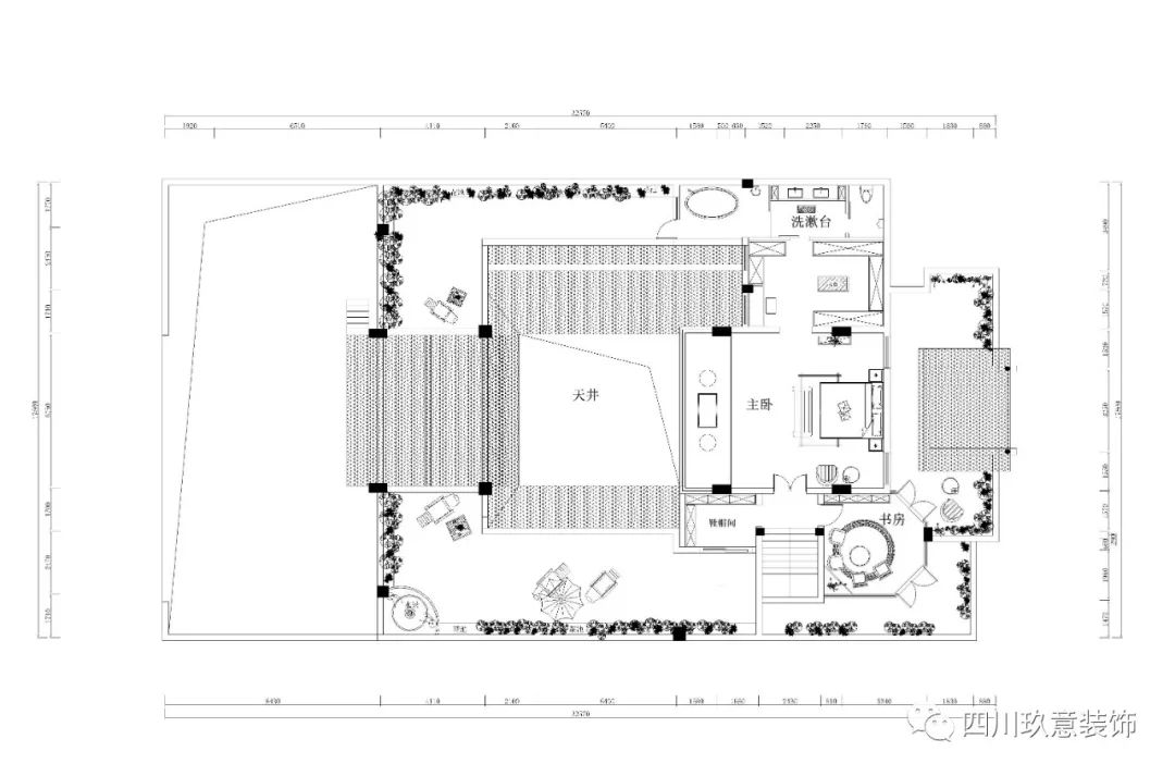
二楼平面布置图|来源:朱洪设计师
林语堂在《我的愿望》中,说道“我要在院,种几棵竹树,几棵梅花,我要夏天冬雨,冬天爽亮的天气,可看见极蓝的天空”。接下来跟着设计师的脚步,来走进业主典雅奢贵的一家,看看她们的美好生活。
玄关 The Hallway
新中式风格是一场文化碰撞的中西相逢。世人眼中的中国风尚且千百种,而独属自己的国风一隅,便惟有家中的方寸天地。一个完美生活方式的演绎,需要各个细节的相互关联,一个装饰,一个壁灯,都将新中式元素巧妙的融入整个空间。轻,是一种态度;奢,是一种品质。轻奢是一种更尊重生活品质的生活方式。
会客厅 Reception hall
新中式的传承魅力是无限。要营造风格协调的轻奢新中式,家具的搭配一定要具有层次感。这要求我们在色彩和材质上做到一致,家具的选择要尽量的简约,例如简约化的中式家具,自带典雅气质,同时充满韵味。在传统色彩中添加譬如绿色,蓝色,紫色等,更能营造典雅唯美的氛围,别具韵味,同时使得空间更具有现代感。
作为整个家庭常用的互动之所,落地窗很大程度的开合收敞让光影很大程度的置入空间,推窗观景,处处鲜氧环绕。
在色彩和材质一致的基础上,我们可以选择添加其它的色彩进行点缀,例如选择白色的,就可以搭配点更亮的色彩或者暗一点的,根据色彩的搭配原则来选择,这样不仅能够丰富空间色彩,显得不单调,还能增加空间层次感。
餐厅 Dining Room
当然,除了传统的建材,我们还可以在空间中运用现时流行的家装元素,碳灰色餐桌+高级米白餐椅的组合,自带优雅与高贵气场。餐桌圆润转角及桌腿的金属装饰相互呼应,形成一个整体。要打造轻奢新中式,混搭是很好的选择,显得个性而时尚,奢华而有韵味。
厨房 kitchen
厨房以简洁的直线条分割出纯淨质朴的空间感,断舍离之后只剩下简单的元素来赋予空间里舒适自然的感受。
茶室 Teahouse
疏香皓齿有余味,更觉鹤心通杳冥。——温庭筠《西陵道士茶歌》“柴米油盐酱醋茶”。作为生活中必不可少的饮品——茶,在古时候就开始源远流长。中国人对于茶的喜爱,早已深入骨髓。打造一个雅俗共赏的茶室,是每个爱茶的人心中所求。
主卧 Master bedroom
中式的“素”是表现形式上的抑制,是华丽而极致,克制而优雅,简约而不简单,这是我们对于形式的理解。
卧室背景以一幅山水画徐徐展开,深色色木饰面为基调,搭配富有皮质肌理感的床品,碰撞出富有人文气息且具现代轻奢质感的现代韵味。
# 主卧卫生间 #
书房 Study
阅读使人闲适,墨香使人静宁。李渔在《闲情偶寄》中说得好:“宜简不宜繁”。有屋一间,无论大小,一桌一椅一方几,一灯一人一卷书,便有了于日常中沉思静悟、安顿心灵的所在。
男孩房 Boys’ room 整体的浅色灰调,在色彩的选用上延续黑白灰为主。软装材质以实木,棉麻,皮艺为主,以契合室内空间中从容随心的气质。
女孩房 Girl’sroom 女孩房选用米色优雅的布艺床,搭配轻奢床品,温柔高贵,优雅而浓烈的现代时尚,洁白的空间,优雅的绿和床品起到明亮的配色效果,精心演绎轻奢典雅质感。
庭院 Courtyard
择一小院而居,圈一方天地成景,这样的合院小宅,看似简单,却藏着对传统的向往和美好。
老舍曾在《我理想中的家庭》中对自家院子有过这样的想象:“院子必须很大,靠墙有几株小果木树······其他的地方就都种着花草······屋中至少有一只花猫,院中至少也有一两盆金鱼,小树上悬着小笼,二三绿蝈蝈随意地鸣着。”大抵如此吧!
Q&A
Q: 这次设计最满意的地方在哪里?
A: 在本身房屋建筑风格额基础之上,达到尊重中式建筑“天井”、“中庭”、“后花园”的传统,实现天人合一。将现代轻奢风与中式相结合,达到新中式的创新传承韵味。保留中式的灵魂,实现居家功能的现代化,所以使得所有生活都在一个平层空间中解决,使用生活也更便捷。
-end-
部分案例
500㎡ 怀旧美式自在时光
260㎡轻奢顶跃向往的 penthouse
190㎡轻奢欧式优雅的品质居所
280㎡复式住宅,在大阳台落地窗享受浪漫的晨昏日暮。
300㎡经典美式领略时光交错之美
180㎡简约现代风质感舒适而温暖
玖意装饰装饰您的生活铸造更美好的家
公司地址:
- 富森创意 A 座 8 楼(高新店)
- 益州大道中段 599 号航天科创中心(天府店)
客服
消息
收藏
下载
最近
















































