查看完整案例


收藏

下载
无边设计
先认识这个世界
然后我们坐下来
谈谈信仰、爱、艺术、诗歌
谈谈那些让精神不会速朽的东西
_
主案设计 / 杨瑾
Principal Designer / Jenifer
项目地址 / 成都
Location / Cheng Du
项目面积 / 145m
Area / 145sqm
文案策划 / 修合文化
Document Writing / Xiuhe Culture
「Porch 玄关
欲扬先抑的创作思想,透过尺度收放的节奏,为每次归家带来靠岸定心的安愉感。不含任何情绪的灰调,与微妙光影和凹凸形态相融,于平静之中容纳了生活百态。晕开的水波变成了灵动镜面,跟随抽象挂画的鲜活魅力,共和着空间的惊喜感与艺术性。
「Dining room & Kitchen 餐厨空间
连续性结构将那份依恋烟火的情感轻轻安放,穿过通透材质,点亮暖柔光晕,在点、线、面之间欢奏鸣曲。序列有致,深浅恰好,让烹饪鲜味与悠然尝味的生活动态产生了亲密感和温馨感。辅以跳色家具、精致肌理、得当比例,烘托出安享氛围。
「Living room & Dining room 客餐厅
转身悠游其中,对望相视抒情,开阔的留白空间予以客餐厅最大的自由度,在无形坐标上进行切割、断点、拼接、错层,铺叙“整体为家”的高瞻视野。纯粹饰面汲取多样肌理的细腻美,留存了岁月里的平和与逸趣,随时随地引导我们到达目的地。
「Living room 客厅
当和煦的阳光洒落一地,客厅便有了特别的温度和希望。造型流畅的沙发糅合经典元素,曲直相衬地演绎简约格调。栖身而坐,大自然的韵律即刻赋能空间,祥和又惬意。粼粼之光,放大了墙壁展示收藏的生活情趣。
「Bedroom 卧室
深调几何面激荡出沉静安稳的气氛,小巧的圆灯邂逅了居住者的眼神,配以轻柔光丝,将人的五感渐渐调和至平衡状态。微风掀起薄帘,营造出安全感充足的“睡眠时空”,松弛了身心。
「Bedroom 卧室
窝在蓬松的枕头里,播放向往的、喜爱的影视故事,让思绪放空,使情愫生发,哭一场,或笑一笑,而后满足入梦。晨间苏醒,受益于精巧的干湿分区,自在快乐地洗漱。悬浮桌将功能性延展,集合收纳、书写、置物等实用性。
「Cloakroom衣帽间
格栅门遮住了部分视线,却藏不住对高品质生活的追求。对称格局下,天光与灯光相辅相成,瞬间激起了想要精心打扮自己的欲望。柜体的大小、宽窄、开合,无不展现着精致质感,彰显功能与美学和谐运作的理念。
「Bedroom 卧室
一抹纯白,纳入纤细的条纹,俘获软绵的织物,在极简色调的勾勒下,概括了“春风翩翩,静似奶油”的甜美意境。
凹嵌于衣柜的结构,从舒适性与容量度出发,依照四周尺寸的特点,消解了体块的压迫感,丰富了卧室的多维层次。
选用深浅对比的设计手法划分动区和静区,凸显规整的简约之美。地台结构边缘,装点着一簇暖光,增加了新颖美感。投入阅读、专注工作、小憩一刻的场景联动为一体,隔绝了外界的喧嚣,让私属的时光越发动人。
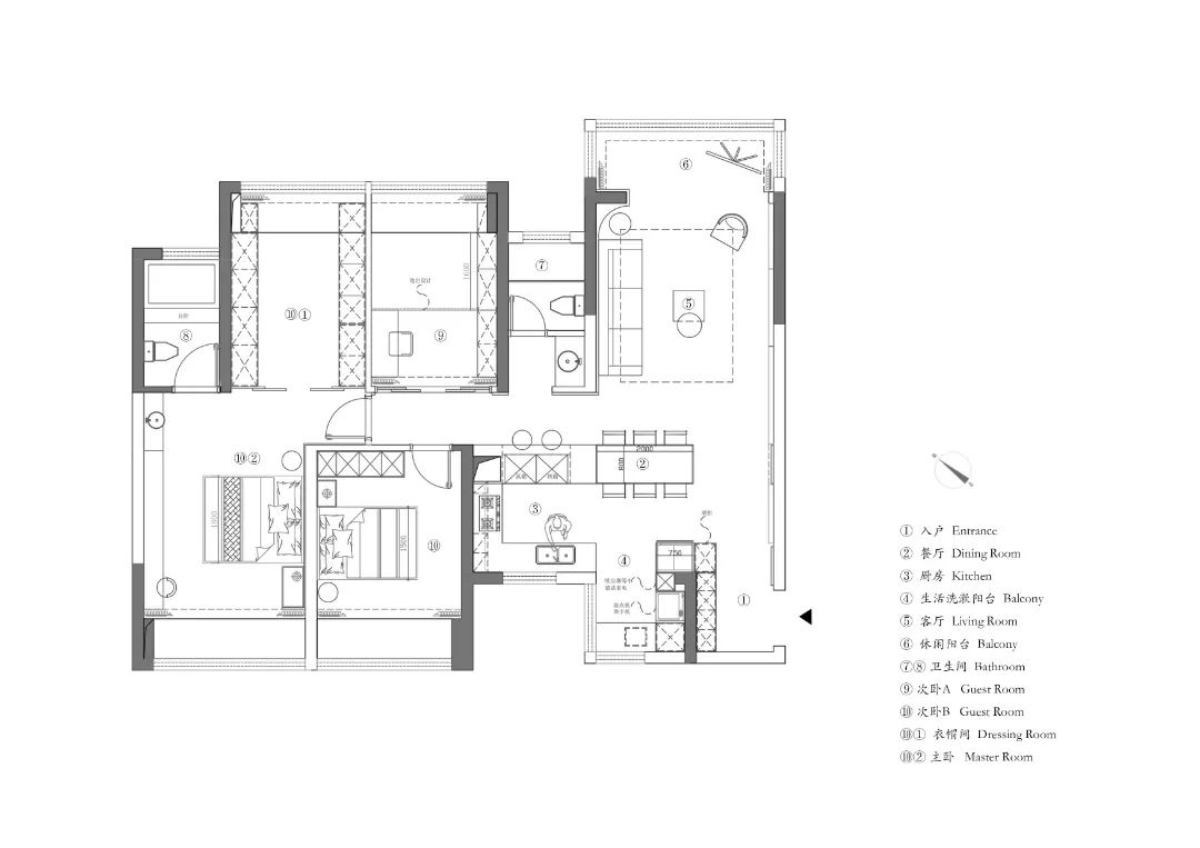
平面图
无边设计事务所/BoundLess Design
首席设计师/ ChiefDesigner
杨瑾 / Jenifer
推荐阅读
无边设计 | 等晚风
无边设计 | 跨时代
无边设计 | 望星河
无边设计 | 春语莳
无边设计 | 自然间
添加客服咨询
也可关注我们其他平台了解无边设计更多动态消息
苏州无边空间设计
电话:17712623355
地址:苏州市姑苏区盘胥路188号蓝.SPORT 8号楼107-2室
10:00-18:00 周一至周日
客服
消息
收藏
下载
最近






























