查看完整案例


收藏

下载
无边设计
窥见玫瑰盛宴
道逢满川风月
会有一束光
慢慢照向你
主案设计 / 杨瑾
Principal Designer / Jenifer
项目地址 / 苏州
Location / Su Zhou
项目面积 / 280m
Area / 280sqm
文案策划 / 修合文化
Document Writing / Xiuhe Culture
「Courtyard 庭院
午后的阳光洒在窗上,升起的温度传导进室内,木元素以纵横交叠的形态勾勒出品茶小景,带来不同场域之间相互联结的生活情趣。镂空趣致与悬浮妙感,层层下落,点点适用,深得人文底蕴浸润。
「Living room & Dining room 客餐厅
亲近自然,是整体设计的核心理念。大地色系变幻成多样物件,装饰留白场域的纯粹感,与绿色系碰撞,释放出自然的呼吸感知。略有分隔的天窗,达成补充采光的绝妙效果,同时平衡了电能光源的节奏性与美学性。
「Living room 客厅
轻微起伏,疏密有型,利落置入电视屏幕,展开同一形式之内的延续性笔法,增添凹凸层次的趣味,阐述着独属此处的鲜明性格。受枯山水景观启发,酝酿简洁静逸的主场氛围,聚会是一次享受,独处是一种净化。
「Dining room & Kitchen 餐厨空间
餐桌沿立柱拓展空间的纵深尺度,形成上下呼应、前后推进的和谐美感,保持水平线的平缓感,给予抹茶绿柜面更多展示空间。一体成型的畅通动线,串联起了生活的诗意,在不影响整体性的情况下,于地面彰显法式浪漫。
「Kitchen 厨房
热烈的烟火令人倍感亲近与幸福,软糯的甜品带来丰富的层次与滋味。在外面,你辛苦奔波,你为爱奋斗,在家里,你可以源源不断地获得动力。中厨和西厨藏着诸多爱意,熔炼在色、形、味当中,舒叙出当代生活的乐活意义。
「The stairs 楼梯
优美的弧形仿若从山顶蜿蜒流淌至平原的清泉,总让人在与之对视的时刻被深深吸引,写意空间的自然属性,指引居家的人穿流于高低之地,呈环绕势态点明隅角场景的神秘感与艺术感,为装饰细节与美学格调逐次赋能。
「Children room 儿童房
连绵波动的白色浪花,经过简化处理,带着柔软的情态与吊灯做伴,让一切梦幻的想象于躺卧在床发呆的瞬间得以收集。散开分布的小点,刚柔相济的展示区域,亲肤软柔的布艺,一起组成了孩子最爱的秘密乐园。
「Master bedroom 主卧
叠层物语,促使床头融入更宽的背景,随时光延续,衍生出精致素雅的视觉张力。闭合与开敞的空间韵律,暗藏居住者对热爱生活的执着,松弛地睡上一觉,遗忘喧嚣阅读著作,凸显了空间“不止于此”的情怀与追求。
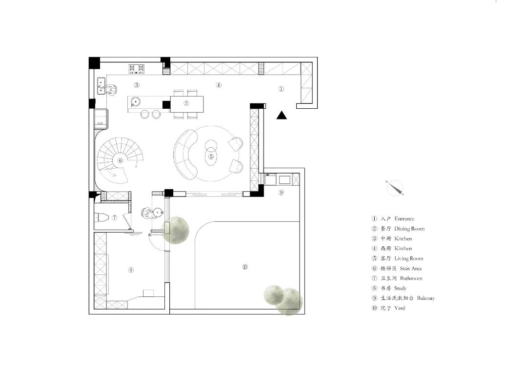
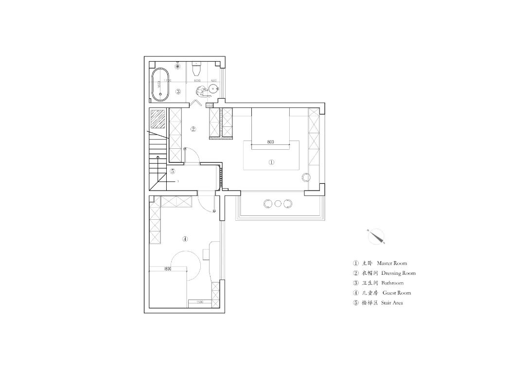
平面图
无边设计事务所/BoundLess Design
首席设计师/ ChiefDesigner
杨瑾 / Jenifer
<左右滑动查看更多>
推荐阅读
无边设计 | 清风语
无边设计 | 陌上云
无边设计 | 月下客
无边设计 | 等晚风
无边设计 | 跨时代
添加客服咨询
也可关注我们其他平台了解无边设计更多动态消息
苏州无边空间设计
电话:17712623355
地址:苏州市姑苏区盘胥路188号蓝.SPORT 8号楼107-2室10:00-18:00 周一至周日
客服
消息
收藏
下载
最近




























