查看完整案例


收藏

下载
质·东方
项目风格Decorative style:新中式
项目面积Area:700㎡
项目地
址Location:禾峰乾庄
主设计师Designer :毛纯静
设计团队Design Team:[尚居·一舍]装饰公司Design Company:荣恒装饰工程有限公司
主要材料Material:大板瓷砖、自然石材、进口涂料、成品木作等
地下室
原始结构图
一层原始结构图
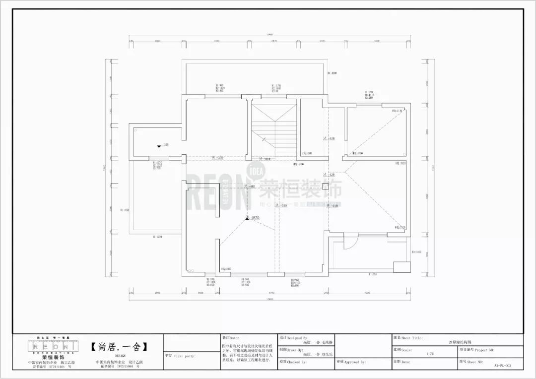
二层原始结构图
地下室平面布置图
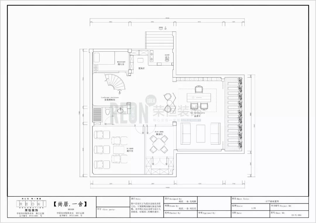
一层平面布置图
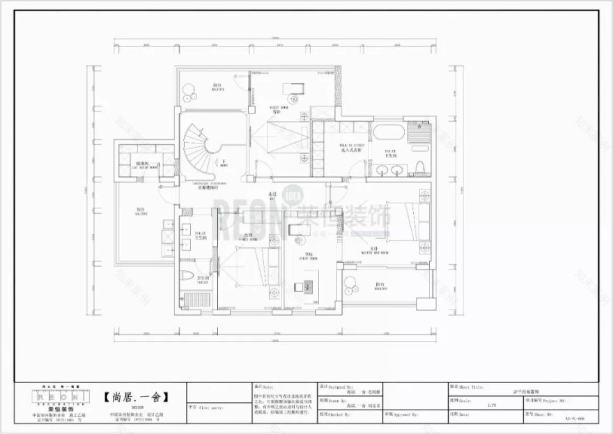
二层平面布置图
实景赏析
本案取名为【质.东方】,主要材质都是自然真实有质感的材质表现东方文化,包括表现手法及表现元素都以简约自然为主要设计目标。
客厅与餐厅联通共享处理,巧妙起到放大客厅整体空间的视觉效果,使得空间更赋有灵性,也体现生活的仪式感。
水墨元素与平面留白手法的构图运用,成为空间点睛之笔,演绎介于虚与实、形与无形之间的哲思美学,给人启迪和想象。
将东方韵质和现代美学融合,张弛有度,不动声色地展示现代别墅应有的大气与格调,觥筹交错,交杯换盏间,另有一番风情。
楼梯由原结构中直型暗楼梯,改动为弧形通透楼梯间,增加空间灵动性。连接二层空间的楼梯,融入现代简洁的线条,于简约硬朗中透出让人宁静的力量,为过渡区营造明亮、通透的空间感受。
三层主卧空间,柔和沉静的灰阶色调,及简约大气的花背景,为空间奠定低调不失品味的质感与格调。舒适的休憩氛围,在平复人们繁杂心绪的同时,让内心沉淀,感受时光安然,岁月静好。在设计师看来,设计是回归本心,除了满足空间功能的需求,更加重要在于体现家庭的温馨和惬意,在一定环境内,人需要与内心对话,当设计融于人性,家居进入情境,现代居所的低调奢华自然流露。
负一层休息区是本案设计重点所在,挑高的空间内,我们利用深色木制家具与极少金属装饰的搭配,舒服、自然地将东方意境提炼得淋漓尽致,打造出富有生命力与文化内涵的艺术居家空间,看似随意却又经得起时间推敲。在设计工艺上,与一层客厅别无二致的主背景墙精致而考究,采用木饰面做条状的透光处理,使得深色木面上看起来绽放得活灵活现,赋予空间别样内敛、雅致的韵味。
地下室玄关,设计了更衣换鞋处,便利的同时也不过多占用空间。
生活于城市之中,静谧难寻,草木稀疏。一方庭院经过设计师反复推敲设计、修改而来,增色了红尘岁月,生活归于平淡。余生能想到的最浪漫的事,就是在庭院中喝茶、聊天,惬意生活。
主创设计:毛纯静
软装设计:毛纯静
效果表现:毛纯静
查看更多小区案例&预约设计师
客服
消息
收藏
下载
最近

































