查看完整案例


收藏

下载
新式里弄、花园洋房、法国梧桐等营造出浪漫的气息,令人流连。
沿街林立的各类建筑,风格迥异令人驻足不前的各色小店荟萃,各类时尚品牌更是深藏于此,绝对是时尚买手的心头好!
在众多潮牌店林立之中,我们怎么为AMI“奢侈细胞”的第三家店产生高辨识与引客效果呢?咱来看看吧!
整个新乐路所围绕的都是潮牌店,年轻人聚集大量的时尚潮牌林立。这次AMI第三家店,我们采取轻时尚的设计手法,以色块层次开始了我们的设计创意。
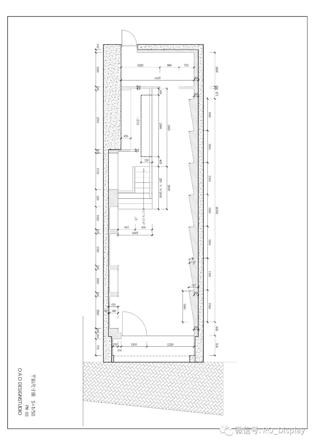
长方型的街边店铺,在上海属于经常性看到的店铺。近五米多高度,如何在视觉的处理上对于我们设计团队是个挑战。
拆除后的原始平面图
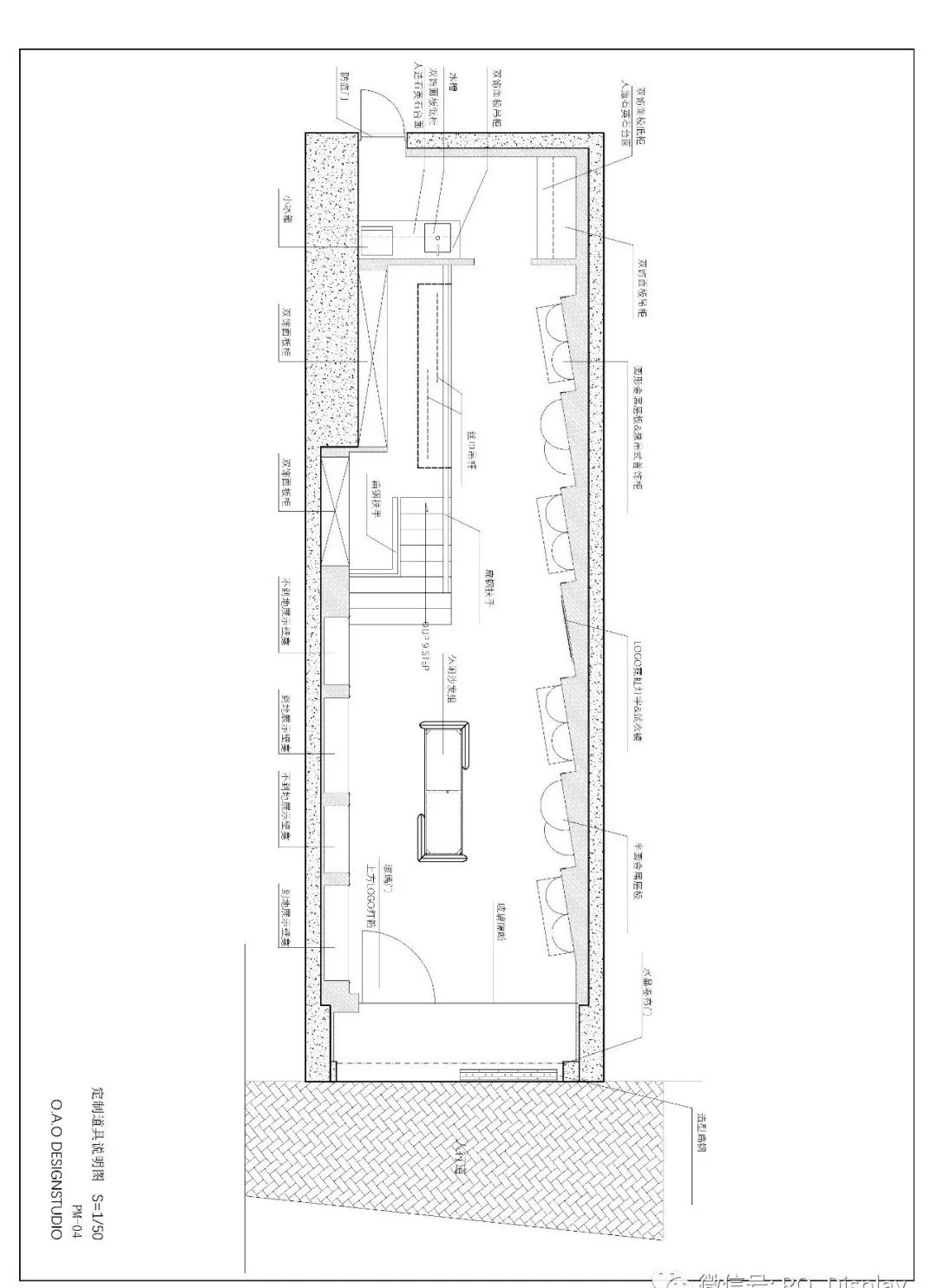
在设计过程中,墙面的填充有许多设计手法。我们透过色彩层次弱过度的方式,使产品本身能够被凸显出来。
在高度的视觉效果上,我们没有采取常规搭建阁楼的方式产生视觉上的分层,而采取透过空间斜切面的方式产生视觉层次感。运用楼梯搭建产生视觉角度也预留的储物收纳空间。
运用圆弧造型的层板与壁龛,保证产品有足够的陈列数量,增加使用坪效。也创造错落有序的层次感。悬吊首饰柜延续了空间轻巧感。
往往看似简单的设计,所有都是经过计算得出来的。从尺寸结构承重,都要经过计算。
我们来看看从设计创意怎么高还原度的落地过程吧!(请按播放
完工
未上货
前
上货后产品陈列
部分细节
AMI奢侈细胞其他店
AMI自忠路店
AMI精品-巨鹿路店
设计团队:O.A.O空间联合设计团队
主案设计:储睿竑
设计参与:王鑫焱
空间配色:皮敦伟
软装陈设:皮敦伟
项目管理:皮敦伟
现场摄影:黄老师
空间无价,材料无罪,以人为本,落地为实
点击以下图片 看O.A.O更多设计作品
住宅
空间因使用者的习惯而改变
餐饮
美食與懷舊的相遇
住宅
现代空间除了黑白灰,你还有其他选择
住宅
硬装案例 | 把INS风搬回家,设计师如何帮“糖藕妈”做到?
餐饮
人与物的缘分
住宅
硬装案例 | 寻访租界洋房,闹中取静的慵懒时光
住宅
调整视觉焦点,生活因而改变。
住宅需求决定居住者的生活氛围
住宅
53㎡居然还有浴缸?空间魔术变出80㎡居住感
餐饮
手冲咖啡,对生活态度的讲究
餐饮
超辨识感的PIZZA店
客服
消息
收藏
下载
最近








































