查看完整案例


收藏

下载
一器一物,不拘于一室一厅
当经历了岁月积淀
逐渐放慢了生活的步调
去追求内心的平和,精神世界的丰盈
这便是老者的智慧
关于本案:有人说家是一本打开的书,里面写着主人的阅历和人生。这套250㎡地复式养老房,刻画着两位老人的半百人生,也延续着对未来美好生活的憧憬,如诗般含蓄隽永,耐人寻味。
设计不单是空间的改造,更是一种情感的营造,本案设计师与主人深入沟通后,将人生与空间相互交融,理性与感性并存,去打造一个内敛、低调,有故事的居住空间。
祥源金港湾
[ 项目简介
地址
|Address:祥源金港湾
面积|Square Meters:250
风格|Style:现代简约
户型|Apartment:地复式
设计|Designer:辰申设计
施工|Construction:辰申设计
House Type Analysis
户型改造功能设计
一楼彩平图
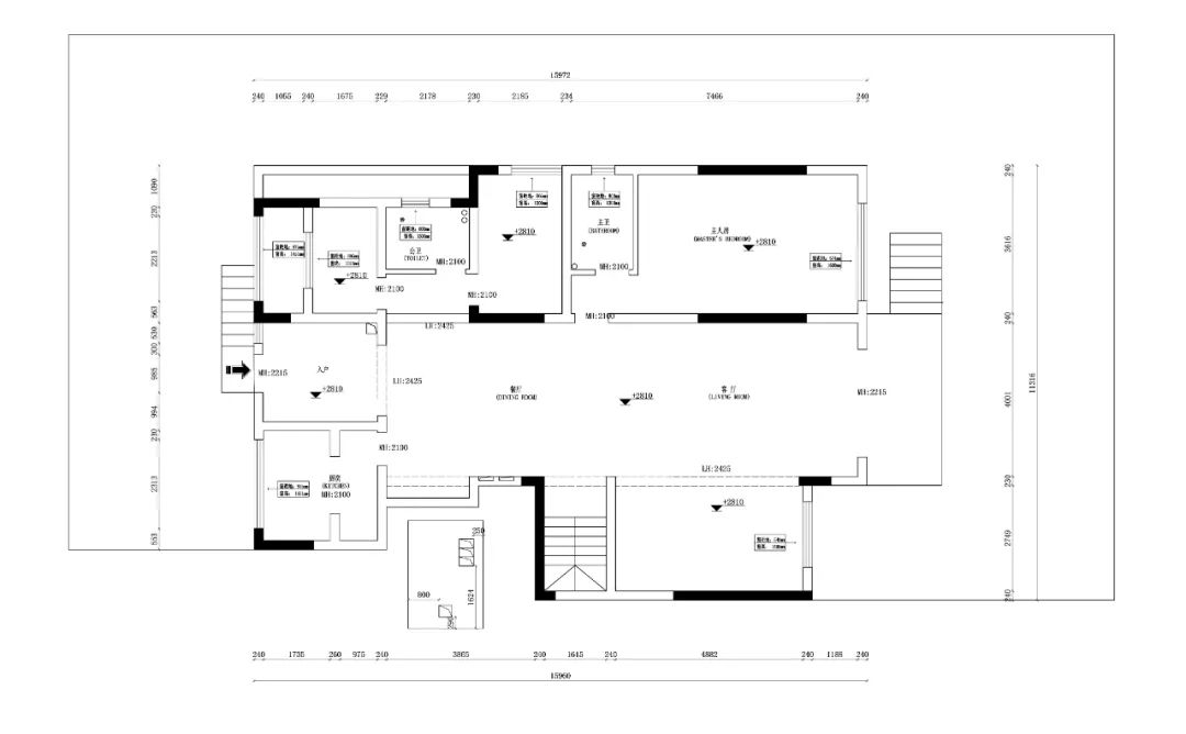
一楼原始户型图
负一楼彩平图
负一楼原始户型图
➜向右滑动,查看更多户型图
一楼厨房空间太小,从一楼改到负一楼,满足生活所需;
楼梯过于狭窄别扭,将其移位,契合生活行为动线;
负一楼是大通道,改造成娱乐活动室,影音室、棋牌、电竞房等;
考虑到于地下室光线太暗,将两边天井做了处理,引光进来;
VISUAL DESIGN
视觉设计一楼空间
将一楼厨房移至负一楼,整个空间释放出来,明亮大气的客餐厅,尽收眼底;大理石材质搭配流畅弧形电视背景墙,质感与设计感轻松拿捏;辅以浪漫的灯带,带来无与伦比的美感,直击人心。
木质的温润与大理石的质感结合,与客厅遥相呼应,整体设计一气呵成,自然流畅。
灵魂自由,不受拘束...对于本案业主来说,更注重空间的舒适自然的表达,卧室整体呈现以灰棕白经典搭配,去营造让人静心豁达之感。
VISUAL DESIGN
视觉设计负一楼
负一楼原本只是大通道,基本上没有什么空间规划,设计师将厨房餐厅挪到负一楼,一整面墙收纳柜,大理石岛台,休闲客厅...设计师用细腻的笔触将生活慢慢呈现,往后余生,三餐四季,不胜欢喜!
地下室怎么能没有影音室,对于爱好生活的人来说,电影音乐乃是人生一大乐事,也方便业主的儿子孙子来使用,共享天伦。
-THE END-
作品回顾
MORE
辰申设计 | 设计让你爱上生活
合肥政务区蔚蓝商务港F座812-813室
「长按识别关注我们」
关注
解锁更多家居创意设计
客服
消息
收藏
下载
最近






























