查看完整案例


收藏

下载
INTRODUCEPROJECT OVERVIEW
項目概況
項目地址:江蘇省蘇州市鐘慧路
設計單位:江蘇世紀名築建築裝飾工程設計有限公司
設計主創:呂欣
項目面積:1100平方米
主要材料:大理石、鋁型材木紋轉印、馬來漆、夾膠玻璃、乳膠漆
SUZHOU XIANGJI RESTAURANT
蘇州祥記餐廳
Design description設計說明
餐厅地处苏州,以江南街巷为设计脉络,加以现代的设计手法,呈现出轻松、原生态的空间氛围;将空间向下拓展,隔成两层空间,以此改变空间形态。入口处两层挑空,拉伸纵向空间感。二层空间较低梁结构错落复杂,通过铝型材木纹转印加以装饰,弥补空间纵向不足;
The restaurant is located in Suzhou, designed in the form of Jiangnan (south of Yangtze River) Street as well as the modern design method, presenting a relaxed and original ecological space atmosphere. The downward-expansion space is separated into two layers of space, so as to change the shape of space. The two-story entrance is empty, stretching the longitudinal space sense. The lower beam structure of the two-layer space is complex, which is decorated by the wood grain transfer of aluminum profile to make up the space longitudinal shortage.
▲ 前廳
▲散座區
▲十二人包厢
▲十八人包厢
▲二層走道
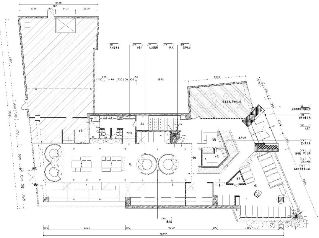
▲一層平面
▲二層平面
MEDAL
restaurant won awards獲得獎項
DESIGN PURPOSES
沒有文化的空間是沒有生命力的,建築是文化的載體,設計的靈魂亦是文化。在延續傳統文化意蘊的同時,也要融合現代、人性、科技等新時代特性,構建具有文化意蘊、優雅、舒適的多元化靈動空間。
18TH全國設計大師獎 優秀獎
JIANGSU CENTURY MODEL CONSTRUCTION DECORATION CO.,ltdFOUNDER
Louis Lv 呂欣
設計師簡介:亚太空间设计师协会理事亚太设计中心高级设计师国际商业美术协会高级设计师中国建筑学会室内设计分会会员中国建筑装饰协会高级室内建筑师2005.09-2009.07:哈尔滨理工大学学士学位2009.10-2015.03:金螳螂第八设计院主创设计师2015-至今:江苏世纪名筑装饰工程设计有限公司设计总监获奖经历:2017新加坡SIDA室内设计大赛尋幽晓筑度假酒店荣获-金奖2017中国APSDA亞太空間大獎赛72°OFFICE-一等奖2017中国APDC亞太设计精英邀请赛72°OFFICE-佳作奖2016中国JSIID室内设计大赛【转角CORNER】荣获-金奖2016中国JSIID室内设计大赛尋幽晓筑度假酒店荣获-银奖2016中国JSIID室内设计大赛逸林精品酒店荣获-优秀奖2016中国CIID室内设计大奖赛尋幽晓筑度假酒店-入选奖2016中国CBDA国际空间设计大赛尋幽晓筑度假酒店-优秀奖2016中国I-DING艾鼎国际设计奖尋幽晓筑度假酒店-提名奖2016中国18TH全国设计大师奖苏州祥记餐厅荣获-优秀奖2015中国金艺奖亚太酒店设计大赛玖御半岛温泉酒店-铜奖2015中国金堂奖年度评选苏舍精品酒店-年度优秀酒店空间2014中国金堂奖年度评选艾迪花园酒店-年度十佳酒店空间2014中国JSIID室内设计大赛云上城市精品酒店荣获-银奖2014中国JSIID室内设计大赛长广溪人文书苑酒店-银奖2014中国CIID室内设计大奖赛云上城市精品酒店-三等奖2014中国CIID室内设计大奖赛艾迪花园酒店荣获-入选奖2012中国国际室内设计双年展苏悦精品餐厅荣获-金奖2011中国CIID室内设计大奖赛瑞港豪生大酒店荣获-入选奖
JIANGSU CENTURY MODEL CONSTRUCTION DECORATION CO.,ltd
江蘇名築設計,致力於星級酒店、精品餐飲、水疗會所、娛乐會所、办公空間、地產項目等商業空間設計咨询與服務,在各類空間設計領域获得众多設計大獎。
●善于將空間的弊端,转化為空間的优势
●严谨的設計管理体系是我们發展的源動力
●致力於研发創新空間設計與特殊材料的運用
●我們的宗旨是用心创造細節,用真誠服務客戶
江蘇世紀名築建築裝飾工程設計有限公司
江蘇名築設計_ CMC DESIGN
中國無錫世茂沿河商街90號
郵件電話:13400003187QQ:321965903113400003187
長按二維碼關注 CMC
長按二維碼關注設計師
客服
消息
收藏
下载
最近













