查看完整案例


收藏

下载
INTRODUCEPROJECT OVERVIEW
項目概況
項目地址:江蘇省無錫市
設計單位:江蘇世紀名築建築裝飾工程設計有限公司
設計主創:呂欣
項目面積:1712平方米
主要材料:大理石、木飾面、馬來漆、丝网印刷、乳胶漆
YILIN BOUTIQUE HOTEL
逸林精品酒店
Design description設計說明
消费人群定位青年群体,当下时尚青年群体酷爱滑板、涂鸦、跑酷、摇滚、HIP-POP、街舞、单车等偏向美式街头文化的流行产物,因此酒店空间定义为当代美式风格,并突出艺术的张力和感染力,增强体验感,融入趣味与青年群体的内心产生链接;从消费者的内心出发所呈现出的空间,是产品的核心竞争优势;追寻青年群体的心理诉求,并倡导空间诉说着一种生活态度和对生活深深的热爱;一晚童真,回归童与真。
▲ 大堂
▲景观樓梯
▲大堂吧
▲客房走道
▲雙床房
▲套房卧室
▲套房客廳
▲總規划图
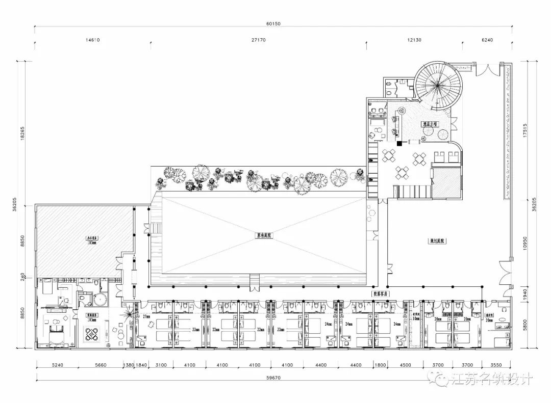
▲一層平面
▲ 标准平面層(二至四層)
MEDAL
restaurant won awards獲得獎項
DESIGN PURPOSES
沒有文化的空間是沒有生命力的,建築是文化的載體,設計的靈魂亦是文化。在延續傳統文化意蘊的同時,也要融合現代、人性、科技等新時代特性,構建具有文化意蘊、優雅、舒適的多元化靈動空間。
中國JSIID室內設計大賽優秀獎
JIANGSU CENTURY MODEL CONSTRUCTION DECORATION CO.,ltdFOUNDER
Louis Lv 呂欣
設計師簡介:亚太空间设计师协会理事亚太设计中心高级设计师国际商业美术协会高级设计师中国建筑学会室内设计分会会员中国建筑装饰协会高级室内建筑师2005.09-2009.07:哈尔滨理工大学学士学位2009.10-2015.03:金螳螂第八设计院主创设计师2015-至今:江苏世纪名筑装饰工程设计有限公司设计总监获奖经历:2017新加坡SIDA室内设计大赛尋幽晓筑度假酒店荣获-金奖2017中国APSDA亞太空間大獎赛72°OFFICE-一等奖2017中国APDC亞太设计精英邀请赛72°OFFICE-佳作奖2016中国JSIID室内设计大赛【转角 CORNER】荣获-金奖2016中国JSIID室内设计大赛尋幽晓筑度假酒店荣获-银奖2016中国JSIID室内设计大赛逸林精品酒店荣获-优秀奖2016中国CIID室内设计大奖赛尋幽晓筑度假酒店-入选奖2016中国CBDA国际空间设计大赛尋幽晓筑度假酒店-优秀奖2016中国I-DING艾鼎国际设计奖尋幽晓筑度假酒店-提名奖2016中国18TH全国设计大师奖苏州祥记餐厅荣获-优秀奖2015中国金艺奖亚太酒店设计大赛玖御半岛温泉酒店-铜奖2015中国金堂奖年度评选苏舍精品酒店-年度优秀酒店空间2014中国金堂奖年度评选艾迪花园酒店-年度十佳酒店空间2014中国JSIID室内设计大赛云上城市精品酒店荣获-银奖2014中国JSIID室内设计大赛长广溪人文书苑酒店-银奖2014中国CIID室内设计大奖赛云上城市精品酒店-三等奖2014中国CIID室内设计大奖赛艾迪花园酒店荣获-入选奖2012中国国际室内设计双年展苏悦精品餐厅荣获-金奖2011中国CIID室内设计大奖赛瑞港豪生大酒店荣获-入选奖
JIANGSU CENTURY MODEL CONSTRUCTION DECORATION CO.,ltd
江蘇名築設計,致力於星級酒店、精品餐飲、水疗會所、娛乐會所、办公空間、地產項目等商業空間設計咨询與服務,在各類空間設計領域获得众多設計大獎。
●善于將空間的弊端,转化為空間的优势
●严谨的設計管理体系是我们發展的源動力
●致力於研发創新空間設計與特殊材料的運用
●我們的宗旨是用心创造細節,用真誠服務客戶
江蘇世紀名築建築裝飾工程設計有限公司
江蘇名築設計_ CMC DESIGN
中國無錫世茂沿河商街90號
郵件電話:13400003187QQ:3219659031
長按二維碼關注 CMC
長按二維碼關注設計師
客服
消息
收藏
下载
最近
















